静岡県静岡市清水区西高町(桜橋駅)の中古マンション・新築マンション・分譲マンション:物件詳細
交通 所在地 |
駅徒歩 |
価格 |
構造 階建/階 |
間取り 専有面積 |
物件種目 築年月 |
|
静岡鉄道静岡清水線/桜橋
静岡県静岡市清水区西高町
|
11分
|
1,980万円
|
RC
6階建 / 2階
|
3LDK
74.13m²
|
中古マンション
2007年12月(築18年6ヶ月)
|
|
ペット相談、アウトフレーム工法、24時間換気システム、バリアフリー、閑静な住宅街、管理人日勤
|
|
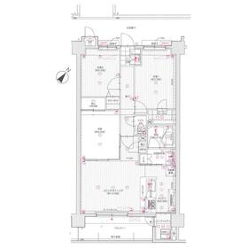
間取図
|
|
<
その他の画像
>
|
| 交通 | 静岡鉄道静岡清水線 桜橋駅 徒歩11分 |
|---|
| その他の交通 | 東海道本線 清水駅 【バス】 11分 西高町 停歩2分 |
| 所在地 |
静岡県静岡市清水区西高町
|
| 物件種目 |
中古マンション |
| 価格 |
1,980万円 |
平米単価 |
26.71万円 |
| 管理費等 |
12,900円 |
修繕積立金 |
11,130円 |
| 借地期間・地代(月額) |
- |
権利金 |
- |
| 敷金または保証金 |
- / - |
維持費等 |
自治会費:700円/月 |
| その他一時金 |
- |
|
|
| 間取り |
3LDK(洋 7・5.5・5.5 LDK 14.9) |
専有面積 |
74.13m²(壁芯) |
| 階建 / 階 |
6階建 / 2階 |
バルコニー |
8.41m² |
| 築年月 |
2007年12月(築18年6ヶ月)
|
建物構造 |
RC |
| 駐車場 |
- |
総戸数 |
47戸 |
| 駐輪場 |
有 200円/月 |
バイク置き場 |
有 500円/月 |
| ペット |
小型犬可・ 猫可・ 飼育細則あり。 |
|
|
| 土地権利 |
所有権 |
敷地面積 |
- |
| 管理形態/管理員の勤務形態 |
全部委託/日勤(アイワマネージメント株式会社) |
国土法届出 |
- |
| アピールポイント |
・清水岡小学校、清水第二中学校 校区
・室内丁寧にお使いです♪
・広々とゆとりある74.13㎡(約22.42坪)の3LDK
キッチン横にはユーティリティスペースあり
洗面室キッチンユーティリティスペースが横並びのため、家事同線に優れ使い勝手良し♪
ユーティリティスペースからバルコニーへ出られるのでお洗濯ものを干すにも便利ですね♪
・南東向きのため陽当たり良好♪
・各居室収納スペースあり!WICも敷設♪
・オートバス、モニター付インターホン等の充実した設備
・浴室1418サイズ
・アウトフレーム工法のためすっきりとしたリビング
・1住戸3匹までペット飼育可!
*種類、サイズ等に制限があります、詳細は担当者まで! |
| 建物名・部屋番号 |
プライムスクエアー清水西高町 |
| リフォーム履歴 |
■共用部の大規模修繕工事:2024年12月 ・2023年2月給水ポンプ交換工事 ・2024年12月屋上防水工事 ※実施年月は最も古い履歴を表示 |
| リノベーション履歴 |
- |
| 瑕疵保証 |
- |
| 瑕疵保険 |
- |
| 評価・証明書 |
- |
| 備考 |
主要採光面:南東向き
用途地域:2種中高
・敷地内駐車場有 月額1,500円~5,000円/台
金額は区画によります。空き状況は担当者へお問合せ下さい。
・民泊禁止
・修繕積立金 改定予定有
・2028年大規模修繕実施予定有
|
| エネルギー消費性能 |
- |
| 断熱性能 |
- |
| 目安光熱費 |
- |
| バス・トイレ |
浴室暖房、浴室乾燥機、オートバス、追焚機能、シャワー付洗面化粧台 |
| キッチン |
カウンターキッチン、システムキッチン、浄水器、3口以上コンロ、グリル |
| 設備・サービス |
全居室収納、ウォークインクローゼット、バイク置き場、収納スペース、室内洗濯機置場、クローゼット、オートロック、モニター付インターホン、ディンプルキー、防犯カメラ、給湯、全居室フローリング、都市ガス、駐輪場 |
| その他 |
宅配BOX、来客用駐車場、エレベーター |
| 条件等 |
- |
現況 |
所有者居住中 |
| 引渡可能時期 |
指定有り2026年6月30日 |
物件番号 |
6990037780 |
| 仲介手数料 |
売買代金の3%+6万円 |
|
|
| 情報公開日 |
2026年3月23日 |
次回更新予定日 |
2026年5月14日 |
| ケータイ用バーコード |
- スマートフォンでこの物件を見る
- スマートフォンからもこの物件をご覧になれます。
|
※「-」と表示されている項目については、情報提供会社にご確認ください。
| 周辺施設 |
マックスバリュエクスプレス清水追分店 |
| 距離 |
1083m |
| 周辺施設 |
セブンイレブン清水西高町店 |
| 距離 |
261m |
| 周辺施設 |
認定こども園清水白百合幼稚園 |
| 距離 |
691m |
ここから簡単にお問い合わせをすることができます。
(SSLでの暗号化での送信を希望されるお客さまは
こちら
よりお問い合わせください)
お問い合わせを行う前に
「個人情報の取り扱いについて」を必ずお読みください。
「個人情報の取り扱いについて」に同意いただいた場合は「上記にご同意の上 確認画面へ進む」のボタンをクリックしてください。
個人情報の取り扱いについて
皆さまが送付された個人情報はアットホーム(株)のサーバを経由し、お問い合わせ先の不動産会社にメールまたはFAXにて転送されるためアットホーム(株)にも保管されます。アットホーム(株)で保管された個人情報の取り扱いについては、【こちら】をご覧ください。
また、本画面でご記入いただいた個人情報は、お問い合わせ先の不動産会社でも保管します。 お問い合わせ先の不動産会社が保管する個人情報の取り扱いについては、不動産会社に直接お問い合わせください。
静岡県知事免許(2)第14112号 |
|---|
- 交通:
- 伊豆箱根鉄道駿豆線/三島田町駅 徒歩5分
- 静岡県三島市中央町1-11
- TEL:
- 055-972-3015
- FAX:
- 055-972-3789
- 所属団体:
- (公社)静岡県宅地建物取引業協会会員東海不動産公正取引協議会加盟
取引態様:媒介  - 40407447
|
- スマートフォンで
この不動産会社を見る

|
- 提携サイト等より掲載されている物件情報につきましては、不動産会社詳細情報にリンクされていないものがあります。
- 物件に関するお問合せは、物件詳細ページの「情報提供会社」に表示されている不動産会社へ直接お願いいたします。
- 間取図は、現況を優先させていただきます。
- 映像は物件の一部を撮影したものです。物件の契約にあたっての最終判断はご自身の判断に基づいて行ってください。
- 仲介手数料について

アットホームは物件情報の適正化に努めております。
内容に誤りがある場合にはこちらへご連絡ください。