東京都港区港南3丁目(品川駅)の中古マンション・新築マンション・分譲マンション:物件詳細
交通 所在地 |
駅徒歩 |
価格 |
構造 階建/階 |
間取り 専有面積 |
物件種目 築年月 |
|
JR山手線/品川
東京都港区港南3丁目
|
11分
|
24,000万円
|
RC
地上30階地下2階建 / 30階
|
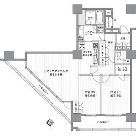
2LDK
90.54m²
|
中古マンション
2005年2月(築21年2ヶ月)
|
|
ペット相談、フロントサービス、常時ゴミ出し可能、角部屋、最上階、24時間セキュリティー、天井高2.5M以上、2面採光、24時間換気システム、バリアフリー、外観タイル張り、前面棟無、隣接建物距離2m以上、管理人日勤
|
|
間取図
|
外観
|
その他の画像
|
| 交通 | JR山手線 品川駅 徒歩11分 |
|---|
| その他の交通 | 京急本線 品川駅 徒歩11分 東海道新幹線 品川駅 徒歩11分 |
| 所在地 |
東京都港区港南3丁目
|
| 物件種目 |
中古マンション |
| 価格 |
24,000万円 |
平米単価 |
265.08万円 |
| 管理費等 |
18,100円 |
修繕積立金 |
27,300円 |
| 借地期間・地代(月額) |
- |
権利金 |
- |
| 敷金または保証金 |
- / - |
維持費等 |
- |
| その他一時金 |
- |
|
|
| 間取り |
2LDK(洋 9.3・6.9 LDK 19.8) |
専有面積 |
90.54m²(壁芯) |
| 階建 / 階 |
地上30階地下2階建 / 30階 |
バルコニー |
20.40m² |
| 築年月 |
2005年2月(築21年2ヶ月)
|
建物構造 |
RC |
| 駐車場 |
有 27,000円/月 |
総戸数 |
- |
| 駐輪場 |
- |
バイク置き場 |
- |
| ペット |
小型犬可・ 猫可 |
|
|
| 土地権利 |
所有権 |
敷地面積 |
6,886.44m² |
| 管理形態/管理員の勤務形態 |
全部委託/日勤(住友不動産建物サービス株式会社) |
国土法届出 |
- |
| アピールポイント |
〇総戸数590戸 大規模タワーレジデンス
〇24時間有人管理 コンシェルジュサービス有
〇ダブルオートロック採用 各フロアダストステーション有
〇充実の共用設備(スカイラウンジ、フィットネスルーム、クラブハウス、ビジネスラウンジ、ゲストルーム、シガールーム他)
〇室内からレインボーブリッジが望めます |
| 建物名・部屋番号 |
コスモポリス品川 |
| リフォーム履歴 |
- |
| リノベーション履歴 |
- |
| 瑕疵保証 |
- |
| 瑕疵保険 |
- |
| 評価・証明書 |
- |
| 備考 |
主要採光面:北東向き
用途地域:準工業
|
| エネルギー消費性能 |
- |
| 断熱性能 |
- |
| 目安光熱費 |
- |
| バス・トイレ |
浴室暖房、浴室乾燥機、オートバス、追焚機能、シャワー付洗面化粧台、温水洗浄便座 |
| キッチン |
システムキッチン、独立型キッチン、浄水器、ディスポーザー、3口以上コンロ、ガスオーブン、グリル |
| 設備・サービス |
全居室収納、ウォークインクローゼット、全居室エアコン、床暖房、室内洗濯機置場、トランクルーム、オートロック、モニター付インターホン、ディンプルキー、ダブルロックドア、給湯、全居室フローリング、アルコーブ、都市ガス、ワイドバルコニー、二面バルコニー、人感センサー付照明、フットライト、ダウンライト、間接照明、照明器具、火災警報器(報知機)、インターネット対応、光ファイバー、CS、BS端子、マルチメディアコンセント |
| その他 |
宅配BOX、ペット用施設、フィットネス施設、エレベーター2基以上、共用ゲストルーム、共用パーティルーム、来客用駐車場、車寄せスペース、各フロアゴミ捨て場所あり |
| 条件等 |
- |
現況 |
所有者居住中 |
| 引渡可能時期 |
相談 |
物件番号 |
6990099634 |
| 仲介手数料 |
売買代金の3% |
|
|
| 情報公開日 |
2026年3月28日 |
次回更新予定日 |
2026年4月11日 |
| ケータイ用バーコード |
- スマートフォンでこの物件を見る
- スマートフォンからもこの物件をご覧になれます。
|
※「-」と表示されている項目については、情報提供会社にご確認ください。
ここから簡単にお問い合わせをすることができます。
(SSLでの暗号化での送信を希望されるお客さまは
こちら
よりお問い合わせください)
お問い合わせを行う前に
「個人情報の取り扱いについて」を必ずお読みください。
「個人情報の取り扱いについて」に同意いただいた場合は「上記にご同意の上 確認画面へ進む」のボタンをクリックしてください。
個人情報の取り扱いについて
皆さまが送付された個人情報はアットホーム(株)のサーバを経由し、お問い合わせ先の不動産会社にメールまたはFAXにて転送されるためアットホーム(株)にも保管されます。アットホーム(株)で保管された個人情報の取り扱いについては、【こちら】をご覧ください。
また、本画面でご記入いただいた個人情報は、お問い合わせ先の不動産会社でも保管します。 お問い合わせ先の不動産会社が保管する個人情報の取り扱いについては、不動産会社に直接お問い合わせください。
東京都知事免許(3)第95309号 |
|---|
- 交通:
- 京急本線/新馬場駅 徒歩6分
- 東京都品川区南品川2丁目15-1 品川酒販会館3F
- TEL:
- 03-5479-3320
- FAX:
- 03-5479-3321
- 所属団体:
- (公社)東京都宅地建物取引業協会会員(公社)首都圏不動産公正取引協議会加盟
取引態様:専任媒介  - 00261713
|
- スマートフォンで
この不動産会社を見る

|
- 提携サイト等より掲載されている物件情報につきましては、不動産会社詳細情報にリンクされていないものがあります。
- 物件に関するお問合せは、物件詳細ページの「情報提供会社」に表示されている不動産会社へ直接お願いいたします。
- 間取図は、現況を優先させていただきます。
- 映像は物件の一部を撮影したものです。物件の契約にあたっての最終判断はご自身の判断に基づいて行ってください。
- 仲介手数料について

アットホームは物件情報の適正化に努めております。
内容に誤りがある場合にはこちらへご連絡ください。