東京都新宿区西新宿8丁目(西新宿駅)の中古マンション・新築マンション・分譲マンション:物件詳細
交通 所在地 |
駅徒歩 |
価格 |
構造 階建/階 |
間取り 専有面積 |
物件種目 築年月 |
|
東京メトロ丸ノ内線/西新宿
東京都新宿区西新宿8丁目
|
2分
|
7,680万円
|
SRC
地上13階地下1階建 / 6階
|
1LDK
47.52m²
|
中古マンション
1983年10月(築42年7ヶ月)
|
|
管理人日勤
|
|
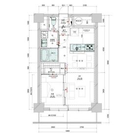
間取図
1LDK、価格7,680万円、専有面積47.52㎡(間取り図)
|
外観
流行に左右されない端正な外観デザイン。年月を経ても色褪せない美しさが魅力です。
|
その他の画像
|
| 交通 | 東京メトロ丸ノ内線 西新宿駅 徒歩2分 |
|---|
| その他の交通 | 都営大江戸線 都庁前駅 徒歩11分 都営大江戸線 新宿西口駅 徒歩10分 |
| 所在地 |
東京都新宿区西新宿8丁目
|
| 物件種目 |
中古マンション |
| 価格 |
7,680万円 |
平米単価 |
161.62万円 |
| 管理費等 |
15,060円 |
修繕積立金 |
11,210円 |
| 借地期間・地代(月額) |
- |
権利金 |
- |
| 敷金または保証金 |
- / - |
維持費等 |
- |
| その他一時金 |
- |
|
|
| 間取り |
1LDK(洋 4.6) |
専有面積 |
47.52m²(壁芯) |
| 階建 / 階 |
地上13階地下1階建 / 6階 |
バルコニー |
6.75m² |
| 築年月 |
1983年10月(築42年7ヶ月)
|
建物構造 |
SRC |
| 駐車場 |
空無 |
総戸数 |
159戸 |
| 駐輪場 |
有 |
バイク置き場 |
無 |
| ペット |
-
|
|
|
| 土地権利 |
所有権 |
敷地面積 |
- |
| 管理形態/管理員の勤務形態 |
全部委託/日勤(株式会社大京アステージ) |
国土法届出 |
- |
| アピールポイント |
★仲介手数料定額55万円。。。アクセスのいい西新宿駅徒歩2分だから、日用品の買い出しが楽チン。また食後お皿を下げるのもスムーズなカウンターキッチンで、その上カビの発生を防ぎお手入れが楽になる浴室暖房のある住戸だから、冬場の入浴もおっくうになりません。ちなみに洗髪とメイクをまとめてできるシャンプードレッサー付です。独身でも新婚でも使える1LDK。ご案内いたしますのでお気軽にご連絡ください。 |
| 建物名・部屋番号 |
|
| リフォーム履歴 |
■水回り:2026年6月 キッチン、浴室、トイレ、洗面所、給排水管、給湯器 2026年6月中旬完了予定。 ■内装:2026年6月 内装全面(床・壁・天井・建具) 2026年6月中旬完了予定。 ※実施年月は最も古い履歴を表示 |
| リノベーション履歴 |
2026年6月 2026年6月中旬完了予定。 ※実施年月は最も古い履歴を表示 |
| 瑕疵保証 |
- |
| 瑕疵保険 |
- |
| 評価・証明書 |
- |
| 備考 |
主要採光面:南東向き
|
| エネルギー消費性能 |
- |
| 断熱性能 |
- |
| 目安光熱費 |
- |
| バス・トイレ |
浴室暖房、浴室乾燥機、追焚機能、シャワー付洗面化粧台、温水洗浄便座 |
| キッチン |
カウンターキッチン |
| 設備・サービス |
全居室収納、ウォークインクローゼット、収納スペース、室内洗濯機置場、オートロック、駐輪場 |
| その他 |
エレベーター |
| 条件等 |
- |
現況 |
空家 |
| 引渡可能時期 |
相談 |
物件番号 |
6990213050 |
| 情報公開日 |
2026年4月9日 |
次回更新予定日 |
2026年5月1日 |
| ケータイ用バーコード |
- スマートフォンでこの物件を見る
- スマートフォンからもこの物件をご覧になれます。
|
※「-」と表示されている項目については、情報提供会社にご確認ください。
| 周辺施設 |
まいばすけっと西新宿8丁目店 |
| 距離 |
105m |
| 周辺施設 |
ファミリーマートタカノ西新宿店 |
| 距離 |
157m |
| 周辺施設 |
セブンイレブン新宿グランドプラザ店 |
| 距離 |
155m |
| 周辺施設 |
タリーズコーヒー西新宿駅前店 |
| 距離 |
228m |
| 周辺施設 |
マツモトキヨシ西新宿メトロピア店 |
| 距離 |
265m |
ここから簡単にお問い合わせをすることができます。
(SSLでの暗号化での送信を希望されるお客さまは
こちら
よりお問い合わせください)
お問い合わせを行う前に
「個人情報の取り扱いについて」を必ずお読みください。
「個人情報の取り扱いについて」に同意いただいた場合は「上記にご同意の上 確認画面へ進む」のボタンをクリックしてください。
個人情報の取り扱いについて
皆さまが送付された個人情報はアットホーム(株)のサーバを経由し、お問い合わせ先の不動産会社にメールまたはFAXにて転送されるためアットホーム(株)にも保管されます。アットホーム(株)で保管された個人情報の取り扱いについては、【こちら】をご覧ください。
また、本画面でご記入いただいた個人情報は、お問い合わせ先の不動産会社でも保管します。 お問い合わせ先の不動産会社が保管する個人情報の取り扱いについては、不動産会社に直接お問い合わせください。
東京都知事免許(1)第113674号 |
|---|
- 交通:
- 東急東横線/代官山駅 徒歩2分
- 東京都渋谷区恵比寿西2丁目20-8 代官山パーフェクトルーム710
- TEL:
- 03-3461-6755
- 所属団体:
- (一社)全国不動産協会会員(公社)全日本不動産協会会員(公社)首都圏不動産公正取引協議会加盟
取引態様:媒介  - 00284085
|
- スマートフォンで
この不動産会社を見る

|
- 提携サイト等より掲載されている物件情報につきましては、不動産会社詳細情報にリンクされていないものがあります。
- 物件に関するお問合せは、物件詳細ページの「情報提供会社」に表示されている不動産会社へ直接お願いいたします。
- 間取図は、現況を優先させていただきます。
- 映像は物件の一部を撮影したものです。物件の契約にあたっての最終判断はご自身の判断に基づいて行ってください。
- 仲介手数料について

アットホームは物件情報の適正化に努めております。
内容に誤りがある場合にはこちらへご連絡ください。