神奈川県相模原市中央区青葉3丁目(淵野辺駅)の一戸建て:物件詳細
交通 所在地 |
駅徒歩 |
価格 |
間取り 建物面積 |
土地面積 私道負担面積 |
物件種目 築年月 |
|
JR横浜線/淵野辺 【バス】13分 和泉短大前 停歩7分
神奈川県相模原市中央区青葉3丁目
|
-
|
5,680万円
|
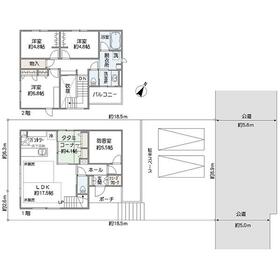
3LDK
110.50m²
|
166.29m²
なし
|
中古一戸建て
2021年9月(築4年4ヶ月)
|
|
閑静な住宅街、設計住宅性能評価書あり、建設住宅性能評価書あり、長期優良住宅(耐震、省エネ性等高い)、瑕疵保険検査基準に適合、分譲地内
|
|
間取図
|
外観
令和6年9月撮影
|
その他の画像
|
| 交通 | JR横浜線 淵野辺駅 【バス】 13分 和泉短大前 停歩7分 |
|---|
| その他の交通 | JR横浜線 相模原駅 【バス】 21分 和泉短大前 停歩7分 小田急小田原線 相模大野駅 【バス】 24分 和泉短大前 停歩7分 |
| 所在地 |
神奈川県相模原市中央区青葉3丁目
|
| 物件種目 |
中古一戸建て |
| 価格 |
5,680万円 |
借地期間・地代(月額) |
- |
| 権利金 |
- |
敷金または保証金 |
- / - |
| 維持費等 |
- |
その他一時金 |
- |
| 間取り |
3LDK |
建物面積 |
110.50m² |
| 土地権利 |
所有権 |
建物構造 |
木造 |
| 土地面積 |
166.29m²(公簿) |
私道負担面積 |
なし |
| 築年月 |
2021年9月(築4年4ヶ月)
|
都市計画 |
市街化区域 |
| 建物名 |
相模原市中央区青葉3丁目スムストック |
建築確認番号 |
- |
| 用途地域 |
1種中高 |
駐車場 |
有 無料 |
| 建ぺい率 |
60% |
容積率 |
200% |
| 階建 |
2階建 |
接道状況 |
北東 5.0m 公道 接面8.9m
|
| 地目 |
宅地 |
地勢 |
- |
| 国土法届出 |
- |
セットバック |
- |
| アピールポイント |
【積水ハウス施工】相模原市中央区青葉3丁目スムストック
■積水ハウス施工 令和3年9月築
SHAWOOD(木造)【グラヴィス ベルサ】
■JR横浜線「淵野辺」駅 バス乗車13分
「和泉短大前」停 徒歩7分
JR横浜線「相模原」駅 バス乗車21分
「和泉短大前」停 徒歩7分
小田急小田原線・小田急江ノ島線「相模大野」駅
バス乗車24分 「和泉短大前」停 徒歩7分
■長期優良住宅(新築時)
■【設計・建設】住宅性能評価書取得済み(新築時)
■3LDK+畳コーナー+防音室
■家族が集まるリビングダイニングは約17.5帖
足元から暖まる床暖房設備付き♪
■太陽光発電システム搭載(3.8kw)
■駐車スペース2台分有り
■スムストック専用瑕疵保険付保対象物件
\スムストックのおすすめポイント/
(1)「新耐震基準」レベルの耐震性を保持しています。
(2)新築時~現在に至るまでの住宅履歴(点検・補修)を管理・蓄積しています。
(3)50年以上のメンテナンスプログラムに対応。住宅購入後もそのまま引き継ぐことができます。
|
| リフォーム履歴 |
- |
| リノベーション履歴 |
- |
| 瑕疵保証 |
- |
| 瑕疵保険 |
瑕疵保険検査基準に適合 瑕疵保険(国交省指定)による保証利用可 |
| 評価・証明書 |
■長期優良住宅認定通知書 長期優良住宅認定通知書あり |
| 備考 |
法令等制限:準防火地域、道路斜線制限、隣地斜線制限、北側斜線制限
※設備:都市ガス、公営水道、公共下水道、東京電力
※その他公法規制:準防火地域、地区計画区域(青葉地区)、景観計画区域(まちの地域)、宅地造成等工事規制区域
※太陽光パネル搭載
別途、太陽光名義変更手続き費用等がかかります。(事務手数料44,000円)
|
| エネルギー消費性能 |
- |
| 断熱性能 |
- |
| 目安光熱費 |
- |
| バス・トイレ |
トイレ2ヶ所 |
| キッチン |
カウンターキッチン |
| 設備・サービス |
太陽光発電システム、床暖房、上水道、下水道、都市ガス |
| その他 |
- |
| 現況 |
所有者居住中 |
引渡可能時期 |
相談 |
| 物件番号 |
1005290680 |
|
|
| 情報公開日 |
2025年9月25日 |
次回更新予定日 |
2025年12月24日 |
| ケータイ用バーコード |
- スマートフォンでこの物件を見る
- スマートフォンからもこの物件をご覧になれます。
|
※「-」と表示されている項目については、情報提供会社にご確認ください。
| 周辺施設 |
JA相模原市 直売所ベジたべーな |
| 距離 |
330m |
| 周辺施設 |
ユーコープ ミアクチーナ並木あおば店 |
| 距離 |
1300m |
| 周辺施設 |
ファミリーマート 相模原緑が丘店 |
| 距離 |
480m |
| 周辺施設 |
クリエイトSD 相模原青葉店 |
| 距離 |
280m |
ここから簡単にお問い合わせをすることができます。
(SSLでの暗号化での送信を希望されるお客さまは
こちら
よりお問い合わせください)
お問い合わせを行う前に
「個人情報の取り扱いについて」を必ずお読みください。
「個人情報の取り扱いについて」に同意いただいた場合は「上記にご同意の上 確認画面へ進む」のボタンをクリックしてください。
個人情報の取り扱いについて
皆さまが送付された個人情報はアットホーム(株)のサーバを経由し、お問い合わせ先の不動産会社にメールまたはFAXにて転送されるためアットホーム(株)にも保管されます。アットホーム(株)で保管された個人情報の取り扱いについては、【こちら】をご覧ください。
また、本画面でご記入いただいた個人情報は、お問い合わせ先の不動産会社でも保管します。 お問い合わせ先の不動産会社が保管する個人情報の取り扱いについては、不動産会社に直接お問い合わせください。
国土交通大臣免許(13)第2343号 |
|---|
- 交通:
- 小田急小田原線/町田駅 徒歩2分
- 東京都町田市中町1丁目2番4号 日新町田ビル6F
- TEL:
- 042-725-3377
- FAX:
- 042-729-6012
- 所属団体:
- (一社)不動産流通経営協会会員(一社)不動産協会会員(公社)首都圏不動産公正取引協議会加盟
取引態様:専任媒介  - 00786295
|
- スマートフォンで
この不動産会社を見る

|
- 提携サイト等より掲載されている物件情報につきましては、不動産会社詳細情報にリンクされていないものがあります。
- 物件に関するお問合せは、物件詳細ページの「情報提供会社」に表示されている不動産会社へ直接お願いいたします。
- 間取図は、現況を優先させていただきます。
- 映像は物件の一部を撮影したものです。物件の契約にあたっての最終判断はご自身の判断に基づいて行ってください。
- 仲介手数料について

アットホームは物件情報の適正化に努めております。
内容に誤りがある場合にはこちらへご連絡ください。