東京都清瀬市中里4丁目(清瀬駅)の一戸建て:物件詳細
交通 所在地 |
駅徒歩 |
価格 |
間取り 建物面積 |
土地面積 私道負担面積 |
物件種目 築年月 |
|
西武池袋線/清瀬 【バス】9分 中里団地 停歩5分
東京都清瀬市中里4丁目
|
-
|
1,420万円
|
2DK
38.87m²
|
45.08m²
-
|
中古一戸建て
2011年5月(築14年8ヶ月)
|
|
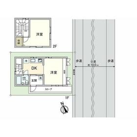
間取図
1階・2階それぞれに居室があり、プライベート空間が守られます。
|
キッチン
【キッチン】空間を有効活用できる、壁付けタイプのキッチンです。
|
<
その他の画像
>
|
| 交通 | 西武池袋線 清瀬駅 【バス】 9分 中里団地 停歩5分 |
|---|
| その他の交通 | JR武蔵野線 東所沢駅 徒歩14分 |
| 所在地 |
東京都清瀬市中里4丁目
|
| 物件種目 |
中古一戸建て |
| 価格 |
1,420万円 |
借地期間・地代(月額) |
- |
| 権利金 |
- |
敷金または保証金 |
- / - |
| 維持費等 |
- |
その他一時金 |
なし |
| 間取り |
2DK |
建物面積 |
38.87m² |
| 土地権利 |
所有権 |
建物構造 |
木造 |
| 土地面積 |
45.08m²(公簿) |
私道負担面積 |
- |
| 築年月 |
2011年5月(築14年8ヶ月)
|
都市計画 |
市街化区域 |
| 建物名 |
清瀬市中里4丁目 戸建 |
建築確認番号 |
- |
| 用途地域 |
1種低層 |
駐車場 |
無 |
| 建ぺい率 |
50% |
容積率 |
100% |
| 階建 |
2階建 |
接道状況 |
東 10.0m 公道 接面5.5m
|
| 地目 |
宅地 |
地勢 |
平坦 |
| 国土法届出 |
- |
セットバック |
- |
| アピールポイント |
■ 物件名 ━━━━━━━━━━━━━━━・・・・・
○ 清瀬市中里4丁目 戸建
■ 交通 ━━━━━━━━━━━━━━━・・・・・
○ 西武池袋線「清瀬」駅 バス9分「中里団地」停歩5分
○ 武蔵野線「東所沢」駅 徒歩14分
■ おすすめポイント ━━━━━━━━━━━━━━━・・・・・
○ 東側約10m公道のため、陽当り良好です。
○ 窓が多いため、明るく開放的な空間です。
○ 1階・2階それぞれに居室があり、プライベート空間が守られます。
○ 第一種低層住居専用地域の閑静な住宅街に佇みます。
○ 近くに柳瀬川があり、自然を感じながらお散歩できます。
※本物件は、建築基準法に定める道路に接道していないため再建築不可 |
| リフォーム履歴 |
- |
| リノベーション履歴 |
- |
| 瑕疵保証 |
- |
| 瑕疵保険 |
- |
| 評価・証明書 |
- |
| 備考 |
法令等制限:準防火地域/日影制限有/高さ最低限度有/敷地面積最低限度有
再建築不可
本物件建物は未登記のため、上記建物面積は、建築計画概要書と建築確認資料を元に記載しております。
本物件は、建築基準法に定める道路に接道していないため再建築不可です。
|
| エネルギー消費性能 |
- |
| 断熱性能 |
- |
| 目安光熱費 |
- |
| バス・トイレ |
- |
| キッチン |
- |
| 設備・サービス |
下水道、プロパンガス |
| その他 |
- |
| 現況 |
空家 |
引渡可能時期 |
相談 |
| 物件番号 |
1011915291 |
|
|
| 情報公開日 |
2025年4月28日 |
次回更新予定日 |
2025年12月29日 |
| ケータイ用バーコード |
- スマートフォンでこの物件を見る
- スマートフォンからもこの物件をご覧になれます。
|
※「-」と表示されている項目については、情報提供会社にご確認ください。
| 周辺施設 |
業務スーパー東所沢店 |
| 距離 |
1100m |
写真を見る |
| 周辺施設 |
清瀬市立清瀬小学校 |
| 距離 |
1280m |
写真を見る |
| 周辺施設 |
清瀬市立清瀬中学校 |
| 距離 |
1100m |
写真を見る |
| 周辺施設 |
清瀬中里郵便局 |
| 距離 |
630m |
写真を見る |
| 周辺施設 |
中里柳瀬公園 |
| 距離 |
200m |
写真を見る |
| 周辺施設 |
清瀬市中里地域市民センター |
| 距離 |
140m |
ここから簡単にお問い合わせをすることができます。
(SSLでの暗号化での送信を希望されるお客さまは
こちら
よりお問い合わせください)
お問い合わせを行う前に
「個人情報の取り扱いについて」を必ずお読みください。
「個人情報の取り扱いについて」に同意いただいた場合は「上記にご同意の上 確認画面へ進む」のボタンをクリックしてください。
個人情報の取り扱いについて
皆さまが送付された個人情報はアットホーム(株)のサーバを経由し、お問い合わせ先の不動産会社にメールまたはFAXにて転送されるためアットホーム(株)にも保管されます。アットホーム(株)で保管された個人情報の取り扱いについては、【こちら】をご覧ください。
また、本画面でご記入いただいた個人情報は、お問い合わせ先の不動産会社でも保管します。 お問い合わせ先の不動産会社が保管する個人情報の取り扱いについては、不動産会社に直接お問い合わせください。
国土交通大臣免許(15)第777号 |
|---|
- 交通:
- 西武池袋線/ひばりヶ丘駅 徒歩1分
- 東京都西東京市ひばりが丘北3丁目3-51 KATURA BLD 2F
- TEL:
- 0120-40-6831
- FAX:
- 042-439-0132
- 所属団体:
- (一社)不動産流通経営協会会員(公社)首都圏不動産公正取引協議会加盟
取引態様:専属専任媒介  - 00783697
|
- スマートフォンで
この不動産会社を見る

|
- 提携サイト等より掲載されている物件情報につきましては、不動産会社詳細情報にリンクされていないものがあります。
- 物件に関するお問合せは、物件詳細ページの「情報提供会社」に表示されている不動産会社へ直接お願いいたします。
- 間取図は、現況を優先させていただきます。
- 映像は物件の一部を撮影したものです。物件の契約にあたっての最終判断はご自身の判断に基づいて行ってください。
- 仲介手数料について

アットホームは物件情報の適正化に努めております。
内容に誤りがある場合にはこちらへご連絡ください。