東京都杉並区永福4丁目(永福町駅)の一戸建て:物件詳細
交通 所在地 |
駅徒歩 |
価格 |
間取り 建物面積 |
土地面積 私道負担面積 |
物件種目 築年月 |
|
京王井の頭線/永福町
東京都杉並区永福4丁目
|
5分
|
13,480万円
|
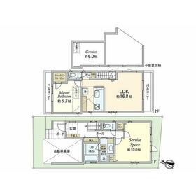
1SLDK
97.18m²
|
84.70m²
-
|
新築一戸建て
2025年10月
|
|
天井高2.5M以上、バス1坪以上、全室2面採光、3面採光、長期優良住宅(耐震、省エネ性等高い)
|
|
≪オープンハウス/モデルハウス≫【開催期間】~2025年11月9日 【時間】11:00~17:00 開催日:25年11月8日,25年11月9日 直接現地へご来…
|
|
間取図
間取図
|
外観
外観
|
<
その他の画像
>
|
| 交通 | 京王井の頭線 永福町駅 徒歩5分 |
|---|
| その他の交通 | 京王井の頭線 西永福駅 徒歩9分 |
| 所在地 |
東京都杉並区永福4丁目
|
| 物件種目 |
新築一戸建て |
| 価格 |
13,480万円 |
借地期間・地代(月額) |
- |
| 権利金 |
- |
敷金または保証金 |
- / - |
| 維持費等 |
- |
その他一時金 |
なし |
| 間取り |
1SLDK |
建物面積 |
97.18m² |
| 土地権利 |
所有権 |
建物構造 |
木造 |
| 土地面積 |
84.70m²(公簿) |
私道負担面積 |
- |
| 築年月 |
2025年10月
|
都市計画 |
市街化区域 |
| 建物名 |
永福4丁目新築戸建 A号棟 |
建築確認番号 |
HPA-25-04564-1号 |
| 用途地域 |
1種低層 |
駐車場 |
有 |
| 建ぺい率 |
50% |
容積率 |
100% |
| 階建 |
2階建 |
接道状況 |
北 4.0m 公道 接面5.9m
|
| 地目 |
宅地 |
地勢 |
- |
| 国土法届出 |
- |
セットバック |
- |
| アピールポイント |
■アクセスーーーーーー
〇井の頭線「永福町」駅 徒歩5分
〇井の頭線「西永福」駅 徒歩9分
■物件概要・おすすめポイント
〇2025年10月完成予定
〇建物面積:97.18平米
※車庫面積12.57平米含む、別途小屋裏収納9.98平米有り
〇1SLDK
〇お部屋を見渡せるカウンターキッチン
〇リビング天井高約3.5m
〇TES床暖房(リビング・ダイニング)
〇ミストサウナ、TV付浴室
〇オール浄水システム(ANOA〈アノア〉)
〇間仕切りにて1LDK+2Sに変更可能
※別途有償工事が必要
〇不在時にも安心な宅配ボックスあり
〇スーパーやコンビ二が徒歩圏内
〇建物初期保証20年
〇住宅設備機器保証10年
【杉並区・世田谷区へのお住みかえをご検討中のお客様】
■ご自宅の『売却』も三井のリハウスにお任せください
お住まいの購入から売却まで、お客様のご事情に合わせてトータルサポートいたします。
まずはフリーコールにて、ご所有不動産の概要をお申し付けください。
フリーコール:0120ー317-631 |
| リフォーム履歴 |
- |
| リノベーション履歴 |
- |
| 瑕疵保証 |
- |
| 瑕疵保険 |
- |
| 評価・証明書 |
■長期優良住宅認定通知書 長期優良住宅認定通知書あり |
| 備考 |
号棟番号:A
※建物面積には車庫面積12.57平米を含む
※建蔽率は準防火地域の準耐火構造につき60%に緩和
|
| エネルギー消費性能 |
- |
| 断熱性能 |
- |
| 目安光熱費 |
- |
| バス・トイレ |
TV付浴室、ミストサウナ、トイレ2ヶ所、浴室に窓あり |
| キッチン |
カウンターキッチン、システムキッチン、食器洗浄乾燥機、浄水器、3口以上コンロ |
| 設備・サービス |
ウォークインクローゼット、床暖房、床下収納、グルニエ、下水道、都市ガス |
| その他 |
- |
| 現況 |
空家 |
引渡可能時期 |
相談 |
| 物件番号 |
1013259691 |
|
|
| 情報公開日 |
2025年9月4日 |
次回更新予定日 |
2025年11月17日 |
| ケータイ用バーコード |
- スマートフォンでこの物件を見る
- スマートフォンからもこの物件をご覧になれます。
|
※「-」と表示されている項目については、情報提供会社にご確認ください。
| 周辺施設 |
杉並区立永福小学校 |
| 距離 |
680m |
写真を見る |
| 周辺施設 |
杉並区立大宮中学校 |
| 距離 |
1270m |
写真を見る |
| 周辺施設 |
サミットストア西永福店 |
| 距離 |
520m |
写真を見る |
| 周辺施設 |
キッチンコート永福町店 |
| 距離 |
380m |
写真を見る |
| 周辺施設 |
永福町駅(京王 井の頭線) |
| 距離 |
390m |
写真を見る |
| 周辺施設 |
西永福駅(京王 井の頭線) |
| 距離 |
700m |
写真を見る |
| 周辺施設 |
下高井戸おおぞら公園 |
| 距離 |
860m |
写真を見る |
| 周辺施設 |
セブンイレブン杉並永福町駅前店 |
| 距離 |
280m |
写真を見る |
ここから簡単にお問い合わせをすることができます。
(SSLでの暗号化での送信を希望されるお客さまは
こちら
よりお問い合わせください)
お問い合わせを行う前に
「個人情報の取り扱いについて」を必ずお読みください。
「個人情報の取り扱いについて」に同意いただいた場合は「上記にご同意の上 確認画面へ進む」のボタンをクリックしてください。
個人情報の取り扱いについて
皆さまが送付された個人情報はアットホーム(株)のサーバを経由し、お問い合わせ先の不動産会社にメールまたはFAXにて転送されるためアットホーム(株)にも保管されます。アットホーム(株)で保管された個人情報の取り扱いについては、【こちら】をご覧ください。
また、本画面でご記入いただいた個人情報は、お問い合わせ先の不動産会社でも保管します。 お問い合わせ先の不動産会社が保管する個人情報の取り扱いについては、不動産会社に直接お問い合わせください。
国土交通大臣免許(15)第777号 |
|---|
- 交通:
- 京王井の頭線/永福町駅 徒歩2分
- 東京都杉並区永福2丁目60-24 メゾン永福1F
- TEL:
- 0120-317-631
- FAX:
- 03-3322-3133
- 所属団体:
- (一社)不動産流通経営協会会員(公社)首都圏不動産公正取引協議会加盟
取引態様:一般媒介  - 00783717
|
- スマートフォンで
この不動産会社を見る

|
- 提携サイト等より掲載されている物件情報につきましては、不動産会社詳細情報にリンクされていないものがあります。
- 物件に関するお問合せは、物件詳細ページの「情報提供会社」に表示されている不動産会社へ直接お願いいたします。
- 間取図は、現況を優先させていただきます。
- 映像は物件の一部を撮影したものです。物件の契約にあたっての最終判断はご自身の判断に基づいて行ってください。
- 仲介手数料について

アットホームは物件情報の適正化に努めております。
内容に誤りがある場合にはこちらへご連絡ください。