神奈川県相模原市南区相南2丁目(小田急相模原駅)の一戸建て:物件詳細
交通 所在地 |
駅徒歩 |
価格 |
間取り 建物面積 |
土地面積 私道負担面積 |
物件種目 築年月 |
|
小田急小田原線/小田急相模原
神奈川県相模原市南区相南2丁目
|
11分
|
4,580万円
|
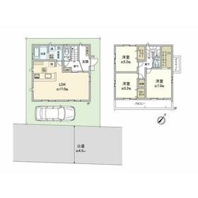
3LDK
88.44m²
|
90.04m²
-
|
新築一戸建て
2025年7月
|
|
間取図
間取図
|
外観
【外観】土地面積90.04平米(27.23坪)建物面積88.44平米(26.74坪)3LDKの間取…
|
<
その他の画像
>
|
| 交通 | 小田急小田原線 小田急相模原駅 徒歩11分 |
|---|
| その他の交通 | 小田急江ノ島線 東林間駅 徒歩18分 東急田園都市線 中央林間駅 徒歩26分 |
| 所在地 |
神奈川県相模原市南区相南2丁目
|
| 物件種目 |
新築一戸建て |
| 価格 |
4,580万円 |
借地期間・地代(月額) |
- |
| 権利金 |
- |
敷金または保証金 |
- / - |
| 維持費等 |
- |
その他一時金 |
なし |
| 間取り |
3LDK |
建物面積 |
88.44m² |
| 土地権利 |
所有権 |
建物構造 |
木造 |
| 土地面積 |
90.04m²(実測) |
私道負担面積 |
- |
| 築年月 |
2025年7月
|
都市計画 |
市街化区域 |
| 建物名 |
相南2丁目新築戸建 1号棟 |
建築確認番号 |
第R07SHC101858号 |
| 用途地域 |
1種低層 |
駐車場 |
有 無料 |
| 建ぺい率 |
50% |
容積率 |
100% |
| 階建 |
2階建 |
接道状況 |
-
|
| 地目 |
宅地 |
地勢 |
- |
| 国土法届出 |
- |
セットバック |
- |
| リフォーム履歴 |
- |
| リノベーション履歴 |
- |
| 瑕疵保証 |
- |
| 瑕疵保険 |
- |
| 評価・証明書 |
- |
| 備考 |
号棟番号:1
|
| エネルギー消費性能 |
- |
| 断熱性能 |
- |
| 目安光熱費 |
- |
| バス・トイレ |
- |
| キッチン |
- |
| 設備・サービス |
下水道、都市ガス |
| その他 |
- |
| 現況 |
空家 |
引渡可能時期 |
相談 |
| 物件番号 |
1013480391 |
|
|
| 情報公開日 |
2025年7月19日 |
次回更新予定日 |
2025年11月3日 |
| ケータイ用バーコード |
- スマートフォンでこの物件を見る
- スマートフォンからもこの物件をご覧になれます。
|
※「-」と表示されている項目については、情報提供会社にご確認ください。
| 周辺施設 |
イトーヨーカドー相模原店 |
| 距離 |
690m |
写真を見る |
| 周辺施設 |
ラクアルオダサガ |
| 距離 |
1000m |
写真を見る |
| 周辺施設 |
ローソン相模原相南4丁目店 |
| 距離 |
580m |
写真を見る |
| 周辺施設 |
スギ薬局小田急相模原店 |
| 距離 |
760m |
写真を見る |
| 周辺施設 |
ケーヨーデイツー相武台店 |
| 距離 |
1530m |
写真を見る |
| 周辺施設 |
医療法人興生会 相模台病院 |
| 距離 |
1090m |
写真を見る |
| 周辺施設 |
相模原相南郵便局 |
| 距離 |
290m |
写真を見る |
ここから簡単にお問い合わせをすることができます。
(SSLでの暗号化での送信を希望されるお客さまは
こちら
よりお問い合わせください)
お問い合わせを行う前に
「個人情報の取り扱いについて」を必ずお読みください。
「個人情報の取り扱いについて」に同意いただいた場合は「上記にご同意の上 確認画面へ進む」のボタンをクリックしてください。
個人情報の取り扱いについて
皆さまが送付された個人情報はアットホーム(株)のサーバを経由し、お問い合わせ先の不動産会社にメールまたはFAXにて転送されるためアットホーム(株)にも保管されます。アットホーム(株)で保管された個人情報の取り扱いについては、【こちら】をご覧ください。
また、本画面でご記入いただいた個人情報は、お問い合わせ先の不動産会社でも保管します。 お問い合わせ先の不動産会社が保管する個人情報の取り扱いについては、不動産会社に直接お問い合わせください。
国土交通大臣免許(15)第777号 |
|---|
- 交通:
- 小田急小田原線/相模大野駅 徒歩2分
- 神奈川県相模原市南区相模大野3丁目12-15 ON BLDG4F
- TEL:
- 0120-944-131
- FAX:
- 042-746-3141
- 所属団体:
- (一社)不動産流通経営協会会員(公社)首都圏不動産公正取引協議会加盟
取引態様:媒介  - 00783774
|
- スマートフォンで
この不動産会社を見る

|
- 提携サイト等より掲載されている物件情報につきましては、不動産会社詳細情報にリンクされていないものがあります。
- 物件に関するお問合せは、物件詳細ページの「情報提供会社」に表示されている不動産会社へ直接お願いいたします。
- 間取図は、現況を優先させていただきます。
- 映像は物件の一部を撮影したものです。物件の契約にあたっての最終判断はご自身の判断に基づいて行ってください。
- 仲介手数料について

アットホームは物件情報の適正化に努めております。
内容に誤りがある場合にはこちらへご連絡ください。