東京都三鷹市大沢1丁目(調布駅)の一戸建て:物件詳細
交通 所在地 |
駅徒歩 |
価格 |
間取り 建物面積 |
土地面積 私道負担面積 |
物件種目 築年月 |
|
京王線/調布 【バス】20分 大沢橋・羽沢小学校前 停歩1分
東京都三鷹市大沢1丁目
|
-
|
4,950万円
|
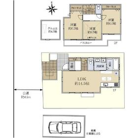
3LDK
74.52m²
|
93.78m²
-
|
中古一戸建て
2023年7月(築2年11ヶ月)
|
|
3面採光、24時間換気システム、閑静な住宅街
|
|
≪オープンハウス/モデルハウス≫【開催期間】2026年5月9日~ 【時間】10:00~17:00 事前に必ず予約してください
|
|
間取図
|
外観
LDK 眺望・日当たりの良い段丘上のお家です。現在空家のためいつでもご見学いただけます。
|
<
その他の画像
>
|
| 交通 | 京王線 調布駅 【バス】 20分 大沢橋・羽沢小学校前 停歩1分 |
|---|
| その他の交通 | JR中央線 武蔵境駅 【バス】 23分 大沢橋・羽沢小学校前 停歩2分 京王線 西調布駅 徒歩24分 |
| 所在地 |
東京都三鷹市大沢1丁目
|
| 物件種目 |
中古一戸建て |
| 価格 |
4,950万円 |
借地期間・地代(月額) |
- |
| 権利金 |
- |
敷金または保証金 |
- / - |
| 維持費等 |
- |
その他一時金 |
- |
| 間取り |
3LDK |
建物面積 |
74.52m² |
| 土地権利 |
所有権 |
建物構造 |
木造 |
| 土地面積 |
93.78m²(公簿) |
私道負担面積 |
- |
| 築年月 |
2023年7月(築2年11ヶ月)
|
都市計画 |
市街化区域 |
| 建物名 |
三鷹市大沢1丁目戸建 |
建築確認番号 |
- |
| 用途地域 |
1種低層 |
駐車場 |
有 |
| 建ぺい率 |
40% |
容積率 |
80% |
| 階建 |
2階建 |
接道状況 |
西 4.9m 公道 接面8.0m
|
| 地目 |
宅地 |
地勢 |
- |
| 国土法届出 |
- |
セットバック |
- |
| アピールポイント |
*毎週土・日曜日 予約制オープンハウス開催中
*空家のためお気軽にご見学いただけます
◆見晴らしの良い高台のお家
◇調湿性・耐久性に優れた「檜」無垢材使用
◆風雨からお車を守れる掘り込み車庫(照明付)
≪物件設備≫
・床暖房(LD部分) ・食洗機
・浄水器 ・南側ワイドバルコニー 等
●バス停まで徒歩1分の好立地
調布駅方面は朝ラッシュ7時台11本、12時台7本運行(平日)
●都心へのアクセス良好
京王線「調布」駅~京王線「新宿」駅まで
日中18分、朝ラッシュ時28分(特急利用)
○小学校まで徒歩3分 車通りの少ない安全な道のりです
○シェアサイクルポートまで徒歩2分
|
| リフォーム履歴 |
- |
| リノベーション履歴 |
- |
| 瑕疵保証 |
- |
| 瑕疵保険 |
- |
| 評価・証明書 |
- |
| 備考 |
駐車場/車庫(車種による)
バス便調査日:2025年11月10日/車庫面積:18.00㎡ ※建物面積に含まれません/車庫部分の構造はRC造となります
|
| エネルギー消費性能 |
- |
| 断熱性能 |
- |
| 目安光熱費 |
- |
| バス・トイレ |
浴室暖房、浴室乾燥機、追焚機能、シャワー付洗面化粧台、温水洗浄便座、トイレ2ヶ所 |
| キッチン |
システムキッチン、食器洗浄乾燥機、浄水器、3口以上コンロ、グリル |
| 設備・サービス |
床暖房、クローゼット、床下収納、モニター付インターホン、カードキー、ダブルロックドア、シャッター雨戸、省エネ給湯器、全居室フローリング、グルニエ、上水道、下水道、都市ガス、ワイドバルコニー、火災警報器(報知機)、複層ガラス |
| その他 |
- |
| 現況 |
空家 |
引渡可能時期 |
即時 |
| 物件番号 |
1013619987 |
|
|
| 情報公開日 |
2026年3月20日 |
次回更新予定日 |
2026年5月16日 |
| ケータイ用バーコード |
- スマートフォンでこの物件を見る
- スマートフォンからもこの物件をご覧になれます。
|
※「-」と表示されている項目については、情報提供会社にご確認ください。
| 周辺施設 |
京王線「調布」駅 |
| 距離 |
2600m |
写真を見る |
| 周辺施設 |
JR中央線・西武多摩川線「武蔵境」駅 |
| 距離 |
2600m |
写真を見る |
| 周辺施設 |
バス停「大沢橋・羽沢小学校前」(調布駅方面) |
| 距離 |
80m |
写真を見る |
| 周辺施設 |
三鷹市立羽沢小学校 |
| 距離 |
190m |
写真を見る |
| 周辺施設 |
セブンイレブン 三鷹大沢1丁目 |
| 距離 |
130m |
写真を見る |
| 周辺施設 |
椎の実子供の家(保育園) |
| 距離 |
290m |
写真を見る |
ここから簡単にお問い合わせをすることができます。
(SSLでの暗号化での送信を希望されるお客さまは
こちら
よりお問い合わせください)
お問い合わせを行う前に
「個人情報の取り扱いについて」を必ずお読みください。
「個人情報の取り扱いについて」に同意いただいた場合は「上記にご同意の上 確認画面へ進む」のボタンをクリックしてください。
個人情報の取り扱いについて
皆さまが送付された個人情報はアットホーム(株)のサーバを経由し、お問い合わせ先の不動産会社にメールまたはFAXにて転送されるためアットホーム(株)にも保管されます。アットホーム(株)で保管された個人情報の取り扱いについては、【こちら】をご覧ください。
また、本画面でご記入いただいた個人情報は、お問い合わせ先の不動産会社でも保管します。 お問い合わせ先の不動産会社が保管する個人情報の取り扱いについては、不動産会社に直接お問い合わせください。
国土交通大臣免許(13)第2077号 |
|---|
- 交通:
- 京王線/府中駅 徒歩2分
- 東京都府中市府中町1丁目1-5 府中Renolikeビル1階
- TEL:
- 0120-364-937
- FAX:
- 042-363-1277
- 所属団体:
- (一社)不動産流通経営協会会員(公社)首都圏不動産公正取引協議会加盟
取引態様:専任媒介  - 00783253
|
- スマートフォンで
この不動産会社を見る

|
- 提携サイト等より掲載されている物件情報につきましては、不動産会社詳細情報にリンクされていないものがあります。
- 物件に関するお問合せは、物件詳細ページの「情報提供会社」に表示されている不動産会社へ直接お願いいたします。
- 間取図は、現況を優先させていただきます。
- 映像は物件の一部を撮影したものです。物件の契約にあたっての最終判断はご自身の判断に基づいて行ってください。
- 仲介手数料について

アットホームは物件情報の適正化に努めております。
内容に誤りがある場合にはこちらへご連絡ください。