神奈川県相模原市中央区陽光台4丁目(上溝駅)の一戸建て:物件詳細
交通 所在地 |
駅徒歩 |
価格 |
間取り 建物面積 |
土地面積 私道負担面積 |
物件種目 築年月 |
|
JR相模線/上溝
神奈川県相模原市中央区陽光台4丁目
|
18分
|
3,080万円
|
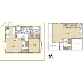
2LDK
84.87m²
|
106.17m²
-
|
中古一戸建て
2014年6月(築11年9ヶ月)
|
|
デザイナーズ、全室2面採光、2面採光、吹抜、閑静な住宅街、オール電化、区画整理地内、整形地
|
|
間取図
|
外観
現地外観(日当たりの良い角地)
|
<
その他の画像
>
|
| 交通 | JR相模線 上溝駅 徒歩18分 |
| 所在地 |
神奈川県相模原市中央区陽光台4丁目
|
| 物件種目 |
中古一戸建て |
| 価格 |
3,080万円 |
借地期間・地代(月額) |
- |
| 権利金 |
- |
敷金または保証金 |
- / - |
| 維持費等 |
- |
その他一時金 |
- |
| 間取り |
2LDK |
建物面積 |
84.87m² |
| 土地権利 |
所有権 |
建物構造 |
木造 |
| 土地面積 |
106.17m² |
私道負担面積 |
- |
| 築年月 |
2014年6月(築11年9ヶ月)
|
都市計画 |
市街化区域 |
| 建物名 |
相模原市中央区陽光台4丁目戸建 |
建築確認番号 |
- |
| 用途地域 |
1種低層 |
駐車場 |
有 |
| 建ぺい率 |
40% |
容積率 |
80% |
| 階建 |
2階建 |
接道状況 |
北西 4.0m 公道 接面9.1m
・ 南西 4.0m 公道 接面8.8m
・ 二方道路
|
| 地目 |
宅地 |
地勢 |
- |
| 国土法届出 |
- |
セットバック |
- |
| アピールポイント |
◆JR相模線「上溝」駅徒歩18分
◆土地面積:106.17㎡
◆建物面積:84.87㎡
◆間取り:2LDK(3LDKにも間取り変更可能)
◆2014年(平成26年)6月築、木造2階建
◆カースペース2台分(車種による)
◆桧家住宅施工の注文住宅
◆オール電化
~Sales Point~
◎角地
◎閑静な住宅街
◎保育園や公園が近く、子育て世代に嬉しい立地
◎開放感が広がる吹き抜け構造
◎段差の少ないバリアフリー設計
◎車通りの少ない前面道路
◎生活が容易な1階リビング
◎バルコニーが2箇所あり
◎トイレと洗面台が各階にあり
◎全居室に収納あり
◎全居室に窓あり |
| リフォーム履歴 |
- |
| リノベーション履歴 |
- |
| 瑕疵保証 |
- |
| 瑕疵保険 |
- |
| 評価・証明書 |
- |
| 備考 |
LDKを3LDKに変更可。ただし、工事費用等は買主負担です。
|
| エネルギー消費性能 |
- |
| 断熱性能 |
- |
| 目安光熱費 |
- |
| バス・トイレ |
追焚機能、温水洗浄便座、トイレ2ヶ所 |
| キッチン |
- |
| 設備・サービス |
全居室収納、クローゼット、床下収納、モニター付インターホン、上水道、下水道、ダウンライト、火災警報器(報知機) |
| その他 |
- |
| 現況 |
所有者居住中 |
引渡可能時期 |
相談 |
| 物件番号 |
1014553587 |
|
|
| 情報公開日 |
2025年12月6日 |
次回更新予定日 |
2026年2月20日 |
| ケータイ用バーコード |
- スマートフォンでこの物件を見る
- スマートフォンからもこの物件をご覧になれます。
|
※「-」と表示されている項目については、情報提供会社にご確認ください。
ここから簡単にお問い合わせをすることができます。
(SSLでの暗号化での送信を希望されるお客さまは
こちら
よりお問い合わせください)
お問い合わせを行う前に
「個人情報の取り扱いについて」を必ずお読みください。
「個人情報の取り扱いについて」に同意いただいた場合は「上記にご同意の上 確認画面へ進む」のボタンをクリックしてください。
個人情報の取り扱いについて
皆さまが送付された個人情報はアットホーム(株)のサーバを経由し、お問い合わせ先の不動産会社にメールまたはFAXにて転送されるためアットホーム(株)にも保管されます。アットホーム(株)で保管された個人情報の取り扱いについては、【こちら】をご覧ください。
また、本画面でご記入いただいた個人情報は、お問い合わせ先の不動産会社でも保管します。 お問い合わせ先の不動産会社が保管する個人情報の取り扱いについては、不動産会社に直接お問い合わせください。
国土交通大臣免許(13)第2077号 |
|---|
- 交通:
- JR横浜線/橋本駅 徒歩3分
- 神奈川県相模原市緑区橋本6丁目4-15 Flos橋本5F
- TEL:
- 0120-313-617
- FAX:
- 042-772-5912
- 所属団体:
- (一社)不動産流通経営協会会員(公社)首都圏不動産公正取引協議会加盟
取引態様:専属専任媒介  - 00783303
|
- スマートフォンで
この不動産会社を見る

|
- 提携サイト等より掲載されている物件情報につきましては、不動産会社詳細情報にリンクされていないものがあります。
- 物件に関するお問合せは、物件詳細ページの「情報提供会社」に表示されている不動産会社へ直接お願いいたします。
- 間取図は、現況を優先させていただきます。
- 映像は物件の一部を撮影したものです。物件の契約にあたっての最終判断はご自身の判断に基づいて行ってください。
- 仲介手数料について

アットホームは物件情報の適正化に努めております。
内容に誤りがある場合にはこちらへご連絡ください。