東京都練馬区氷川台4丁目(氷川台駅)の一戸建て:物件詳細
交通 所在地 |
駅徒歩 |
価格 |
間取り 建物面積 |
土地面積 私道負担面積 |
物件種目 築年月 |
|
東京メトロ有楽町線/氷川台
東京都練馬区氷川台4丁目
|
5分
|
9,980万円
|
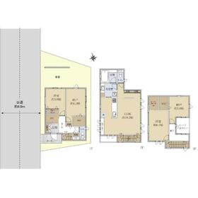
2SLDK
110.12m²
|
77.28m²
なし
|
中古一戸建て
2024年5月(築1年8ヶ月)
|
|
全室2面採光、閑静な住宅街
|
|
≪オープンハウス/モデルハウス≫【開催期間】2025年12月20日~ 【時間】11:00~16:00 事前に必ず予約してください
|
|
間取図
|
外観
外観
|
<
その他の画像
>
|
| 交通 | 東京メトロ有楽町線 氷川台駅 徒歩5分 |
| 所在地 |
東京都練馬区氷川台4丁目
|
| 物件種目 |
中古一戸建て |
| 価格 |
9,980万円 |
借地期間・地代(月額) |
- |
| 権利金 |
- |
敷金または保証金 |
- / - |
| 維持費等 |
- |
その他一時金 |
- |
| 間取り |
2SLDK |
建物面積 |
110.12m² |
| 土地権利 |
所有権 |
建物構造 |
木造 |
| 土地面積 |
77.28m²(公簿) |
私道負担面積 |
なし |
| 築年月 |
2024年5月(築1年8ヶ月)
|
都市計画 |
市街化区域 |
| 建物名 |
練馬区氷川台4丁目 戸建 |
建築確認番号 |
- |
| 用途地域 |
1種低層 |
駐車場 |
有 |
| 建ぺい率 |
60% |
容積率 |
200% |
| 階建 |
3階建 |
接道状況 |
北西 6.0m 公道 接面14.3m
|
| 地目 |
宅地 |
地勢 |
平坦 |
| 国土法届出 |
- |
セットバック |
- |
| アピールポイント |
~物件概要~
・土地面積:77.28㎡(23.37坪)
・建物面積:110.12㎡(33.31坪)
・令和6年5月築、2SSLDK
・北西側約6.0m道路接道
・車庫1台分有(8.69㎡)※車種による
・車庫にEVコンセント有
・各居室収納あり
・ルーフバルコニー有
・居室2部屋
・納戸2箇所
~設備~
・LD部分に床暖房有
・キッチン部分と洗面所がつながっており家事がしやすい間取りです。
・食器洗浄機付
・浴室乾燥機付
・1階、2階トイレ有
・家族の衣類などをまとめて収納できるファミリークローク有。
|
| リフォーム履歴 |
- |
| リノベーション履歴 |
- |
| 瑕疵保証 |
- |
| 瑕疵保険 |
- |
| 評価・証明書 |
- |
| 備考 |
-
|
| エネルギー消費性能 |
- |
| 断熱性能 |
- |
| 目安光熱費 |
- |
| バス・トイレ |
浴室暖房、浴室乾燥機、温水洗浄便座、トイレ2ヶ所 |
| キッチン |
食器洗浄乾燥機、浄水器、3口以上コンロ |
| 設備・サービス |
全居室収納、ウォークインクローゼット、床暖房、床下収納、モニター付インターホン、防犯用ガラス、上水道、下水道、都市ガス、複層ガラス |
| その他 |
- |
| 現況 |
所有者居住中 |
引渡可能時期 |
相談 |
| 物件番号 |
1014603487 |
|
|
| 情報公開日 |
2025年6月13日 |
次回更新予定日 |
2025年12月30日 |
| ケータイ用バーコード |
- スマートフォンでこの物件を見る
- スマートフォンからもこの物件をご覧になれます。
|
※「-」と表示されている項目については、情報提供会社にご確認ください。
| 周辺施設 |
ファミリーマート練馬氷川台店 |
| 距離 |
130m |
写真を見る |
| 周辺施設 |
まいばすけっと氷川台駅北店 |
| 距離 |
180m |
写真を見る |
| 周辺施設 |
どらっぐぱぱす氷川台駅前店 |
| 距離 |
320m |
写真を見る |
| 周辺施設 |
東京メトロ副都心線・有楽町線『氷川台』駅 |
| 距離 |
400m |
写真を見る |
| 周辺施設 |
練馬区立仲町小学校 |
| 距離 |
830m |
写真を見る |
ここから簡単にお問い合わせをすることができます。
(SSLでの暗号化での送信を希望されるお客さまは
こちら
よりお問い合わせください)
お問い合わせを行う前に
「個人情報の取り扱いについて」を必ずお読みください。
「個人情報の取り扱いについて」に同意いただいた場合は「上記にご同意の上 確認画面へ進む」のボタンをクリックしてください。
個人情報の取り扱いについて
皆さまが送付された個人情報はアットホーム(株)のサーバを経由し、お問い合わせ先の不動産会社にメールまたはFAXにて転送されるためアットホーム(株)にも保管されます。アットホーム(株)で保管された個人情報の取り扱いについては、【こちら】をご覧ください。
また、本画面でご記入いただいた個人情報は、お問い合わせ先の不動産会社でも保管します。 お問い合わせ先の不動産会社が保管する個人情報の取り扱いについては、不動産会社に直接お問い合わせください。
住友不動産ステップ(株) 練馬営業センター国土交通大臣免許(13)第2077号 |
|---|
- 交通:
- 西武池袋線/練馬駅 徒歩1分
- 東京都練馬区豊玉北5丁目17-12 練馬駅前ビル7F
- TEL:
- 0120-002-133
- FAX:
- 03-5984-0667
- 所属団体:
- (一社)不動産流通経営協会会員(公社)首都圏不動産公正取引協議会加盟
取引態様:専任媒介 |
- 提携サイト等より掲載されている物件情報につきましては、不動産会社詳細情報にリンクされていないものがあります。
- 物件に関するお問合せは、物件詳細ページの「情報提供会社」に表示されている不動産会社へ直接お願いいたします。
- 間取図は、現況を優先させていただきます。
- 映像は物件の一部を撮影したものです。物件の契約にあたっての最終判断はご自身の判断に基づいて行ってください。
- 仲介手数料について

アットホームは物件情報の適正化に努めております。
内容に誤りがある場合にはこちらへご連絡ください。