神奈川県横浜市旭区笹野台2丁目(三ツ境駅)の一戸建て:物件詳細
交通 所在地 |
駅徒歩 |
価格 |
間取り 建物面積 |
土地面積 私道負担面積 |
物件種目 築年月 |
|
相鉄本線/三ツ境
神奈川県横浜市旭区笹野台2丁目
|
6分
|
14,800万円
|
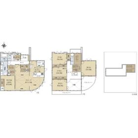
5LDK
160.79m²
|
235.13m²
-
|
中古一戸建て
2017年2月(築8年10ヶ月)
|
|
駐車場3台分以上、3面採光、24時間換気システム、閑静な住宅街、オール電化、整形地
|
|
間取図
|
外観
外観
|
<
その他の画像
>
|
| 交通 | 相鉄本線 三ツ境駅 徒歩6分 |
| 所在地 |
神奈川県横浜市旭区笹野台2丁目
|
| 物件種目 |
中古一戸建て |
| 価格 |
14,800万円 |
借地期間・地代(月額) |
- |
| 権利金 |
- |
敷金または保証金 |
- / - |
| 維持費等 |
- |
その他一時金 |
- |
| 間取り |
5LDK |
建物面積 |
160.79m² |
| 土地権利 |
所有権 |
建物構造 |
木造 |
| 土地面積 |
235.13m²(公簿) |
私道負担面積 |
- |
| 築年月 |
2017年2月(築8年10ヶ月)
|
都市計画 |
市街化区域 |
| 建物名 |
横浜市旭区笹野台2丁目戸建 |
建築確認番号 |
- |
| 用途地域 |
1種低層 |
駐車場 |
有 |
| 建ぺい率 |
40% |
容積率 |
80% |
| 階建 |
2階建 |
接道状況 |
北 6.1m 公道 接面14.3m
|
| 地目 |
宅地 |
地勢 |
平坦 |
| 国土法届出 |
- |
セットバック |
- |
| アピールポイント |
◇土地面積235.13㎡◇建物面積1階89.65㎡、2階71.14㎡(延べ床面積160.79㎡)
◇相模鉄道本線三ツ境駅徒歩6分
◇2017年築ウィザースホーム施工の注文住宅 |
| リフォーム履歴 |
- |
| リノベーション履歴 |
- |
| 瑕疵保証 |
- |
| 瑕疵保険 |
- |
| 評価・証明書 |
- |
| 備考 |
駐車場の駐車可否は車種によります。
|
| エネルギー消費性能 |
- |
| 断熱性能 |
- |
| 目安光熱費 |
- |
| バス・トイレ |
浴室暖房、浴室乾燥機、追焚機能、シャワー付洗面化粧台、温水洗浄便座、タンクレストイレ、トイレ2ヶ所 |
| キッチン |
カウンターキッチン、システムキッチン、浄水器、IHクッキングヒーター |
| 設備・サービス |
全居室収納、ウォークインクローゼット、太陽光発電システム、床暖房、シューズインクローゼット、モニター付インターホン、ダブルロックドア、上水道、下水道、ケーブルTV |
| その他 |
- |
| 現況 |
所有者居住中 |
引渡可能時期 |
相談 |
| 物件番号 |
1014678187 |
|
|
| 情報公開日 |
2025年6月17日 |
次回更新予定日 |
2025年11月2日 |
| ケータイ用バーコード |
- スマートフォンでこの物件を見る
- スマートフォンからもこの物件をご覧になれます。
|
※「-」と表示されている項目については、情報提供会社にご確認ください。
ここから簡単にお問い合わせをすることができます。
(SSLでの暗号化での送信を希望されるお客さまは
こちら
よりお問い合わせください)
お問い合わせを行う前に
「個人情報の取り扱いについて」を必ずお読みください。
「個人情報の取り扱いについて」に同意いただいた場合は「上記にご同意の上 確認画面へ進む」のボタンをクリックしてください。
個人情報の取り扱いについて
皆さまが送付された個人情報はアットホーム(株)のサーバを経由し、お問い合わせ先の不動産会社にメールまたはFAXにて転送されるためアットホーム(株)にも保管されます。アットホーム(株)で保管された個人情報の取り扱いについては、【こちら】をご覧ください。
また、本画面でご記入いただいた個人情報は、お問い合わせ先の不動産会社でも保管します。 お問い合わせ先の不動産会社が保管する個人情報の取り扱いについては、不動産会社に直接お問い合わせください。
住友不動産ステップ(株) 上大岡営業センター国土交通大臣免許(13)第2077号 |
|---|
- 交通:
- 京急本線/上大岡駅 徒歩2分
- 神奈川県横浜市港南区上大岡西1丁目13-8 大樹生命上大岡ビル8階
- TEL:
- 0120-464-041
- FAX:
- 045-846-4039
- 所属団体:
- (一社)不動産流通経営協会会員(公社)首都圏不動産公正取引協議会加盟
取引態様:専任媒介 |
- 提携サイト等より掲載されている物件情報につきましては、不動産会社詳細情報にリンクされていないものがあります。
- 物件に関するお問合せは、物件詳細ページの「情報提供会社」に表示されている不動産会社へ直接お願いいたします。
- 間取図は、現況を優先させていただきます。
- 映像は物件の一部を撮影したものです。物件の契約にあたっての最終判断はご自身の判断に基づいて行ってください。
- 仲介手数料について

アットホームは物件情報の適正化に努めております。
内容に誤りがある場合にはこちらへご連絡ください。