神奈川県横浜市青葉区新石川3丁目(たまプラーザ駅)の一戸建て:物件詳細
交通 所在地 |
駅徒歩 |
価格 |
間取り 建物面積 |
土地面積 私道負担面積 |
物件種目 築年月 |
東急田園都市線/たまプラーザ
神奈川県横浜市青葉区新石川3丁目
|
12分
|
10,850万円
|
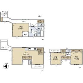
3LDK
108.31m²
|
97.36m²
-
|
新築一戸建て
2025年12月
|
間取図
|
外観
現地外観① (2025年7月28日撮影) 写真奥側の土地になります
|
その他の画像
|
交通 | 東急田園都市線 たまプラーザ駅 徒歩12分 |
所在地 |
神奈川県横浜市青葉区新石川3丁目
|
物件種目 |
新築一戸建て |
価格 |
10,850万円 |
借地期間・地代(月額) |
- |
権利金 |
- |
敷金または保証金 |
- / - |
維持費等 |
- |
その他一時金 |
- |
間取り |
3LDK |
建物面積 |
108.31m² |
土地権利 |
所有権 |
建物構造 |
木造 |
土地面積 |
97.36m²(公簿) |
私道負担面積 |
- |
築年月 |
2025年12月
|
都市計画 |
市街化区域 |
建物名 |
横浜市青葉区新石川3丁目新築戸建 |
建築確認番号 |
AI建築確認00-2500129 |
用途地域 |
1種住居 |
駐車場 |
有 |
建ぺい率 |
60% |
容積率 |
200% |
階建 |
3階建 |
接道状況 |
北西 6.5m 公道 接面2.0m
|
地目 |
宅地 |
地勢 |
- |
国土法届出 |
- |
セットバック |
- |
アピールポイント |
◆アクセス
田園都市線「たまプラーザ」駅まで徒歩12分
◆建物面積:108.31㎡
◆土地面積:97.36㎡
◆構造:木造3階建
◆間取:3LDK
◆現況:未完成(令和7年12月上旬完成予定)
◆カースペース有り ※駐車可能な車は車種によります
~おすすめポイント~
・全居室南東向きにつき陽当たり通風共に良好
・独立した脱衣所があるため便利にお使いいただけます
・バルコニー3カ所有り
・全居室6帖以上 |
リフォーム履歴 |
- |
リノベーション履歴 |
- |
瑕疵保証 |
- |
瑕疵保険 |
- |
評価・証明書 |
- |
備考 |
-
|
エネルギー消費性能 |
- |
断熱性能 |
- |
目安光熱費 |
- |
バス・トイレ |
浴室暖房、浴室乾燥機、トイレ2ヶ所 |
キッチン |
独立型キッチン |
設備・サービス |
上水道、下水道、都市ガス、電気、照明器具、複層ガラス |
その他 |
- |
現況 |
建築中 |
引渡可能時期 |
2025年12月上旬予定 |
物件番号 |
1015170187 |
|
|
情報公開日 |
2025年7月29日 |
次回更新予定日 |
2025年10月27日 |
ケータイ用バーコード |
- スマートフォンでこの物件を見る
- スマートフォンからもこの物件をご覧になれます。
|
※「-」と表示されている項目については、情報提供会社にご確認ください。
ここから簡単にお問い合わせをすることができます。
(SSLでの暗号化での送信を希望されるお客さまは
こちら
よりお問い合わせください)
お問い合わせを行う前に
「個人情報の取り扱いについて」を必ずお読みください。
「個人情報の取り扱いについて」に同意いただいた場合は「上記にご同意の上 確認画面へ進む」のボタンをクリックしてください。
個人情報の取り扱いについて
皆さまが送付された個人情報はアットホーム(株)のサーバを経由し、お問い合わせ先の不動産会社にメールまたはFAXにて転送されるためアットホーム(株)にも保管されます。アットホーム(株)で保管された個人情報の取り扱いについては、【こちら】をご覧ください。
また、本画面でご記入いただいた個人情報は、お問い合わせ先の不動産会社でも保管します。 お問い合わせ先の不動産会社が保管する個人情報の取り扱いについては、不動産会社に直接お問い合わせください。
住友不動産ステップ(株) たまプラーザ営業センター国土交通大臣免許(13)第2077号 |
---|
- 交通:
- 東急田園都市線/たまプラーザ駅 徒歩4分
- 神奈川県横浜市青葉区新石川2丁目4-12 フォーラムたまプラーザ1階
- TEL:
- 0120-588-157
- FAX:
- 045-915-7557
- 所属団体:
- (一社)不動産流通経営協会会員(公社)首都圏不動産公正取引協議会加盟
取引態様:専任媒介 |
- 提携サイト等より掲載されている物件情報につきましては、不動産会社詳細情報にリンクされていないものがあります。
- 物件に関するお問合せは、物件詳細ページの「情報提供会社」に表示されている不動産会社へ直接お願いいたします。
- 間取図は、現況を優先させていただきます。
- 映像は物件の一部を撮影したものです。物件の契約にあたっての最終判断はご自身の判断に基づいて行ってください。
- 仲介手数料について

アットホームは物件情報の適正化に努めております。
内容に誤りがある場合にはこちらへご連絡ください。