京都府京都市右京区嵯峨新宮町(嵯峨嵐山駅)の一戸建て:物件詳細
交通 所在地 |
駅徒歩 |
価格 |
間取り 建物面積 |
土地面積 私道負担面積 |
物件種目 築年月 |
|
JR山陰本線/嵯峨嵐山
京都府京都市右京区嵯峨新宮町
|
8分
|
2,680万円
|
3SLDK
90.72m²
|
74.03m²
-
|
中古一戸建て
1996年4月(築29年7ヶ月)
|
|
オール電化
|
|
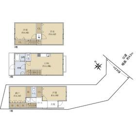
間取図
|
外観
この度は【京都市右京区嵯峨新宮町戸建】の物件紹介ページをご覧いただき誠に有難うございます。
|
<
その他の画像
>
|
| 交通 | JR山陰本線 嵯峨嵐山駅 徒歩8分 |
|---|
| その他の交通 | 京福電鉄嵐山本線 鹿王院駅 徒歩7分 |
| 所在地 |
京都府京都市右京区嵯峨新宮町
|
| 物件種目 |
中古一戸建て |
| 価格 |
2,680万円 |
借地期間・地代(月額) |
- |
| 権利金 |
- |
敷金または保証金 |
- / - |
| 維持費等 |
- |
その他一時金 |
- |
| 間取り |
3SLDK |
建物面積 |
90.72m² |
| 土地権利 |
所有権 |
建物構造 |
木造 |
| 土地面積 |
74.03m²(公簿) |
私道負担面積 |
- |
| 築年月 |
1996年4月(築29年7ヶ月)
|
都市計画 |
市街化区域 |
| 建物名 |
京都市右京区嵯峨新宮町戸建 |
建築確認番号 |
- |
| 用途地域 |
2種住居 |
駐車場 |
有 |
| 建ぺい率 |
60% |
容積率 |
168% |
| 階建 |
3階建 |
接道状況 |
東 4.2m 公道 接面4.2m
|
| 地目 |
宅地 |
地勢 |
平坦 |
| 国土法届出 |
- |
セットバック |
- |
| アピールポイント |
◇2025年8月改装済み
・キッチン新調
・浴室新調
・洗面化粧台新調
・トイレ新調
・フロアタイル新調(1階洋室・1階納戸・LDK・3階西側洋室・1階廊下)
・クロス貼替(全居室・納戸・廊下・トイレ・洗面)
・CF貼替(トイレ・洗面)
・エコキュート新調
・ハウスクリーニング
◇即入居可
◇土地面積:74.03㎡
◇平坦地
◇閑静な住宅地
◇1996年4月建築
◇3LDK+納戸の間取り
◇建物面積:90.72㎡
◇オール電化
|
| リフォーム履歴 |
- |
| リノベーション履歴 |
- |
| 瑕疵保証 |
- |
| 瑕疵保険 |
- |
| 評価・証明書 |
- |
| 備考 |
法令等制限:15m第2種高度地区 準防火地域
駐車場は車種によります。
|
| エネルギー消費性能 |
- |
| 断熱性能 |
- |
| 目安光熱費 |
- |
| バス・トイレ |
トイレ2ヶ所 |
| キッチン |
システムキッチン |
| 設備・サービス |
上水道、下水道 |
| その他 |
- |
| 現況 |
空家 |
引渡可能時期 |
即時 |
| 物件番号 |
1015272387 |
|
|
| 情報公開日 |
2025年8月4日 |
次回更新予定日 |
2025年10月26日 |
| ケータイ用バーコード |
- スマートフォンでこの物件を見る
- スマートフォンからもこの物件をご覧になれます。
|
※「-」と表示されている項目については、情報提供会社にご確認ください。
ここから簡単にお問い合わせをすることができます。
(SSLでの暗号化での送信を希望されるお客さまは
こちら
よりお問い合わせください)
お問い合わせを行う前に
「個人情報の取り扱いについて」を必ずお読みください。
「個人情報の取り扱いについて」に同意いただいた場合は「上記にご同意の上 確認画面へ進む」のボタンをクリックしてください。
個人情報の取り扱いについて
皆さまが送付された個人情報はアットホーム(株)のサーバを経由し、お問い合わせ先の不動産会社にメールまたはFAXにて転送されるためアットホーム(株)にも保管されます。アットホーム(株)で保管された個人情報の取り扱いについては、【こちら】をご覧ください。
また、本画面でご記入いただいた個人情報は、お問い合わせ先の不動産会社でも保管します。 お問い合わせ先の不動産会社が保管する個人情報の取り扱いについては、不動産会社に直接お問い合わせください。
住友不動産ステップ(株) 桂営業センター国土交通大臣免許(13)第2077号 |
|---|
- 交通:
- 阪急京都線/桂駅 徒歩1分
- 京都府京都市西京区桂南巽町80 桂都証券ビル1階
- TEL:
- 0120-720-073
- FAX:
- 075-391-8584
- 所属団体:
- (一社)不動産流通経営協会会員(公社)首都圏不動産公正取引協議会加盟
取引態様:専任媒介 |
- 提携サイト等より掲載されている物件情報につきましては、不動産会社詳細情報にリンクされていないものがあります。
- 物件に関するお問合せは、物件詳細ページの「情報提供会社」に表示されている不動産会社へ直接お願いいたします。
- 間取図は、現況を優先させていただきます。
- 映像は物件の一部を撮影したものです。物件の契約にあたっての最終判断はご自身の判断に基づいて行ってください。
- 仲介手数料について

アットホームは物件情報の適正化に努めております。
内容に誤りがある場合にはこちらへご連絡ください。