宮城県富谷市成田4丁目(泉中央駅)の一戸建て:物件詳細
交通 所在地 |
駅徒歩 |
価格 |
間取り 建物面積 |
土地面積 私道負担面積 |
物件種目 築年月 |
|
仙台市南北線/泉中央 【バス】20分 センター東 停歩5分
宮城県富谷市成田4丁目
|
-
|
3,590万円
|
5LDK
154.75m²
|
302.01m²
なし
|
中古一戸建て
2004年3月(築22年1ヶ月)
|
|
間取図
|
外観
外観写真
|
<
その他の画像
>
|
| 交通 | 仙台市南北線 泉中央駅 【バス】 20分 センター東 停歩5分 |
| 所在地 |
宮城県富谷市成田4丁目
|
| 物件種目 |
中古一戸建て |
| 価格 |
3,590万円 |
借地期間・地代(月額) |
- |
| 権利金 |
- |
敷金または保証金 |
- / - |
| 維持費等 |
- |
その他一時金 |
- |
| 間取り |
5LDK |
建物面積 |
154.75m² |
| 土地権利 |
所有権 |
建物構造 |
木造 |
| 土地面積 |
302.01m²(公簿) |
私道負担面積 |
なし |
| 築年月 |
2004年3月(築22年1ヶ月)
|
都市計画 |
市街化区域 |
| 建物名 |
富谷市成田4丁目戸建 |
建築確認番号 |
- |
| 用途地域 |
1種低層 |
駐車場 |
有 |
| 建ぺい率 |
40% |
容積率 |
60% |
| 階建 |
2階建 |
接道状況 |
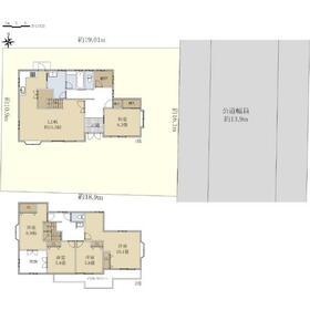
東 13.9m 公道 接面16.1m
|
| 地目 |
宅地 |
地勢 |
平坦 |
| 国土法届出 |
- |
セットバック |
- |
| アピールポイント |
~リフォーム済み~
●2025年09月/キッチン・ユニットバス・洗面化粧台・トイレ交換
●2025年09月/防犯カメラ設置・ハウスクリーニング
◆LDK約23.3帖
ダイニングの上部は吹き抜けとなっており
開放感のある空間となっております。
またLDは南側の庭に面しており
外光が取り込める間取り設計です。
◇2階は4部屋の洋室があり、
各部屋に収納付きのため
室内を広々と活用できる設計です。
|
| リフォーム履歴 |
- |
| リノベーション履歴 |
- |
| 瑕疵保証 |
- |
| 瑕疵保険 |
- |
| 評価・証明書 |
- |
| 備考 |
駐車場2台分(車種による)
|
| エネルギー消費性能 |
- |
| 断熱性能 |
- |
| 目安光熱費 |
- |
| バス・トイレ |
- |
| キッチン |
- |
| 設備・サービス |
上水道、下水道 |
| その他 |
- |
| 現況 |
空家 |
引渡可能時期 |
相談 |
| 物件番号 |
1015323687 |
|
|
| 情報公開日 |
2025年8月5日 |
次回更新予定日 |
2026年3月24日 |
| ケータイ用バーコード |
- スマートフォンでこの物件を見る
- スマートフォンからもこの物件をご覧になれます。
|
※「-」と表示されている項目については、情報提供会社にご確認ください。
| 周辺施設 |
セブンイレブン富谷市成田4丁目店 |
| 距離 |
280m |
写真を見る |
| 周辺施設 |
ヤマザワ富谷市成田店 |
| 距離 |
940m |
写真を見る |
ここから簡単にお問い合わせをすることができます。
(SSLでの暗号化での送信を希望されるお客さまは
こちら
よりお問い合わせください)
お問い合わせを行う前に
「個人情報の取り扱いについて」を必ずお読みください。
「個人情報の取り扱いについて」に同意いただいた場合は「上記にご同意の上 確認画面へ進む」のボタンをクリックしてください。
個人情報の取り扱いについて
皆さまが送付された個人情報はアットホーム(株)のサーバを経由し、お問い合わせ先の不動産会社にメールまたはFAXにて転送されるためアットホーム(株)にも保管されます。アットホーム(株)で保管された個人情報の取り扱いについては、【こちら】をご覧ください。
また、本画面でご記入いただいた個人情報は、お問い合わせ先の不動産会社でも保管します。 お問い合わせ先の不動産会社が保管する個人情報の取り扱いについては、不動産会社に直接お問い合わせください。
国土交通大臣免許(13)第2077号 |
|---|
- 交通:
- 仙台市南北線/北四番丁駅 徒歩7分
- 宮城県仙台市青葉区上杉2丁目10-40 住友不動産ハウジングプラザ 1階
- TEL:
- 0120-933-499
- FAX:
- 022-266-8355
- 所属団体:
- (一社)不動産流通経営協会会員(公社)首都圏不動産公正取引協議会加盟
取引態様:一般媒介  - 00783155
|
- スマートフォンで
この不動産会社を見る

|
- 提携サイト等より掲載されている物件情報につきましては、不動産会社詳細情報にリンクされていないものがあります。
- 物件に関するお問合せは、物件詳細ページの「情報提供会社」に表示されている不動産会社へ直接お願いいたします。
- 間取図は、現況を優先させていただきます。
- 映像は物件の一部を撮影したものです。物件の契約にあたっての最終判断はご自身の判断に基づいて行ってください。
- 仲介手数料について

アットホームは物件情報の適正化に努めております。
内容に誤りがある場合にはこちらへご連絡ください。