神奈川県相模原市南区大野台6丁目(古淵駅)の一戸建て:物件詳細
交通 所在地 |
駅徒歩 |
価格 |
間取り 建物面積 |
土地面積 私道負担面積 |
物件種目 築年月 |
|
JR横浜線/古淵
神奈川県相模原市南区大野台6丁目
|
11分
|
4,480万円
|
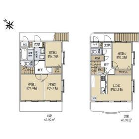
4LDK
91.84m²
|
144.30m²
有 67.00m²
|
中古一戸建て
1999年2月(築27年1ヶ月)
|
|
駐車場2台分、バス1坪以上、全室2面採光、24時間換気システム、閑静な住宅街、整形地
|
|
間取図
|
外観
現地
|
<
その他の画像
>
|
| 交通 | JR横浜線 古淵駅 徒歩11分 |
|---|
| その他の交通 | 小田急小田原線 相模大野駅 【バス】 12分 古淵駅入口 停歩8分 |
| 所在地 |
神奈川県相模原市南区大野台6丁目
|
| 物件種目 |
中古一戸建て |
| 価格 |
4,480万円 |
借地期間・地代(月額) |
- |
| 権利金 |
- |
敷金または保証金 |
- / - |
| 維持費等 |
- |
その他一時金 |
- |
| 間取り |
4LDK |
建物面積 |
91.84m² |
| 土地権利 |
所有権 |
建物構造 |
RC |
| 土地面積 |
144.30m²(公簿) |
私道負担面積 |
有 67.00m² |
| 築年月 |
1999年2月(築27年1ヶ月)
|
都市計画 |
市街化区域 |
| 建物名 |
相模原市南区大野台6丁目戸建 |
建築確認番号 |
- |
| 用途地域 |
1種低層 |
駐車場 |
有 |
| 建ぺい率 |
60% |
容積率 |
100% |
| 階建 |
2階建 |
接道状況 |
北東 4.0m 私道 接面9.2m
・ 南東 4.0m 私道 接面11.3m
・ 二方道路
|
| 地目 |
宅地 |
地勢 |
平坦 |
| 国土法届出 |
- |
セットバック |
- |
| アピールポイント |
○鉄筋コンクリート造
〇2020年3月 共同住宅から居宅にリノベーション
・キッチン新規交換(Panasonic製)
・浴室新規交換(Panasonic製)
・洗面台新規交換(MLine Panasonic製)
・トイレ新規交換(アラウーノv Panasonic製)
・床全室張替
・クロス全室張替
・建具 全室新規交換(Panasonic製)
〇2021年6月 外壁・屋根 改修
〇2022年1月 太陽光発電機設置・IHクッキングヒーター設置・エコキュート設置
〇駐車スペース2台可能(車種による)
〇ウッドデッキ
〇角地
〇陽当り良好
|
| リフォーム履歴 |
- |
| リノベーション履歴 |
- |
| 瑕疵保証 |
- |
| 瑕疵保険 |
- |
| 評価・証明書 |
- |
| 備考 |
建築確認完了検査済証あり、修繕・点検の記録あり、新築時・増改築時の設計図書あり
バス便2025年9月8日調べ
|
| エネルギー消費性能 |
- |
| 断熱性能 |
- |
| 目安光熱費 |
- |
| バス・トイレ |
浴室乾燥機、追焚機能、シャワー付洗面化粧台、温水洗浄便座、トイレ2ヶ所 |
| キッチン |
カウンターキッチン、システムキッチン、IHクッキングヒーター |
| 設備・サービス |
太陽光発電システム、モニター付インターホン、全居室フローリング、上水道、下水道、プロパンガス、ウッドデッキ、複層ガラス |
| その他 |
- |
| 現況 |
所有者居住中 |
引渡可能時期 |
相談 |
| 物件番号 |
1015561987 |
|
|
| 情報公開日 |
2025年9月7日 |
次回更新予定日 |
2026年2月6日 |
| ケータイ用バーコード |
- スマートフォンでこの物件を見る
- スマートフォンからもこの物件をご覧になれます。
|
※「-」と表示されている項目については、情報提供会社にご確認ください。
| 周辺施設 |
JR横浜線「古淵」駅 |
| 距離 |
880m |
写真を見る |
| 周辺施設 |
ファミリーマート相模原大野台六丁目店 |
| 距離 |
350m |
写真を見る |
| 周辺施設 |
イトーヨーカドー古淵店 |
| 距離 |
530m |
写真を見る |
| 周辺施設 |
イオン相模原ショッピングセンター |
| 距離 |
590m |
写真を見る |
ここから簡単にお問い合わせをすることができます。
(SSLでの暗号化での送信を希望されるお客さまは
こちら
よりお問い合わせください)
お問い合わせを行う前に
「個人情報の取り扱いについて」を必ずお読みください。
「個人情報の取り扱いについて」に同意いただいた場合は「上記にご同意の上 確認画面へ進む」のボタンをクリックしてください。
個人情報の取り扱いについて
皆さまが送付された個人情報はアットホーム(株)のサーバを経由し、お問い合わせ先の不動産会社にメールまたはFAXにて転送されるためアットホーム(株)にも保管されます。アットホーム(株)で保管された個人情報の取り扱いについては、【こちら】をご覧ください。
また、本画面でご記入いただいた個人情報は、お問い合わせ先の不動産会社でも保管します。 お問い合わせ先の不動産会社が保管する個人情報の取り扱いについては、不動産会社に直接お問い合わせください。
国土交通大臣免許(13)第2077号 |
|---|
- 交通:
- 小田急小田原線/相模大野駅 徒歩4分
- 神奈川県相模原市南区相模大野3丁目1-2 ライオンズ相模大野ステーションエアリスタ1階
- TEL:
- 0120-774-899
- FAX:
- 042-766-1572
- 所属団体:
- (一社)不動産流通経営協会会員(公社)首都圏不動産公正取引協議会加盟
取引態様:一般媒介  - 00783302
|
- スマートフォンで
この不動産会社を見る

|
- 提携サイト等より掲載されている物件情報につきましては、不動産会社詳細情報にリンクされていないものがあります。
- 物件に関するお問合せは、物件詳細ページの「情報提供会社」に表示されている不動産会社へ直接お願いいたします。
- 間取図は、現況を優先させていただきます。
- 映像は物件の一部を撮影したものです。物件の契約にあたっての最終判断はご自身の判断に基づいて行ってください。
- 仲介手数料について

アットホームは物件情報の適正化に努めております。
内容に誤りがある場合にはこちらへご連絡ください。