大阪府岸和田市岡山町(久米田駅)の一戸建て:物件詳細
交通 所在地 |
駅徒歩 |
価格 |
間取り 建物面積 |
土地面積 私道負担面積 |
物件種目 築年月 |
|
JR阪和線/久米田 【バス】5分 岡山 停歩17分
大阪府岸和田市岡山町
|
-
|
1,280万円
|
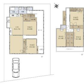
5LDK
165.29m²
|
254.37m²
なし
|
中古一戸建て
1982年12月(築43年1ヶ月)
|
|
閑静な住宅街
|
|
間取図
|
外観
【外観】
|
<
その他の画像
>
|
| 交通 | JR阪和線 久米田駅 【バス】 5分 岡山 停歩17分 |
| 所在地 |
大阪府岸和田市岡山町
|
| 物件種目 |
中古一戸建て |
| 価格 |
1,280万円 |
借地期間・地代(月額) |
- |
| 権利金 |
- |
敷金または保証金 |
- / - |
| 維持費等 |
- |
その他一時金 |
- |
| 間取り |
5LDK |
建物面積 |
165.29m² |
| 土地権利 |
所有権 |
建物構造 |
木造 |
| 土地面積 |
254.37m²(公簿) |
私道負担面積 |
なし |
| 築年月 |
1982年12月(築43年1ヶ月)
|
都市計画 |
市街化区域 |
| 建物名 |
岸和田市岡山町 戸建 |
建築確認番号 |
- |
| 用途地域 |
1種低層 |
駐車場 |
有 |
| 建ぺい率 |
40% |
容積率 |
80% |
| 階建 |
2階建 |
接道状況 |
南西 6.2m 公道 接面12.1m
|
| 地目 |
宅地 |
地勢 |
雛段 |
| 国土法届出 |
- |
セットバック |
- |
| アピールポイント |
---物件の詳細-------
・土地面積:254.37㎡(約76.94坪)
・建物面積:165.29㎡(約50.00坪)
・5LDK
・豊富な収納スペースですっきりとした暮らしを!
・ほっこりできる和室でくつろぐひととき
・閑静な住宅地です
【周辺環境】
・ローソン岸和田岡山町店 徒歩17分(約1300m)
・ラ・ムー岸和田三田店 徒歩24分(約1900m)
・ウエルシア岸和田尾生店 徒歩18分(約1400m)
・岸和田市立山直北小学校 徒歩19分(約1500m)
・岸和田市立山直中学校 徒歩19分(約1500m)
|
| リフォーム履歴 |
- |
| リノベーション履歴 |
- |
| 瑕疵保証 |
- |
| 瑕疵保険 |
- |
| 評価・証明書 |
- |
| 備考 |
法令等制限:景観法・建築基準法第22条区域・久米田風致地区、高度地区第一
【駐車場】車種による
宅地造成工事規制区域・高さ制限10m・外壁後退1.5m・道路後退1.8m
|
| エネルギー消費性能 |
- |
| 断熱性能 |
- |
| 目安光熱費 |
- |
| バス・トイレ |
シャワー付洗面化粧台、トイレ2ヶ所 |
| キッチン |
- |
| 設備・サービス |
全居室収納、クローゼット、床下収納、上水道、下水道、都市ガス |
| その他 |
- |
| 現況 |
空家 |
引渡可能時期 |
相談 |
| 物件番号 |
1015562387 |
|
|
| 情報公開日 |
2025年9月7日 |
次回更新予定日 |
2025年12月6日 |
| ケータイ用バーコード |
- スマートフォンでこの物件を見る
- スマートフォンからもこの物件をご覧になれます。
|
※「-」と表示されている項目については、情報提供会社にご確認ください。
ここから簡単にお問い合わせをすることができます。
(SSLでの暗号化での送信を希望されるお客さまは
こちら
よりお問い合わせください)
お問い合わせを行う前に
「個人情報の取り扱いについて」を必ずお読みください。
「個人情報の取り扱いについて」に同意いただいた場合は「上記にご同意の上 確認画面へ進む」のボタンをクリックしてください。
個人情報の取り扱いについて
皆さまが送付された個人情報はアットホーム(株)のサーバを経由し、お問い合わせ先の不動産会社にメールまたはFAXにて転送されるためアットホーム(株)にも保管されます。アットホーム(株)で保管された個人情報の取り扱いについては、【こちら】をご覧ください。
また、本画面でご記入いただいた個人情報は、お問い合わせ先の不動産会社でも保管します。 お問い合わせ先の不動産会社が保管する個人情報の取り扱いについては、不動産会社に直接お問い合わせください。
住友不動産ステップ(株) 和泉中央営業センター国土交通大臣免許(13)第2077号 |
|---|
- 交通:
- 南海泉北線/和泉中央駅 徒歩2分
- 大阪府和泉市いぶき野5丁目1-2 pivo和泉中央1階
- TEL:
- 0120-006-351
- FAX:
- 0725-50-5571
- 所属団体:
- (一社)不動産流通経営協会会員(公社)首都圏不動産公正取引協議会加盟
取引態様:専属専任媒介 |
- 提携サイト等より掲載されている物件情報につきましては、不動産会社詳細情報にリンクされていないものがあります。
- 物件に関するお問合せは、物件詳細ページの「情報提供会社」に表示されている不動産会社へ直接お願いいたします。
- 間取図は、現況を優先させていただきます。
- 映像は物件の一部を撮影したものです。物件の契約にあたっての最終判断はご自身の判断に基づいて行ってください。
- 仲介手数料について

アットホームは物件情報の適正化に努めております。
内容に誤りがある場合にはこちらへご連絡ください。