宮城県名取市増田7丁目(名取駅)の一戸建て:物件詳細
交通 所在地 |
駅徒歩 |
価格 |
間取り 建物面積 |
土地面積 私道負担面積 |
物件種目 築年月 |
|
JR東北本線/名取
宮城県名取市増田7丁目
|
11分
|
4,180万円
|
5LDK
155.99m²
|
259.05m²
有 4.48m²
|
中古一戸建て
1999年4月(築26年11ヶ月)
|
|
オール電化
|
|
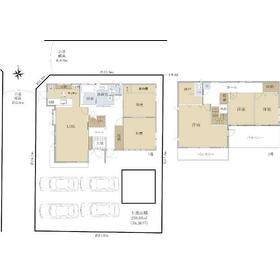
間取図
|
外観
外観
|
<
その他の画像
>
|
| 交通 | JR東北本線 名取駅 徒歩11分 |
| 所在地 |
宮城県名取市増田7丁目
|
| 物件種目 |
中古一戸建て |
| 価格 |
4,180万円 |
借地期間・地代(月額) |
- |
| 権利金 |
- |
敷金または保証金 |
- / - |
| 維持費等 |
- |
その他一時金 |
- |
| 間取り |
5LDK |
建物面積 |
155.99m² |
| 土地権利 |
所有権 |
建物構造 |
軽量鉄骨造 |
| 土地面積 |
259.05m²(公簿) |
私道負担面積 |
有 4.48m² |
| 築年月 |
1999年4月(築26年11ヶ月)
|
都市計画 |
市街化区域 |
| 建物名 |
名取市増田7丁目戸建 |
建築確認番号 |
- |
| 用途地域 |
1種住居 |
駐車場 |
有 |
| 建ぺい率 |
60% |
容積率 |
160% |
| 階建 |
2階建 |
接道状況 |
北 4.0m 公道 接面15.3m
・ 西 3.0m 公道 接面16.2m
・ 二方道路
|
| 地目 |
宅地 |
地勢 |
- |
| 国土法届出 |
- |
セットバック |
- |
| アピールポイント |
・東北本線「名取」駅まで徒歩11分
・施工:東北セキスイハイム
・1999年4月築
・北西角地
・敷地面積:259.05㎡(約78.36坪)
・建物面積:155.99㎡(約47.18坪)
・間取り:5LDK
・オール電化
・駐車スペース:4台分有り(車種によります)
・敷地内に「離れ」有り
種類:居宅
構造:木造亜鉛メッキ鋼板葺平家建
床面積:13.24㎡
1997年築
|
| リフォーム履歴 |
- |
| リノベーション履歴 |
- |
| 瑕疵保証 |
- |
| 瑕疵保険 |
- |
| 評価・証明書 |
- |
| 備考 |
角地。ただし、建ぺい率は緩和されません。/LDK、洋室、和室の帖数は不明です。/カースペース4台分(車種によります)
|
| エネルギー消費性能 |
- |
| 断熱性能 |
- |
| 目安光熱費 |
- |
| バス・トイレ |
トイレ2ヶ所 |
| キッチン |
- |
| 設備・サービス |
床下収納、上水道、下水道 |
| その他 |
- |
| 現況 |
所有者居住中 |
引渡可能時期 |
相談 |
| 物件番号 |
1015603687 |
|
|
| 情報公開日 |
2025年9月9日 |
次回更新予定日 |
2026年2月8日 |
| ケータイ用バーコード |
- スマートフォンでこの物件を見る
- スマートフォンからもこの物件をご覧になれます。
|
※「-」と表示されている項目については、情報提供会社にご確認ください。
| 周辺施設 |
名取増田郵便局 |
| 距離 |
170m |
写真を見る |
| 周辺施設 |
イオンエクスプレス名取駅前店 |
| 距離 |
790m |
写真を見る |
| 周辺施設 |
ローソン名取増田七丁目店 |
| 距離 |
340m |
写真を見る |
| 周辺施設 |
名取市立増田小学校 |
| 距離 |
850m |
写真を見る |
ここから簡単にお問い合わせをすることができます。
(SSLでの暗号化での送信を希望されるお客さまは
こちら
よりお問い合わせください)
お問い合わせを行う前に
「個人情報の取り扱いについて」を必ずお読みください。
「個人情報の取り扱いについて」に同意いただいた場合は「上記にご同意の上 確認画面へ進む」のボタンをクリックしてください。
個人情報の取り扱いについて
皆さまが送付された個人情報はアットホーム(株)のサーバを経由し、お問い合わせ先の不動産会社にメールまたはFAXにて転送されるためアットホーム(株)にも保管されます。アットホーム(株)で保管された個人情報の取り扱いについては、【こちら】をご覧ください。
また、本画面でご記入いただいた個人情報は、お問い合わせ先の不動産会社でも保管します。 お問い合わせ先の不動産会社が保管する個人情報の取り扱いについては、不動産会社に直接お問い合わせください。
国土交通大臣免許(13)第2077号 |
|---|
- 交通:
- 仙台市南北線/長町南駅 徒歩3分
- 宮城県仙台市太白区長町南1丁目1-27 副都心会館1F
- TEL:
- 0120-323-352
- FAX:
- 022-308-2440
- 所属団体:
- (一社)不動産流通経営協会会員(公社)首都圏不動産公正取引協議会加盟
取引態様:専任媒介  - 00783157
|
- スマートフォンで
この不動産会社を見る

|
- 提携サイト等より掲載されている物件情報につきましては、不動産会社詳細情報にリンクされていないものがあります。
- 物件に関するお問合せは、物件詳細ページの「情報提供会社」に表示されている不動産会社へ直接お願いいたします。
- 間取図は、現況を優先させていただきます。
- 映像は物件の一部を撮影したものです。物件の契約にあたっての最終判断はご自身の判断に基づいて行ってください。
- 仲介手数料について

アットホームは物件情報の適正化に努めております。
内容に誤りがある場合にはこちらへご連絡ください。