宮城県仙台市太白区金剛沢3丁目(長町南駅)の一戸建て:物件詳細
交通 所在地 |
駅徒歩 |
価格 |
間取り 建物面積 |
土地面積 私道負担面積 |
物件種目 築年月 |
|
仙台市南北線/長町南 【バス】10分 宮城交通 西の平二丁目 停歩5分
宮城県仙台市太白区金剛沢3丁目
|
-
|
3,780万円
|
4LDK
104.34m²
|
399.36m²
有 88.90m²
|
新築一戸建て
2026年1月
|
|
オール電化
|
|
間取図
|
外観
現地写真
|
<
その他の画像
>
|
| 交通 | 仙台市南北線 長町南駅 【バス】 10分 宮城交通 西の平二丁目 停歩5分 |
| 所在地 |
宮城県仙台市太白区金剛沢3丁目
|
| 物件種目 |
新築一戸建て |
| 価格 |
3,780万円 |
借地期間・地代(月額) |
- |
| 権利金 |
- |
敷金または保証金 |
- / - |
| 維持費等 |
- |
その他一時金 |
- |
| 間取り |
4LDK |
建物面積 |
104.34m² |
| 土地権利 |
所有権 |
建物構造 |
木造 |
| 土地面積 |
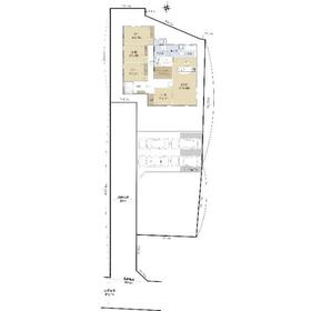
399.36m²(公簿) |
私道負担面積 |
有 88.90m² |
| 築年月 |
2026年1月
|
都市計画 |
市街化区域 |
| 建物名 |
太白区金剛沢3丁目新築戸建 |
建築確認番号 |
第R07SHC116046号 |
| 用途地域 |
1種低層 |
駐車場 |
有 |
| 建ぺい率 |
50% |
容積率 |
80% |
| 階建 |
平屋建 |
接道状況 |
-
|
| 地目 |
宅地 |
地勢 |
- |
| 国土法届出 |
- |
セットバック |
- |
| アピールポイント |
〇2026年1月完成
〇11.96kWの太陽光発電付オール電化新築戸建
〇4LDKの平家住宅
〇土地面積:399.36㎡(120.80坪)
〇建物面積:104.34㎡(31.56坪)
〇敷地120.80坪でゆとりのあるお庭スペース有
〇カースペース4台分有(車種によります。)
〇設計住宅性能評価取得済
【周辺環境】
・みやぎ生協八木山店 徒歩11分(約830m)
・セブンイレブン仙台八木山南店 徒歩13分(約1030m)
・マツモトキヨシ八木山南店 徒歩14分(約1060m)
・仙台西ノ平郵便局 徒歩8分(約580m)
・仙台市立八木山南小学校 徒歩20分(約1550m) |
| リフォーム履歴 |
- |
| リノベーション履歴 |
- |
| 瑕疵保証 |
- |
| 瑕疵保険 |
- |
| 評価・証明書 |
- |
| 備考 |
カースペース4台分(車種によります)/バス便調査日:2025年9月5日/※売主は、通路所有者より建物建築の承諾書を取得により確認申請し、検査済証を取得済みです。
|
| エネルギー消費性能 |
- |
| 断熱性能 |
- |
| 目安光熱費 |
- |
| バス・トイレ |
- |
| キッチン |
3口以上コンロ |
| 設備・サービス |
全居室収納、床下収納、上水道、下水道 |
| その他 |
- |
| 現況 |
完成済 |
引渡可能時期 |
2026年2月上旬予定 |
| 物件番号 |
1015650587 |
|
|
| 情報公開日 |
2025年9月14日 |
次回更新予定日 |
2026年2月14日 |
| ケータイ用バーコード |
- スマートフォンでこの物件を見る
- スマートフォンからもこの物件をご覧になれます。
|
※「-」と表示されている項目については、情報提供会社にご確認ください。
| 周辺施設 |
みやぎ生協八木山店 |
| 距離 |
830m |
写真を見る |
| 周辺施設 |
セブンイレブン仙台八木山南店 |
| 距離 |
1030m |
写真を見る |
| 周辺施設 |
マツモトキヨシ八木山南店 |
| 距離 |
1060m |
写真を見る |
| 周辺施設 |
仙台市立八木山南小学校 |
| 距離 |
1550m |
ここから簡単にお問い合わせをすることができます。
(SSLでの暗号化での送信を希望されるお客さまは
こちら
よりお問い合わせください)
お問い合わせを行う前に
「個人情報の取り扱いについて」を必ずお読みください。
「個人情報の取り扱いについて」に同意いただいた場合は「上記にご同意の上 確認画面へ進む」のボタンをクリックしてください。
個人情報の取り扱いについて
皆さまが送付された個人情報はアットホーム(株)のサーバを経由し、お問い合わせ先の不動産会社にメールまたはFAXにて転送されるためアットホーム(株)にも保管されます。アットホーム(株)で保管された個人情報の取り扱いについては、【こちら】をご覧ください。
また、本画面でご記入いただいた個人情報は、お問い合わせ先の不動産会社でも保管します。 お問い合わせ先の不動産会社が保管する個人情報の取り扱いについては、不動産会社に直接お問い合わせください。
国土交通大臣免許(13)第2077号 |
|---|
- 交通:
- 仙台市南北線/長町南駅 徒歩3分
- 宮城県仙台市太白区長町南1丁目1-27 副都心会館1F
- TEL:
- 0120-323-352
- FAX:
- 022-308-2440
- 所属団体:
- (一社)不動産流通経営協会会員(公社)首都圏不動産公正取引協議会加盟
取引態様:専任媒介  - 00783157
|
- スマートフォンで
この不動産会社を見る

|
- 提携サイト等より掲載されている物件情報につきましては、不動産会社詳細情報にリンクされていないものがあります。
- 物件に関するお問合せは、物件詳細ページの「情報提供会社」に表示されている不動産会社へ直接お願いいたします。
- 間取図は、現況を優先させていただきます。
- 映像は物件の一部を撮影したものです。物件の契約にあたっての最終判断はご自身の判断に基づいて行ってください。
- 仲介手数料について

アットホームは物件情報の適正化に努めております。
内容に誤りがある場合にはこちらへご連絡ください。