東京都渋谷区上原1丁目(代々木上原駅)の一戸建て:物件詳細
交通 所在地 |
駅徒歩 |
価格 |
間取り 建物面積 |
土地面積 私道負担面積 |
物件種目 築年月 |
|
小田急小田原線/代々木上原
東京都渋谷区上原1丁目
|
4分
|
17,980万円
|
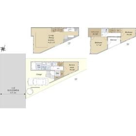
2SLDK
94.44m²
|
65.50m²
なし
|
中古一戸建て
2008年8月(築17年7ヶ月)
|
|
バス1坪以上、閑静な住宅街
|
|
≪オープンハウス/モデルハウス≫【開催期間】2026年2月7日~ 【時間】11:00~16:00 事前に必ず予約してください
|
|
間取図
|
外観
現地
|
<
その他の画像
>
|
| 交通 | 小田急小田原線 代々木上原駅 徒歩4分 |
|---|
| その他の交通 | 小田急小田原線 代々木八幡駅 徒歩7分 東京メトロ千代田線 代々木公園駅 徒歩8分 |
| 所在地 |
東京都渋谷区上原1丁目
|
| 物件種目 |
中古一戸建て |
| 価格 |
17,980万円 |
借地期間・地代(月額) |
- |
| 権利金 |
- |
敷金または保証金 |
- / - |
| 維持費等 |
- |
その他一時金 |
- |
| 間取り |
2SLDK |
建物面積 |
94.44m² |
| 土地権利 |
所有権 |
建物構造 |
木造 |
| 土地面積 |
65.50m²(公簿) |
私道負担面積 |
なし |
| 築年月 |
2008年8月(築17年7ヶ月)
|
都市計画 |
市街化区域 |
| 建物名 |
渋谷区上原1丁目戸建 |
建築確認番号 |
- |
| 用途地域 |
2種中高 |
駐車場 |
有 |
| 建ぺい率 |
60% |
容積率 |
208% |
| 階建 |
3階建 |
接道状況 |
南西 5.2m 公道 接面6.5m
|
| 地目 |
宅地 |
地勢 |
平坦 |
| 国土法届出 |
- |
セットバック |
- |
| アピールポイント |
~Access~
●小田急線 東京メトロ千代田線「代々木上原」駅 徒歩4分
●小田急線「代々木八幡」駅 徒歩7分
●東京メトロ千代田線 「代々木公園」駅 徒歩8分
~Point~
◇2008年8月築
◇土地面積:65.50㎡(19.81坪)
◇建物面積:94.44㎡(28.56坪)
◇間取り:2SLDK
◇カースペース1台(※車種による)
◇リビング・3階の洋室の採光部分が広く、光が降り注ぐ物件となっております。
◇駅徒歩4分ながら、閑静な住宅街です。
◇室内綺麗にお使いです。
|
| リフォーム履歴 |
- |
| リノベーション履歴 |
- |
| 瑕疵保証 |
- |
| 瑕疵保険 |
- |
| 評価・証明書 |
- |
| 備考 |
新築時・増改築時の設計図書あり
|
| エネルギー消費性能 |
- |
| 断熱性能 |
- |
| 目安光熱費 |
- |
| バス・トイレ |
浴室乾燥機、追焚機能、シャワー付洗面化粧台、温水洗浄便座、トイレ2ヶ所 |
| キッチン |
システムキッチン、食器洗浄乾燥機、浄水器、3口以上コンロ |
| 設備・サービス |
全居室収納、ウォークインクローゼット、床暖房、モニター付インターホン、全居室フローリング、上水道、下水道、都市ガス |
| その他 |
- |
| 現況 |
所有者居住中 |
引渡可能時期 |
相談 |
| 物件番号 |
1015707287 |
|
|
| 情報公開日 |
2025年9月20日 |
次回更新予定日 |
2026年2月17日 |
| ケータイ用バーコード |
- スマートフォンでこの物件を見る
- スマートフォンからもこの物件をご覧になれます。
|
※「-」と表示されている項目については、情報提供会社にご確認ください。
| 周辺施設 |
小田急線・東京メトロ千代田線 代々木上原駅 |
| 距離 |
290m |
写真を見る |
| 周辺施設 |
小田急線 代々木八幡駅 |
| 距離 |
540m |
写真を見る |
| 周辺施設 |
東京メトロ千代田線 代々木公園駅 |
| 距離 |
590m |
写真を見る |
| 周辺施設 |
セブンイレブン 代々木上原駅前店 |
| 距離 |
400m |
写真を見る |
| 周辺施設 |
ローソン 渋谷上原二丁目店 |
| 距離 |
320m |
写真を見る |
| 周辺施設 |
マルエツ 代々木上原店 |
| 距離 |
160m |
写真を見る |
| 周辺施設 |
まいばすけっと 代々木八幡駅西店 |
| 距離 |
420m |
写真を見る |
| 周辺施設 |
ココカラファイン 代々木上原南店 |
| 距離 |
160m |
写真を見る |
ここから簡単にお問い合わせをすることができます。
(SSLでの暗号化での送信を希望されるお客さまは
こちら
よりお問い合わせください)
お問い合わせを行う前に
「個人情報の取り扱いについて」を必ずお読みください。
「個人情報の取り扱いについて」に同意いただいた場合は「上記にご同意の上 確認画面へ進む」のボタンをクリックしてください。
個人情報の取り扱いについて
皆さまが送付された個人情報はアットホーム(株)のサーバを経由し、お問い合わせ先の不動産会社にメールまたはFAXにて転送されるためアットホーム(株)にも保管されます。アットホーム(株)で保管された個人情報の取り扱いについては、【こちら】をご覧ください。
また、本画面でご記入いただいた個人情報は、お問い合わせ先の不動産会社でも保管します。 お問い合わせ先の不動産会社が保管する個人情報の取り扱いについては、不動産会社に直接お問い合わせください。
国土交通大臣免許(13)第2077号 |
|---|
- 交通:
- 小田急小田原線/下北沢駅 徒歩3分
- 東京都世田谷区北沢2丁目14-16 北沢プラザ1階・3階
- TEL:
- 0120-983-029
- FAX:
- 03-3419-7178
- 所属団体:
- (一社)不動産流通経営協会会員(公社)首都圏不動産公正取引協議会加盟
取引態様:専任媒介  - 00783223
|
- スマートフォンで
この不動産会社を見る

|
- 提携サイト等より掲載されている物件情報につきましては、不動産会社詳細情報にリンクされていないものがあります。
- 物件に関するお問合せは、物件詳細ページの「情報提供会社」に表示されている不動産会社へ直接お願いいたします。
- 間取図は、現況を優先させていただきます。
- 映像は物件の一部を撮影したものです。物件の契約にあたっての最終判断はご自身の判断に基づいて行ってください。
- 仲介手数料について

アットホームは物件情報の適正化に努めております。
内容に誤りがある場合にはこちらへご連絡ください。