東京都練馬区田柄4丁目(地下鉄赤塚駅)の一戸建て:物件詳細
交通 所在地 |
駅徒歩 |
価格 |
間取り 建物面積 |
土地面積 私道負担面積 |
物件種目 築年月 |
|
東京メトロ副都心線/地下鉄赤塚
東京都練馬区田柄4丁目
|
14分
|
9,480万円
|
5LDK
114.27m²
|
114.53m²
なし
|
中古一戸建て
1994年4月(築31年11ヶ月)
|
|
デザイナーズ、3面採光、24時間換気システム、閑静な住宅街、整形地
|
|
間取図
|
外観
外観(北東側より撮影)①
|
<
その他の画像
>
|
| 交通 | 東京メトロ副都心線 地下鉄赤塚駅 徒歩14分 |
|---|
| その他の交通 | 東京メトロ有楽町線 地下鉄赤塚駅 徒歩14分 東武東上線 下赤塚駅 徒歩14分 |
| 所在地 |
東京都練馬区田柄4丁目
|
| 物件種目 |
中古一戸建て |
| 価格 |
9,480万円 |
借地期間・地代(月額) |
- |
| 権利金 |
- |
敷金または保証金 |
- / - |
| 維持費等 |
- |
その他一時金 |
- |
| 間取り |
5LDK |
建物面積 |
114.27m² |
| 土地権利 |
所有権 |
建物構造 |
木造 |
| 土地面積 |
114.53m²(公簿) |
私道負担面積 |
なし |
| 築年月 |
1994年4月(築31年11ヶ月)
|
都市計画 |
市街化区域 |
| 建物名 |
練馬区田柄4丁目戸建 |
建築確認番号 |
- |
| 用途地域 |
1種低層 |
駐車場 |
有 |
| 建ぺい率 |
60% |
容積率 |
100% |
| 階建 |
2階建 |
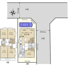
接道状況 |
北 6.0m 公道 接面4.8m
・ 東 5.0m 公道 接面14.6m
・ 二方道路
|
| 地目 |
宅地 |
地勢 |
平坦 |
| 国土法届出 |
- |
セットバック |
- |
| アピールポイント |
◆3路線2駅利用可
東武東上線『下赤塚』駅 徒歩14分
東京メトロ有楽町・副都心線『地下鉄赤塚』駅 徒歩14分
◆敷地面積:114.53㎡(34.64坪)
◆延床面積:114.27㎡(34.56坪)
◆北東角地
◆各居室6帖以上
◆カースペース1台有(※車種による)
|
| リフォーム履歴 |
- |
| リノベーション履歴 |
- |
| 瑕疵保証 |
- |
| 瑕疵保険 |
- |
| 評価・証明書 |
- |
| 備考 |
法令等制限:第1種高度地区
建ぺい率は角地緩和の制限数値になります。/カースペース有:車種による
|
| エネルギー消費性能 |
- |
| 断熱性能 |
- |
| 目安光熱費 |
- |
| バス・トイレ |
追焚機能、シャワー付洗面化粧台、温水洗浄便座、トイレ2ヶ所 |
| キッチン |
システムキッチン、独立型キッチン、3口以上コンロ、グリル |
| 設備・サービス |
床暖房、ダブルロックドア、出窓、上水道、下水道、都市ガス、火災警報器(報知機) |
| その他 |
- |
| 現況 |
所有者居住中 |
引渡可能時期 |
相談 |
| 物件番号 |
1016106187 |
|
|
| 情報公開日 |
2025年10月19日 |
次回更新予定日 |
2026年2月17日 |
| ケータイ用バーコード |
- スマートフォンでこの物件を見る
- スマートフォンからもこの物件をご覧になれます。
|
※「-」と表示されている項目については、情報提供会社にご確認ください。
| 周辺施設 |
地下鉄赤塚駅 |
| 距離 |
1070m |
写真を見る |
| 周辺施設 |
練馬区立田柄小学校 |
| 距離 |
650m |
写真を見る |
| 周辺施設 |
練馬区立田柄中学校 |
| 距離 |
430m |
写真を見る |
| 周辺施設 |
まいばすけっと田柄1丁目店 |
| 距離 |
570m |
写真を見る |
| 周辺施設 |
セブンイレブン練馬田柄通り店 |
| 距離 |
530m |
写真を見る |
| 周辺施設 |
練馬区立田柄中央児童公園 |
| 距離 |
130m |
写真を見る |
| 周辺施設 |
杉田クリニック |
| 距離 |
550m |
写真を見る |
ここから簡単にお問い合わせをすることができます。
(SSLでの暗号化での送信を希望されるお客さまは
こちら
よりお問い合わせください)
お問い合わせを行う前に
「個人情報の取り扱いについて」を必ずお読みください。
「個人情報の取り扱いについて」に同意いただいた場合は「上記にご同意の上 確認画面へ進む」のボタンをクリックしてください。
個人情報の取り扱いについて
皆さまが送付された個人情報はアットホーム(株)のサーバを経由し、お問い合わせ先の不動産会社にメールまたはFAXにて転送されるためアットホーム(株)にも保管されます。アットホーム(株)で保管された個人情報の取り扱いについては、【こちら】をご覧ください。
また、本画面でご記入いただいた個人情報は、お問い合わせ先の不動産会社でも保管します。 お問い合わせ先の不動産会社が保管する個人情報の取り扱いについては、不動産会社に直接お問い合わせください。
国土交通大臣免許(13)第2077号 |
|---|
- 交通:
- 東武東上線/成増駅 徒歩1分
- 東京都板橋区成増2丁目14-5 EH第2ビル地下1階
- TEL:
- 0120-531-808
- FAX:
- 03-5997-1564
- 所属団体:
- (一社)不動産流通経営協会会員(公社)首都圏不動産公正取引協議会加盟
取引態様:専任媒介  - 00783187
|
- スマートフォンで
この不動産会社を見る

|
- 提携サイト等より掲載されている物件情報につきましては、不動産会社詳細情報にリンクされていないものがあります。
- 物件に関するお問合せは、物件詳細ページの「情報提供会社」に表示されている不動産会社へ直接お願いいたします。
- 間取図は、現況を優先させていただきます。
- 映像は物件の一部を撮影したものです。物件の契約にあたっての最終判断はご自身の判断に基づいて行ってください。
- 仲介手数料について

アットホームは物件情報の適正化に努めております。
内容に誤りがある場合にはこちらへご連絡ください。