滋賀県大津市大江6丁目(瀬田駅)の一戸建て:物件詳細
交通 所在地 |
駅徒歩 |
価格 |
間取り 建物面積 |
土地面積 私道負担面積 |
物件種目 築年月 |
|
JR東海道本線/瀬田
滋賀県大津市大江6丁目
|
18分
|
5,970万円
|
3LDK
108.36m²
|
140.68m²
なし
|
中古一戸建て
2022年4月(築3年11ヶ月)
|
|
デザイナーズ、駐車場2台分、24時間換気システム、長期優良住宅(耐震、省エネ性等高い)
|
|
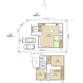
間取図
|
外観
【現地外観写真】 積水ハウス施工の築3年邸宅。角地ならではの開放感が魅力です。
|
<
その他の画像
>
|
| 交通 | JR東海道本線 瀬田駅 徒歩18分 |
| 所在地 |
滋賀県大津市大江6丁目
|
| 物件種目 |
中古一戸建て |
| 価格 |
5,970万円 |
借地期間・地代(月額) |
- |
| 権利金 |
- |
敷金または保証金 |
- / - |
| 維持費等 |
- |
その他一時金 |
- |
| 間取り |
3LDK |
建物面積 |
108.36m² |
| 土地権利 |
所有権 |
建物構造 |
軽量鉄骨造 |
| 土地面積 |
140.68m²(公簿) |
私道負担面積 |
なし |
| 築年月 |
2022年4月(築3年11ヶ月)
|
都市計画 |
市街化区域 |
| 建物名 |
大津市大江6丁目戸建 |
建築確認番号 |
- |
| 用途地域 |
1種中高 |
駐車場 |
有 |
| 建ぺい率 |
60% |
容積率 |
200% |
| 階建 |
2階建 |
接道状況 |
北 8.4m 公道 接面11.9m
・ 西 6.0m 公道 接面6.7m
・ 二方道路
|
| 地目 |
宅地 |
地勢 |
平坦 |
| 国土法届出 |
- |
セットバック |
- |
| アピールポイント |
~おすすめポイント~
・2022年4月建築×積水ハウス施工の邸宅。
・建設住宅性能評価書(新築時)取得済み、長期優良住宅認定住宅。
・高断熱仕様(断熱等性能等級4)、光熱費を抑えて、家計にうれしい。
・耐震等級3、家族を守る安心。
・北西角地ならではの開放感と独立性、街並みに映えるポジション。
・敷地約42.5坪、建物約32.7坪のゆとりと機能を両立したファミリーサイズ。
・駐車2台可(車種による)、玄関までの動線も短く、雨の日も荷物もストレスフリー。
・間取りは家族の距離がちょうどいい機能的な3LDKプラン。
・広々LDKは家族が自然と集まる心地よさ。 |
| リフォーム履歴 |
- |
| リノベーション履歴 |
- |
| 瑕疵保証 |
- |
| 瑕疵保険 |
- |
| 評価・証明書 |
■長期優良住宅認定通知書 長期優良住宅認定通知書あり |
| 備考 |
駐車可能な車両は車種による。
|
| エネルギー消費性能 |
- |
| 断熱性能 |
- |
| 目安光熱費 |
- |
| バス・トイレ |
トイレ2ヶ所 |
| キッチン |
アイランドキッチン、IHクッキングヒーター |
| 設備・サービス |
床暖房、電動シャッター、上水道、下水道、都市ガス、ダウンライト |
| その他 |
- |
| 現況 |
所有者居住中 |
引渡可能時期 |
相談 |
| 物件番号 |
1016146487 |
|
|
| 情報公開日 |
2026年1月17日 |
次回更新予定日 |
2026年2月14日 |
| ケータイ用バーコード |
- スマートフォンでこの物件を見る
- スマートフォンからもこの物件をご覧になれます。
|
※「-」と表示されている項目については、情報提供会社にご確認ください。
ここから簡単にお問い合わせをすることができます。
(SSLでの暗号化での送信を希望されるお客さまは
こちら
よりお問い合わせください)
お問い合わせを行う前に
「個人情報の取り扱いについて」を必ずお読みください。
「個人情報の取り扱いについて」に同意いただいた場合は「上記にご同意の上 確認画面へ進む」のボタンをクリックしてください。
個人情報の取り扱いについて
皆さまが送付された個人情報はアットホーム(株)のサーバを経由し、お問い合わせ先の不動産会社にメールまたはFAXにて転送されるためアットホーム(株)にも保管されます。アットホーム(株)で保管された個人情報の取り扱いについては、【こちら】をご覧ください。
また、本画面でご記入いただいた個人情報は、お問い合わせ先の不動産会社でも保管します。 お問い合わせ先の不動産会社が保管する個人情報の取り扱いについては、不動産会社に直接お問い合わせください。
国土交通大臣免許(13)第2077号 |
|---|
- 交通:
- JR東海道本線/大津駅 徒歩1分
- 滋賀県大津市末広町1-1 日本生命大津ビル 1F
- TEL:
- 0120-566-022
- FAX:
- 077-521-6995
- 所属団体:
- (一社)不動産流通経営協会会員(公社)首都圏不動産公正取引協議会加盟
取引態様:専属専任媒介  - 00783351
|
- スマートフォンで
この不動産会社を見る

|
- 提携サイト等より掲載されている物件情報につきましては、不動産会社詳細情報にリンクされていないものがあります。
- 物件に関するお問合せは、物件詳細ページの「情報提供会社」に表示されている不動産会社へ直接お願いいたします。
- 間取図は、現況を優先させていただきます。
- 映像は物件の一部を撮影したものです。物件の契約にあたっての最終判断はご自身の判断に基づいて行ってください。
- 仲介手数料について

アットホームは物件情報の適正化に努めております。
内容に誤りがある場合にはこちらへご連絡ください。