大阪府守口市佐太中町6丁目(大日駅)の一戸建て:物件詳細
交通 所在地 |
駅徒歩 |
価格 |
間取り 建物面積 |
土地面積 私道負担面積 |
物件種目 築年月 |
|
地下鉄谷町線/大日
大阪府守口市佐太中町6丁目
|
22分
|
3,380万円
|
4LDK
123.45m²
|
153.46m²
有 2.00m²
|
中古一戸建て
1993年7月(築32年9ヶ月)
|
|
閑静な住宅街、整形地
|
|
≪オープンハウス/モデルハウス≫【開催期間】2026年3月28日~ 【時間】11:00~17:00 事前に必ず予約してください
|
|
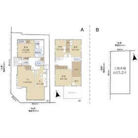
間取図
|
外観
【A】外観
|
<
その他の画像
>
|
| 交通 | 地下鉄谷町線 大日駅 徒歩22分 |
|---|
| その他の交通 | 大阪モノレール本線 大日駅 徒歩23分 |
| 所在地 |
大阪府守口市佐太中町6丁目
|
| 物件種目 |
中古一戸建て |
| 価格 |
3,380万円 |
借地期間・地代(月額) |
- |
| 権利金 |
- |
敷金または保証金 |
- / - |
| 維持費等 |
- |
その他一時金 |
- |
| 間取り |
4LDK |
建物面積 |
123.45m² |
| 土地権利 |
所有権 |
建物構造 |
軽量鉄骨造 |
| 土地面積 |
153.46m² |
私道負担面積 |
有 2.00m² |
| 築年月 |
1993年7月(築32年9ヶ月)
|
都市計画 |
市街化区域 |
| 建物名 |
守口市佐太中町6丁目戸建(2筆同時売買) |
建築確認番号 |
- |
| 用途地域 |
2種中高 |
駐車場 |
有 |
| 建ぺい率 |
60% |
容積率 |
168% |
| 階建 |
2階建 |
接道状況 |
南 4.0m 私道 位置指定有 接面5.8m
・ 西 4.2m 公道 接面12.7m
|
| 地目 |
宅地 |
地勢 |
平坦 |
| 国土法届出 |
- |
セットバック |
- |
| アピールポイント |
【A】
・パナホーム施工の家
・軽量鉄骨造2階建
・LDK約20帖以上
・間取り4LDK
・南西角地
・土地面積109.52㎡(約33.1坪)
【B】
・現況駐車場(車種による)
・カーポート有り
・土地面積43.94㎡(約13.2坪)
・接道状況/北側私道幅員約4.0m、西側通路幅員約3.9m
・建ぺい率/60%、容積率160%
・用途地域/第二種中高層住居専用地域
・地目/宅地
|
| リフォーム履歴 |
- |
| リノベーション履歴 |
- |
| 瑕疵保証 |
- |
| 瑕疵保険 |
- |
| 評価・証明書 |
- |
| 備考 |
駐車場(車種による)/A、Bはそれぞれ隣接していないため一体としての利用はできませんが、一括での売却となります。
|
| エネルギー消費性能 |
- |
| 断熱性能 |
- |
| 目安光熱費 |
- |
| バス・トイレ |
浴室乾燥機、追焚機能、温水洗浄便座、トイレ2ヶ所 |
| キッチン |
システムキッチン、独立型キッチン |
| 設備・サービス |
全居室収納、ウォークインクローゼット、クローゼット、床下収納、モニター付インターホン、上水道、下水道、都市ガス、電気 |
| その他 |
- |
| 現況 |
空家 |
引渡可能時期 |
相談 |
| 物件番号 |
1016292487 |
|
|
| 情報公開日 |
2025年11月2日 |
次回更新予定日 |
2026年4月6日 |
| ケータイ用バーコード |
- スマートフォンでこの物件を見る
- スマートフォンからもこの物件をご覧になれます。
|
※「-」と表示されている項目については、情報提供会社にご確認ください。
ここから簡単にお問い合わせをすることができます。
(SSLでの暗号化での送信を希望されるお客さまは
こちら
よりお問い合わせください)
お問い合わせを行う前に
「個人情報の取り扱いについて」を必ずお読みください。
「個人情報の取り扱いについて」に同意いただいた場合は「上記にご同意の上 確認画面へ進む」のボタンをクリックしてください。
個人情報の取り扱いについて
皆さまが送付された個人情報はアットホーム(株)のサーバを経由し、お問い合わせ先の不動産会社にメールまたはFAXにて転送されるためアットホーム(株)にも保管されます。アットホーム(株)で保管された個人情報の取り扱いについては、【こちら】をご覧ください。
また、本画面でご記入いただいた個人情報は、お問い合わせ先の不動産会社でも保管します。 お問い合わせ先の不動産会社が保管する個人情報の取り扱いについては、不動産会社に直接お問い合わせください。
国土交通大臣免許(13)第2077号 |
|---|
- 交通:
- 京阪本線/守口市駅 徒歩3分
- 大阪府守口市河原町7-12 OTYビル1階・2階
- TEL:
- 0120-255-076
- FAX:
- 06-6997-1299
- 所属団体:
- (一社)不動産流通経営協会会員(公社)首都圏不動産公正取引協議会加盟
取引態様:専属専任媒介  - 00783367
|
- スマートフォンで
この不動産会社を見る

|
- 提携サイト等より掲載されている物件情報につきましては、不動産会社詳細情報にリンクされていないものがあります。
- 物件に関するお問合せは、物件詳細ページの「情報提供会社」に表示されている不動産会社へ直接お願いいたします。
- 間取図は、現況を優先させていただきます。
- 映像は物件の一部を撮影したものです。物件の契約にあたっての最終判断はご自身の判断に基づいて行ってください。
- 仲介手数料について

アットホームは物件情報の適正化に努めております。
内容に誤りがある場合にはこちらへご連絡ください。