神奈川県鎌倉市今泉台5丁目(大船駅)の一戸建て:物件詳細
交通 所在地 |
駅徒歩 |
価格 |
間取り 建物面積 |
土地面積 私道負担面積 |
物件種目 築年月 |
|
JR東海道本線/大船 【バス】19分 半僧坊下 停歩3分
神奈川県鎌倉市今泉台5丁目
|
-
|
2,280万円
|
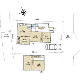
5DK
121.43m²
|
231.56m²
なし
|
中古一戸建て
1979年1月(築47年)
|
|
閑静な住宅街、整形地、前面棟無
|
|
間取図
|
外観
外観
|
<
その他の画像
>
|
| 交通 | JR東海道本線 大船駅 【バス】 19分 半僧坊下 停歩3分 |
| 所在地 |
神奈川県鎌倉市今泉台5丁目
|
| 物件種目 |
中古一戸建て |
| 価格 |
2,280万円 |
借地期間・地代(月額) |
- |
| 権利金 |
- |
敷金または保証金 |
- / - |
| 維持費等 |
- |
その他一時金 |
- |
| 間取り |
5DK |
建物面積 |
121.43m² |
| 土地権利 |
所有権 |
建物構造 |
木造 |
| 土地面積 |
231.56m²(公簿) |
私道負担面積 |
なし |
| 築年月 |
1979年1月(築47年)
|
都市計画 |
市街化区域 |
| 建物名 |
鎌倉市今泉台5丁目戸建 |
建築確認番号 |
- |
| 用途地域 |
1種低層 |
駐車場 |
有 |
| 建ぺい率 |
40% |
容積率 |
80% |
| 階建 |
2階建 |
接道状況 |
南東 4.0m 公道 接面11.4m
・ 北西 3.9m 公道 接面12.6m
|
| 地目 |
宅地 |
地勢 |
高台 |
| 国土法届出 |
- |
セットバック |
- |
| アピールポイント |
◆閑静な住宅街、緑が多く落ち着きがあります。
◆2階洋室から富士山を望めます。(天候による)
◆土地面積:231.56㎡(70.04坪)広々とした敷地です。
ガーデニングもお楽しみいただけます。
◆両面道路のため、開放感があります。
◆カースペース1台あり(車種による)
前面に建物がないため駐車がスムーズに行えます。
|
| リフォーム履歴 |
- |
| リノベーション履歴 |
- |
| 瑕疵保証 |
- |
| 瑕疵保険 |
- |
| 評価・証明書 |
- |
| 備考 |
法令等制限:第2種風致地区、宅地造成工事規制区域、住民協定(今泉台町内会
|
| エネルギー消費性能 |
- |
| 断熱性能 |
- |
| 目安光熱費 |
- |
| バス・トイレ |
トイレ2ヶ所 |
| キッチン |
- |
| 設備・サービス |
上水道、下水道、都市ガス |
| その他 |
- |
| 現況 |
空家 |
引渡可能時期 |
相談 |
| 物件番号 |
1016337987 |
|
|
| 情報公開日 |
2025年11月8日 |
次回更新予定日 |
2025年12月23日 |
| ケータイ用バーコード |
- スマートフォンでこの物件を見る
- スマートフォンからもこの物件をご覧になれます。
|
※「-」と表示されている項目については、情報提供会社にご確認ください。
ここから簡単にお問い合わせをすることができます。
(SSLでの暗号化での送信を希望されるお客さまは
こちら
よりお問い合わせください)
お問い合わせを行う前に
「個人情報の取り扱いについて」を必ずお読みください。
「個人情報の取り扱いについて」に同意いただいた場合は「上記にご同意の上 確認画面へ進む」のボタンをクリックしてください。
個人情報の取り扱いについて
皆さまが送付された個人情報はアットホーム(株)のサーバを経由し、お問い合わせ先の不動産会社にメールまたはFAXにて転送されるためアットホーム(株)にも保管されます。アットホーム(株)で保管された個人情報の取り扱いについては、【こちら】をご覧ください。
また、本画面でご記入いただいた個人情報は、お問い合わせ先の不動産会社でも保管します。 お問い合わせ先の不動産会社が保管する個人情報の取り扱いについては、不動産会社に直接お問い合わせください。
住友不動産ステップ(株) 鎌倉営業センター国土交通大臣免許(13)第2077号 |
|---|
- 交通:
- JR横須賀線/鎌倉駅 徒歩1分
- 神奈川県鎌倉市御成町11-1 長塚ビル1・3階
- TEL:
- 0120-378-785
- FAX:
- 0467-25-5616
- 所属団体:
- (一社)不動産流通経営協会会員(公社)首都圏不動産公正取引協議会加盟
取引態様:専任媒介 |
- 提携サイト等より掲載されている物件情報につきましては、不動産会社詳細情報にリンクされていないものがあります。
- 物件に関するお問合せは、物件詳細ページの「情報提供会社」に表示されている不動産会社へ直接お願いいたします。
- 間取図は、現況を優先させていただきます。
- 映像は物件の一部を撮影したものです。物件の契約にあたっての最終判断はご自身の判断に基づいて行ってください。
- 仲介手数料について

アットホームは物件情報の適正化に努めております。
内容に誤りがある場合にはこちらへご連絡ください。