東京都品川区荏原2丁目(戸越銀座駅)の一戸建て:物件詳細
交通 所在地 |
駅徒歩 |
価格 |
間取り 建物面積 |
土地面積 私道負担面積 |
物件種目 築年月 |
|
東急池上線/戸越銀座
東京都品川区荏原2丁目
|
8分
|
13,380万円
|
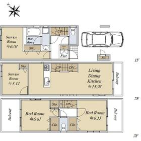
2SLDK
104.71m²
|
58.21m²
-
|
新築一戸建て
2025年11月
|
|
閑静な住宅街
|
|
間取図
|
その他
現地外観
|
<
その他の画像
>
|
| 交通 | 東急池上線 戸越銀座駅 徒歩8分 |
|---|
| その他の交通 | 東急目黒線 武蔵小山駅 徒歩10分 |
| 所在地 |
東京都品川区荏原2丁目
|
| 物件種目 |
新築一戸建て |
| 価格 |
13,380万円 |
借地期間・地代(月額) |
- |
| 権利金 |
- |
敷金または保証金 |
- / - |
| 維持費等 |
- |
その他一時金 |
- |
| 間取り |
2SLDK |
建物面積 |
104.71m² |
| 土地権利 |
所有権 |
建物構造 |
木造 |
| 土地面積 |
58.21m²(公簿) |
私道負担面積 |
- |
| 築年月 |
2025年11月
|
都市計画 |
市街化区域 |
| 建物名 |
品川区荏原2丁目新築戸建1号棟 |
建築確認番号 |
第KBI-SGM25-10-2455号 |
| 用途地域 |
1種住居 |
駐車場 |
有 |
| 建ぺい率 |
60% |
容積率 |
160% |
| 階建 |
3階建 |
接道状況 |
南東 4.0m 私道 位置指定有 接面4.2m
|
| 地目 |
宅地 |
地勢 |
平坦 |
| 国土法届出 |
- |
セットバック |
- |
| アピールポイント |
【物件概要】
◆土地面積:約58.21㎡(公簿)
◆延べ床面積:104.71㎡(建物面積に車庫11.94㎡含む)
◆間取り:2SLDK
◆地目:宅地
◆都市経学:市街化区域
◆用途地域:第1種住居地域
◆建ぺい率:60%
◆容積率:160%
◆高度地区:第3種高度地区
◆防火指定:準防火地域
◆築年月:2025年11月
◆土地権利:所有権
◆引渡:相談
【アクセス】
◆東急池上線「戸越銀座」駅まで徒歩8分
◆東急目黒線「武蔵小山」駅東口まで徒歩10分
|
| リフォーム履歴 |
- |
| リノベーション履歴 |
- |
| 瑕疵保証 |
- |
| 瑕疵保険 |
- |
| 評価・証明書 |
- |
| 備考 |
法令等制限:第3種高度地区
建物面積に車庫11.94㎡含む
駐車場1台分(車種による)。
|
| エネルギー消費性能 |
- |
| 断熱性能 |
- |
| 目安光熱費 |
- |
| バス・トイレ |
浴室乾燥機、温水洗浄便座、トイレ2ヶ所 |
| キッチン |
システムキッチン、食器洗浄乾燥機、3口以上コンロ |
| 設備・サービス |
全居室収納、床暖房、クローゼット、電動シャッター、シャッター雨戸、全居室フローリング、上水道、下水道、都市ガス、電気、人感センサー付照明、ダウンライト |
| その他 |
- |
| 現況 |
完成済 |
引渡可能時期 |
相談 |
| 物件番号 |
1016978387 |
|
|
| 情報公開日 |
2026年1月10日 |
次回更新予定日 |
2026年5月7日 |
| ケータイ用バーコード |
- スマートフォンでこの物件を見る
- スマートフォンからもこの物件をご覧になれます。
|
※「-」と表示されている項目については、情報提供会社にご確認ください。
ここから簡単にお問い合わせをすることができます。
(SSLでの暗号化での送信を希望されるお客さまは
こちら
よりお問い合わせください)
お問い合わせを行う前に
「個人情報の取り扱いについて」を必ずお読みください。
「個人情報の取り扱いについて」に同意いただいた場合は「上記にご同意の上 確認画面へ進む」のボタンをクリックしてください。
個人情報の取り扱いについて
皆さまが送付された個人情報はアットホーム(株)のサーバを経由し、お問い合わせ先の不動産会社にメールまたはFAXにて転送されるためアットホーム(株)にも保管されます。アットホーム(株)で保管された個人情報の取り扱いについては、【こちら】をご覧ください。
また、本画面でご記入いただいた個人情報は、お問い合わせ先の不動産会社でも保管します。 お問い合わせ先の不動産会社が保管する個人情報の取り扱いについては、不動産会社に直接お問い合わせください。
国土交通大臣免許(13)第2077号 |
|---|
- 交通:
- 東急田園都市線/二子玉川駅 徒歩4分
- 東京都世田谷区玉川3丁目15-1 曽根ビル 1F
- TEL:
- 0120-400-399
- FAX:
- 03-3707-1483
- 所属団体:
- (一社)不動産流通経営協会会員(公社)首都圏不動産公正取引協議会加盟
取引態様:媒介  - 00783216
|
- スマートフォンで
この不動産会社を見る

|
- 提携サイト等より掲載されている物件情報につきましては、不動産会社詳細情報にリンクされていないものがあります。
- 物件に関するお問合せは、物件詳細ページの「情報提供会社」に表示されている不動産会社へ直接お願いいたします。
- 間取図は、現況を優先させていただきます。
- 映像は物件の一部を撮影したものです。物件の契約にあたっての最終判断はご自身の判断に基づいて行ってください。
- 仲介手数料について

アットホームは物件情報の適正化に努めております。
内容に誤りがある場合にはこちらへご連絡ください。