大阪府大阪狭山市西山台3丁目(金剛駅)の一戸建て:物件詳細
交通 所在地 |
駅徒歩 |
価格 |
間取り 建物面積 |
土地面積 私道負担面積 |
物件種目 築年月 |
|
南海高野線/金剛 【バス】24分 西山台南 停歩3分
大阪府大阪狭山市西山台3丁目
|
-
|
3,198万円
|
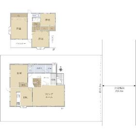
4LDK
140.12m²
|
219.81m²
-
|
中古一戸建て
2001年1月(築25年2ヶ月)
|
|
閑静な住宅街、整形地
|
|
間取図
|
外観
外観
|
<
その他の画像
>
|
| 交通 | 南海高野線 金剛駅 【バス】 24分 西山台南 停歩3分 |
|---|
| その他の交通 | 南海泉北線 泉ケ丘駅 【バス】 14分 西山台南 停歩3分 |
| 所在地 |
大阪府大阪狭山市西山台3丁目
|
| 物件種目 |
中古一戸建て |
| 価格 |
3,198万円 |
借地期間・地代(月額) |
- |
| 権利金 |
- |
敷金または保証金 |
- / - |
| 維持費等 |
- |
その他一時金 |
- |
| 間取り |
4LDK |
建物面積 |
140.12m² |
| 土地権利 |
所有権 |
建物構造 |
木造 |
| 土地面積 |
219.81m²(公簿) |
私道負担面積 |
- |
| 築年月 |
2001年1月(築25年2ヶ月)
|
都市計画 |
市街化区域 |
| 建物名 |
大阪狭山市西山台3丁目戸建 |
建築確認番号 |
- |
| 用途地域 |
1種低層 |
駐車場 |
有 |
| 建ぺい率 |
50% |
容積率 |
100% |
| 階建 |
2階建 |
接道状況 |
東 6.0m 公道 接面11.9m
|
| 地目 |
宅地 |
地勢 |
平坦 |
| 国土法届出 |
- |
セットバック |
- |
| アピールポイント |
---おすすめポイント-------
〇土地面積:66.49坪
〇延床面積:42.38坪
〇4LDK
〇2面バルコニー
〇リフォーム物件!
~リフォーム内容~令和8年1月施工済み
・全居室壁天井クロス張替
・2階トイレ洗面室CF張替
・1階LDKフロアタイル上張り
・1階和室畳表替襖障子張替
・システムキッチン(IHコンロ)新調
・ユニットバス+浴室乾燥機新調
・1階シャンプードレッサー新調
・洗濯パン新調
・2階温水洗浄暖房便座新調
・給湯器新調
・1階モニター付きインターホン新調
・ハウスクリーニング
・2階ベランダ×2防水塗装
・白蟻防蟻処理
|
| リフォーム履歴 |
- |
| リノベーション履歴 |
- |
| 瑕疵保証 |
- |
| 瑕疵保険 |
- |
| 評価・証明書 |
- |
| 備考 |
法令等制限:法22条区域内、外壁後退1m、高さの限度10m
駐車場は車種による
バス調査日:2026年1月10日/北側斜線制限有
|
| エネルギー消費性能 |
- |
| 断熱性能 |
- |
| 目安光熱費 |
- |
| バス・トイレ |
浴室乾燥機、シャワー付洗面化粧台、温水洗浄便座、トイレ2ヶ所 |
| キッチン |
- |
| 設備・サービス |
上水道、下水道、都市ガス |
| その他 |
- |
| 現況 |
空家 |
引渡可能時期 |
相談 |
| 物件番号 |
1016994987 |
|
|
| 情報公開日 |
2026年1月11日 |
次回更新予定日 |
2026年2月9日 |
| ケータイ用バーコード |
- スマートフォンでこの物件を見る
- スマートフォンからもこの物件をご覧になれます。
|
※「-」と表示されている項目については、情報提供会社にご確認ください。
ここから簡単にお問い合わせをすることができます。
(SSLでの暗号化での送信を希望されるお客さまは
こちら
よりお問い合わせください)
お問い合わせを行う前に
「個人情報の取り扱いについて」を必ずお読みください。
「個人情報の取り扱いについて」に同意いただいた場合は「上記にご同意の上 確認画面へ進む」のボタンをクリックしてください。
個人情報の取り扱いについて
皆さまが送付された個人情報はアットホーム(株)のサーバを経由し、お問い合わせ先の不動産会社にメールまたはFAXにて転送されるためアットホーム(株)にも保管されます。アットホーム(株)で保管された個人情報の取り扱いについては、【こちら】をご覧ください。
また、本画面でご記入いただいた個人情報は、お問い合わせ先の不動産会社でも保管します。 お問い合わせ先の不動産会社が保管する個人情報の取り扱いについては、不動産会社に直接お問い合わせください。
国土交通大臣免許(13)第2077号 |
|---|
- 交通:
- 地下鉄御堂筋線/なかもず駅 徒歩4分
- 大阪府堺市北区中百舌鳥町5丁768-1 グランディ中百舌鳥1階
- TEL:
- 0120-007-367
- FAX:
- 072-250-2061
- 所属団体:
- (一社)不動産流通経営協会会員(公社)首都圏不動産公正取引協議会加盟
取引態様:専属専任媒介  - 00783366
|
- スマートフォンで
この不動産会社を見る

|
- 提携サイト等より掲載されている物件情報につきましては、不動産会社詳細情報にリンクされていないものがあります。
- 物件に関するお問合せは、物件詳細ページの「情報提供会社」に表示されている不動産会社へ直接お願いいたします。
- 間取図は、現況を優先させていただきます。
- 映像は物件の一部を撮影したものです。物件の契約にあたっての最終判断はご自身の判断に基づいて行ってください。
- 仲介手数料について

アットホームは物件情報の適正化に努めております。
内容に誤りがある場合にはこちらへご連絡ください。