東京都中野区江古田1丁目(新江古田駅)の一戸建て:物件詳細
交通 所在地 |
駅徒歩 |
価格 |
間取り 建物面積 |
土地面積 私道負担面積 |
物件種目 築年月 |
|
都営大江戸線/新江古田
東京都中野区江古田1丁目
|
12分
|
12,800万円
|
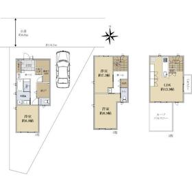
3SLDK
105.98m²
|
106.10m²
なし
|
中古一戸建て
2023年6月(築3年)
|
|
間取図
|
外観
現地外観写真
|
<
その他の画像
>
|
| 交通 | 都営大江戸線 新江古田駅 徒歩12分 |
|---|
| その他の交通 | 都営大江戸線 落合南長崎駅 徒歩15分 |
| 所在地 |
東京都中野区江古田1丁目
|
| 物件種目 |
中古一戸建て |
| 価格 |
12,800万円 |
借地期間・地代(月額) |
- |
| 権利金 |
- |
敷金または保証金 |
- / - |
| 維持費等 |
- |
その他一時金 |
- |
| 間取り |
3SLDK |
建物面積 |
105.98m² |
| 土地権利 |
所有権 |
建物構造 |
軽量鉄骨造 |
| 土地面積 |
106.10m²(公簿) |
私道負担面積 |
なし |
| 築年月 |
2023年6月(築3年)
|
都市計画 |
市街化区域 |
| 建物名 |
中野区江古田1丁目 戸建 |
建築確認番号 |
- |
| 用途地域 |
1種低層 |
駐車場 |
有 |
| 建ぺい率 |
60% |
容積率 |
150% |
| 階建 |
3階建 |
接道状況 |
北 6.0m 公道 接面10.7m
|
| 地目 |
宅地 |
地勢 |
平坦 |
| 国土法届出 |
- |
セットバック |
- |
| アピールポイント |
【交通情報】
◇大江戸線「新江古田」駅 徒歩12分
◇大江戸線「落合南長崎」駅 徒歩17分
≪物件概要≫
□トヨタホーム施工の注文住宅
□軽量鉄骨造3階建
□ルーフバルコニーからの眺望が良好です。
□敷地面積:106.10㎡
□建物面積:105.98㎡ 1階:39.25㎡ 2階:39.25㎡ 3階:27.48㎡
□前面道路:公道約6.0m
□床暖房あり(設置個所:リビングおよび、各洋室)
□浴室、ジェットバス付
|
| リフォーム履歴 |
- |
| リノベーション履歴 |
- |
| 瑕疵保証 |
- |
| 瑕疵保険 |
- |
| 評価・証明書 |
- |
| 備考 |
カースペース有(車種による)
|
| エネルギー消費性能 |
- |
| 断熱性能 |
- |
| 目安光熱費 |
- |
| バス・トイレ |
- |
| キッチン |
システムキッチン |
| 設備・サービス |
床暖房、上水道、下水道、都市ガス |
| その他 |
- |
| 現況 |
所有者居住中 |
引渡可能時期 |
相談 |
| 物件番号 |
1017144787 |
|
|
| 情報公開日 |
2026年1月26日 |
次回更新予定日 |
2026年5月27日 |
| ケータイ用バーコード |
- スマートフォンでこの物件を見る
- スマートフォンからもこの物件をご覧になれます。
|
※「-」と表示されている項目については、情報提供会社にご確認ください。
| 周辺施設 |
マルエツ 新江古田駅前店 |
| 距離 |
950m |
写真を見る |
| 周辺施設 |
ローソン 新宿西落合三丁目店 |
| 距離 |
300m |
写真を見る |
| 周辺施設 |
中野区立江原小学校 |
| 距離 |
450m |
写真を見る |
ここから簡単にお問い合わせをすることができます。
(SSLでの暗号化での送信を希望されるお客さまは
こちら
よりお問い合わせください)
お問い合わせを行う前に
「個人情報の取り扱いについて」を必ずお読みください。
「個人情報の取り扱いについて」に同意いただいた場合は「上記にご同意の上 確認画面へ進む」のボタンをクリックしてください。
個人情報の取り扱いについて
皆さまが送付された個人情報はアットホーム(株)のサーバを経由し、お問い合わせ先の不動産会社にメールまたはFAXにて転送されるためアットホーム(株)にも保管されます。アットホーム(株)で保管された個人情報の取り扱いについては、【こちら】をご覧ください。
また、本画面でご記入いただいた個人情報は、お問い合わせ先の不動産会社でも保管します。 お問い合わせ先の不動産会社が保管する個人情報の取り扱いについては、不動産会社に直接お問い合わせください。
国土交通大臣免許(13)第2077号 |
|---|
- 交通:
- 西武池袋線/大泉学園駅 徒歩2分
- 東京都練馬区東大泉1丁目36-4
- TEL:
- 0120-256-558
- FAX:
- 03-5387-6233
- 所属団体:
- (一社)不動産流通経営協会会員(公社)首都圏不動産公正取引協議会加盟
取引態様:専任媒介  - 00783190
|
- スマートフォンで
この不動産会社を見る

|
- 提携サイト等より掲載されている物件情報につきましては、不動産会社詳細情報にリンクされていないものがあります。
- 物件に関するお問合せは、物件詳細ページの「情報提供会社」に表示されている不動産会社へ直接お願いいたします。
- 間取図は、現況を優先させていただきます。
- 映像は物件の一部を撮影したものです。物件の契約にあたっての最終判断はご自身の判断に基づいて行ってください。
- 仲介手数料について

アットホームは物件情報の適正化に努めております。
内容に誤りがある場合にはこちらへご連絡ください。