埼玉県朝霞市岡3丁目(朝霞駅)の一戸建て:物件詳細
交通 所在地 |
駅徒歩 |
価格 |
間取り 建物面積 |
土地面積 私道負担面積 |
物件種目 築年月 |
|
東武東上線/朝霞
埼玉県朝霞市岡3丁目
|
19分
|
3,880万円
|
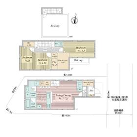
2LDK
88.70m²
|
87.35m²
有 162.00m²
|
中古一戸建て
2020年3月(築5年8ヶ月)
|
|
南向き
|
|
間取図
2020年03月築2LDK
|
外観
東武東上線「朝霞」駅 徒歩19分 東武東上線「朝霞台」駅 徒歩20分
|
<
その他の画像
>
|
| 交通 | 東武東上線 朝霞駅 徒歩19分 |
|---|
| その他の交通 | 東武東上線 朝霞台駅 徒歩20分 |
| 所在地 |
埼玉県朝霞市岡3丁目
|
| 物件種目 |
中古一戸建て |
| 価格 |
3,880万円 |
借地期間・地代(月額) |
- |
| 権利金 |
- |
敷金または保証金 |
- / - |
| 維持費等 |
- |
その他一時金 |
- |
| 間取り |
2LDK |
建物面積 |
88.70m² |
| 土地権利 |
所有権 |
建物構造 |
木造 |
| 土地面積 |
87.35m²(公簿) |
私道負担面積 |
有 162.00m² |
| 築年月 |
2020年3月(築5年8ヶ月)
|
都市計画 |
市街化区域 |
| 建物名 |
戸建 朝霞市岡3丁目 |
建築確認番号 |
- |
| 用途地域 |
1種中高 |
駐車場 |
有 無料 |
| 建ぺい率 |
60% |
容積率 |
200% |
| 階建 |
2階建 |
接道状況 |
東 4.0m 私道 位置指定有 接面6.0m
|
| 地目 |
宅地 |
地勢 |
平坦 |
| 国土法届出 |
- |
セットバック |
- |
| アピールポイント |
■3LDKに変更可能(別途費用がかかります)
■全室窓付きのため通風良好です
■約3帖の大型ウォークインクローゼットを完備
■全居室に収納がございます
■約1帖のシューズクローク
■屋上にバルコニーを完備
■ガス乾燥機設置可能
■高級感のある造設食器棚を完備
ご内覧や詳細につきましては、お気軽にお問合せください。 |
| リフォーム履歴 |
- |
| リノベーション履歴 |
- |
| 瑕疵保証 |
- |
| 瑕疵保険 |
- |
| 評価・証明書 |
- |
| 備考 |
主要採光面:南向き
※私道持分 ①144m2 2030/14400 ②18m2 410/1800
※前面道路幅員により容積率は160%
|
| エネルギー消費性能 |
- |
| 断熱性能 |
- |
| 目安光熱費 |
- |
| バス・トイレ |
浴室乾燥機、追焚機能、トイレ2ヶ所 |
| キッチン |
カウンターキッチン、システムキッチン、浄水器、IHクッキングヒーター |
| 設備・サービス |
全居室収納、シューズインクローゼット、下水道、都市ガス |
| その他 |
- |
| 現況 |
完成済 |
引渡可能時期 |
即時 |
| 物件番号 |
1018962364 |
|
|
| 情報公開日 |
2025年6月22日 |
次回更新予定日 |
2025年11月7日 |
| ケータイ用バーコード |
- スマートフォンでこの物件を見る
- スマートフォンからもこの物件をご覧になれます。
|
※「-」と表示されている項目については、情報提供会社にご確認ください。
ここから簡単にお問い合わせをすることができます。
(SSLでの暗号化での送信を希望されるお客さまは
こちら
よりお問い合わせください)
お問い合わせを行う前に
「個人情報の取り扱いについて」を必ずお読みください。
「個人情報の取り扱いについて」に同意いただいた場合は「上記にご同意の上 確認画面へ進む」のボタンをクリックしてください。
個人情報の取り扱いについて
皆さまが送付された個人情報はアットホーム(株)のサーバを経由し、お問い合わせ先の不動産会社にメールまたはFAXにて転送されるためアットホーム(株)にも保管されます。アットホーム(株)で保管された個人情報の取り扱いについては、【こちら】をご覧ください。
また、本画面でご記入いただいた個人情報は、お問い合わせ先の不動産会社でも保管します。 お問い合わせ先の不動産会社が保管する個人情報の取り扱いについては、不動産会社に直接お問い合わせください。
国土交通大臣免許(10)第3394号 |
|---|
- 交通:
- 東武東上線/成増駅 徒歩2分
- 東京都板橋区成増1丁目14-13 池田ビル3F
- TEL:
- 03-5997-5511
- FAX:
- 03-5997-5522
- 所属団体:
- (一社)不動産流通経営協会会員(公社)首都圏不動産公正取引協議会加盟
取引態様:一般媒介  - 00781580
|
- スマートフォンで
この不動産会社を見る

|
- 提携サイト等より掲載されている物件情報につきましては、不動産会社詳細情報にリンクされていないものがあります。
- 物件に関するお問合せは、物件詳細ページの「情報提供会社」に表示されている不動産会社へ直接お願いいたします。
- 間取図は、現況を優先させていただきます。
- 映像は物件の一部を撮影したものです。物件の契約にあたっての最終判断はご自身の判断に基づいて行ってください。
- 仲介手数料について

アットホームは物件情報の適正化に努めております。
内容に誤りがある場合にはこちらへご連絡ください。