東京都北区昭和町2丁目(尾久駅)の一戸建て:物件詳細
交通 所在地 |
駅徒歩 |
価格 |
間取り 建物面積 |
土地面積 私道負担面積 |
物件種目 築年月 |
|
JR高崎線/尾久
東京都北区昭和町2丁目
|
3分
|
7,880万円
|
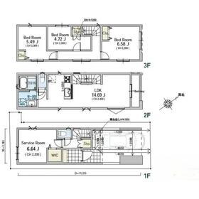
4LDK
106.51m²
|
57.21m²
なし
|
新築一戸建て
2026年6月
|
|
間取図
2026年1月完成の新築戸建てです。
|
外観
尾久駅徒歩約3分の立地となります。
|
その他の画像
|
| 交通 | JR高崎線 尾久駅 徒歩3分 |
|---|
| その他の交通 | JR京浜東北線 上中里駅 徒歩15分 |
| 所在地 |
東京都北区昭和町2丁目
|
| 物件種目 |
新築一戸建て |
| 価格 |
7,880万円 |
借地期間・地代(月額) |
- |
| 権利金 |
- |
敷金または保証金 |
- / - |
| 維持費等 |
- |
その他一時金 |
- |
| 間取り |
4LDK |
建物面積 |
106.51m² |
| 土地権利 |
所有権 |
建物構造 |
木造 |
| 土地面積 |
57.21m²(実測) |
私道負担面積 |
なし |
| 築年月 |
2026年6月
|
都市計画 |
市街化区域 |
| 建物名 |
|
建築確認番号 |
KBI-SGM25-10-5240 |
| 用途地域 |
準工業 |
駐車場 |
有 無料 |
| 建ぺい率 |
60% |
容積率 |
300% |
| 階建 |
3階建 |
接道状況 |
北東 7.8m 公道 接面4.3m
|
| 地目 |
宅地 |
地勢 |
平坦 |
| 国土法届出 |
国土法事前確認済 |
セットバック |
- |
| アピールポイント |
尾久駅から徒歩3分という好立地物件です。本物件周辺には東武ストアやオリンピックなどスーパーもあり、上野駅まで電車で6分、東京駅まで14分という利便性も兼ね備えております。前面道路も幅員約7.8mと広く、開放感を感じていただけるかと思います。もちろん住宅ローンや諸費用など資金プランのご案内もさせていただきますので、ご興味がございましたらお気軽にお問い合わせください。 |
| リフォーム履歴 |
- |
| リノベーション履歴 |
- |
| 瑕疵保証 |
- |
| 瑕疵保険 |
- |
| 評価・証明書 |
- |
| 備考 |
法令等制限:準防火地域、第三種高度地区
|
| エネルギー消費性能 |
- |
| 断熱性能 |
- |
| 目安光熱費 |
- |
| バス・トイレ |
- |
| キッチン |
- |
| 設備・サービス |
下水道、都市ガス |
| その他 |
- |
| 現況 |
建築中 |
引渡可能時期 |
2026年7月下旬予定 |
| 物件番号 |
1020058792 |
仲介手数料 |
売買代金の3%+6万円 |
| 情報公開日 |
2026年2月2日 |
次回更新予定日 |
2026年2月16日 |
| ケータイ用バーコード |
- スマートフォンでこの物件を見る
- スマートフォンからもこの物件をご覧になれます。
|
※「-」と表示されている項目については、情報提供会社にご確認ください。
ここから簡単にお問い合わせをすることができます。
(SSLでの暗号化での送信を希望されるお客さまは
こちら
よりお問い合わせください)
お問い合わせを行う前に
「個人情報の取り扱いについて」を必ずお読みください。
「個人情報の取り扱いについて」に同意いただいた場合は「上記にご同意の上 確認画面へ進む」のボタンをクリックしてください。
個人情報の取り扱いについて
皆さまが送付された個人情報はアットホーム(株)のサーバを経由し、お問い合わせ先の不動産会社にメールまたはFAXにて転送されるためアットホーム(株)にも保管されます。アットホーム(株)で保管された個人情報の取り扱いについては、【こちら】をご覧ください。
また、本画面でご記入いただいた個人情報は、お問い合わせ先の不動産会社でも保管します。 お問い合わせ先の不動産会社が保管する個人情報の取り扱いについては、不動産会社に直接お問い合わせください。
国土交通大臣免許(12)第2608号 |
|---|
- 交通:
- JR総武線/水道橋駅 徒歩5分
- 東京都千代田区飯田橋2丁目18番2号 大和ハウス九段ビル4階
- TEL:
- 0120-277-552
- FAX:
- 03-5214-2716
- 所属団体:
- (公社)全日本不動産協会会員不動産公正取引協議会加盟
取引態様:一般媒介  - 00422181
|
- スマートフォンで
この不動産会社を見る

|
- 提携サイト等より掲載されている物件情報につきましては、不動産会社詳細情報にリンクされていないものがあります。
- 物件に関するお問合せは、物件詳細ページの「情報提供会社」に表示されている不動産会社へ直接お願いいたします。
- 間取図は、現況を優先させていただきます。
- 映像は物件の一部を撮影したものです。物件の契約にあたっての最終判断はご自身の判断に基づいて行ってください。
- 仲介手数料について

アットホームは物件情報の適正化に努めております。
内容に誤りがある場合にはこちらへご連絡ください。