東京都中野区上鷺宮5丁目(富士見台駅)の一戸建て:物件詳細
交通 所在地 |
駅徒歩 |
価格 |
間取り 建物面積 |
土地面積 私道負担面積 |
物件種目 築年月 |
|
西武池袋線/富士見台
東京都中野区上鷺宮5丁目
|
11分
|
7,580万円
|
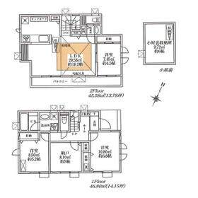
3SLDK
92.38m²
|
117.15m²
なし
|
中古一戸建て
2023年11月(築2年2ヶ月)
|
|
バリアフリー、閑静な住宅街
|
|
間取図
間取り図
|
外観
現地写真
|
<
その他の画像
>
|
| 交通 | 西武池袋線 富士見台駅 徒歩11分 |
|---|
| その他の交通 | JR中央線 阿佐ケ谷駅 【バス】 11分 井草一丁目 停歩15分 JR中央線 荻窪駅 【バス】 19分 南田中車庫 停歩12分 |
| 所在地 |
東京都中野区上鷺宮5丁目
|
| 物件種目 |
中古一戸建て |
| 価格 |
7,580万円 |
借地期間・地代(月額) |
- |
| 権利金 |
- |
敷金または保証金 |
- / - |
| 維持費等 |
- |
その他一時金 |
- |
| 間取り |
3SLDK |
建物面積 |
92.38m² |
| 土地権利 |
所有権 |
建物構造 |
木造 |
| 土地面積 |
117.15m²(実測) |
私道負担面積 |
なし |
| 築年月 |
2023年11月(築2年2ヶ月)
|
都市計画 |
市街化区域 |
| 建物名 |
中野区上鷺宮5丁目 |
建築確認番号 |
- |
| 用途地域 |
1種低層 |
駐車場 |
- |
| 建ぺい率 |
40% |
容積率 |
80% |
| 階建 |
2階建 |
接道状況 |
北東 8.0m 公道
|
| 地目 |
宅地 |
地勢 |
- |
| 国土法届出 |
- |
セットバック |
- |
| アピールポイント |
◆◇ライフプランシミュレーション(無料)による無理のない資金計画のご提案◇◆
「今が買い時、借り時」といった甘い言葉に惑わされず、10~20年後をシミュレーションすることが必要
★☆住宅購入セミナー(無料)☆★
わかりやすくより的確なセミナーを定期的に個別の住宅ローン相談からセミナーを毎月開催
◆◇近隣聞き込み調査や役所調査を含めた独自の物件調査報告書の作成◇◆
近隣聞き込みや役所調査を含めた独自の物件調査報告書の作成。不動産購入に関する不安を解消
★☆HP会員限定物件公開中(無料)☆★
独自ルートで毎日数十件、取得、更新で弊社成約の60%超は、未公開物件
★☆不動産購入に関するお客様の不安を解消いたします☆★
◆◇不動産の専門家がマイホーム探しを徹底サポート◇◆ |
| リフォーム履歴 |
- |
| リノベーション履歴 |
- |
| 瑕疵保証 |
- |
| 瑕疵保険 |
- |
| 評価・証明書 |
- |
| 備考 |
主要採光面:南東向き
◆◇不動産の専門家ファイナンシャルプランナーがあなたのマイホーム探しを徹底サポート◇◆
|
| エネルギー消費性能 |
- |
| 断熱性能 |
- |
| 目安光熱費 |
- |
| バス・トイレ |
温水洗浄便座、トイレ2ヶ所、浴室に窓あり |
| キッチン |
カウンターキッチン、システムキッチン、3口以上コンロ |
| 設備・サービス |
全居室収納、床暖房、クローゼット、床下収納、全居室フローリング、上水道、下水道、都市ガス、電気 |
| その他 |
- |
| 現況 |
完成済 |
引渡可能時期 |
即時 |
| 物件番号 |
1026396798 |
|
|
| 情報公開日 |
2025年6月24日 |
次回更新予定日 |
2025年12月26日 |
| ケータイ用バーコード |
- スマートフォンでこの物件を見る
- スマートフォンからもこの物件をご覧になれます。
|
※「-」と表示されている項目については、情報提供会社にご確認ください。
| 周辺施設 |
中野鷺宮五郵便局 |
| 距離 |
647m |
写真を見る |
| 周辺施設 |
杉並区立下井草図書館 |
| 距離 |
1426m |
写真を見る |
| 周辺施設 |
中野区立武蔵台小学校 |
| 距離 |
237m |
写真を見る |
| 周辺施設 |
中野区立北中野中学校 |
| 距離 |
178m |
写真を見る |
| 周辺施設 |
スギ薬局富士見台店 |
| 距離 |
996m |
写真を見る |
| 周辺施設 |
Emio富士見台 |
| 距離 |
865m |
写真を見る |
| 周辺施設 |
西友下井草店 |
| 距離 |
978m |
写真を見る |
ここから簡単にお問い合わせをすることができます。
(SSLでの暗号化での送信を希望されるお客さまは
こちら
よりお問い合わせください)
お問い合わせを行う前に
「個人情報の取り扱いについて」を必ずお読みください。
「個人情報の取り扱いについて」に同意いただいた場合は「上記にご同意の上 確認画面へ進む」のボタンをクリックしてください。
個人情報の取り扱いについて
皆さまが送付された個人情報はアットホーム(株)のサーバを経由し、お問い合わせ先の不動産会社にメールまたはFAXにて転送されるためアットホーム(株)にも保管されます。アットホーム(株)で保管された個人情報の取り扱いについては、【こちら】をご覧ください。
また、本画面でご記入いただいた個人情報は、お問い合わせ先の不動産会社でも保管します。 お問い合わせ先の不動産会社が保管する個人情報の取り扱いについては、不動産会社に直接お問い合わせください。
東京都知事免許(4)第86581号 |
|---|
- 交通:
- JR中央線/高円寺駅 徒歩2分
- 東京都杉並区高円寺南4丁目44-6 ユンズビル1F
- TEL:
- 0800-919-8333
- FAX:
- 03-5307-8335
- 所属団体:
- (公社)全日本不動産協会会員(公社)首都圏不動産公正取引協議会加盟
取引態様:媒介  - 00108453
|
- スマートフォンで
この不動産会社を見る

|
- 提携サイト等より掲載されている物件情報につきましては、不動産会社詳細情報にリンクされていないものがあります。
- 物件に関するお問合せは、物件詳細ページの「情報提供会社」に表示されている不動産会社へ直接お願いいたします。
- 間取図は、現況を優先させていただきます。
- 映像は物件の一部を撮影したものです。物件の契約にあたっての最終判断はご自身の判断に基づいて行ってください。
- 仲介手数料について

アットホームは物件情報の適正化に努めております。
内容に誤りがある場合にはこちらへご連絡ください。