千葉県船橋市習志野台4丁目(習志野駅)の一戸建て:物件詳細
交通 所在地 |
駅徒歩 |
価格 |
間取り 建物面積 |
土地面積 私道負担面積 |
物件種目 築年月 |
京成松戸線/習志野
千葉県船橋市習志野台4丁目
|
8分
|
4,590万円
|
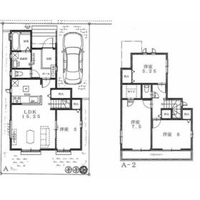
4LDK
95.40m²
|
107.00m²
なし
|
新築一戸建て
2025年12月
|
間取図
|
外観
|
その他の画像
|
交通 | 京成松戸線 習志野駅 徒歩8分 |
---|
その他の交通 | 京成松戸線 北習志野駅 徒歩12分 東葉高速鉄道 北習志野駅 徒歩12分 |
所在地 |
千葉県船橋市習志野台4丁目
|
物件種目 |
新築一戸建て |
価格 |
4,590万円 |
借地期間・地代(月額) |
- |
権利金 |
- |
敷金または保証金 |
- / - |
維持費等 |
- |
その他一時金 |
なし |
間取り |
4LDK |
建物面積 |
95.40m² |
土地権利 |
所有権 |
建物構造 |
木造 |
土地面積 |
107.00m²(実測) |
私道負担面積 |
なし |
築年月 |
2025年12月
|
都市計画 |
- |
建物名 |
新築戸建 船橋市習志野台4丁目 |
建築確認番号 |
第25-00000-0000号 |
用途地域 |
1種中高 |
駐車場 |
無 |
建ぺい率 |
- |
容積率 |
- |
階建 |
2階建 |
接道状況 |
-
|
地目 |
宅地 |
地勢 |
- |
国土法届出 |
- |
セットバック |
- |
リフォーム履歴 |
- |
リノベーション履歴 |
- |
瑕疵保証 |
- |
瑕疵保険 |
- |
評価・証明書 |
- |
備考 |
総戸数:1戸
図面なし
|
エネルギー消費性能 |
- |
断熱性能 |
- |
目安光熱費 |
- |
バス・トイレ |
- |
キッチン |
- |
設備・サービス |
- |
その他 |
- |
現況 |
建築中 |
引渡可能時期 |
2025年12月下旬予定 |
物件番号 |
1031052993 |
|
|
情報公開日 |
2025年10月7日 |
次回更新予定日 |
2025年10月21日 |
ケータイ用バーコード |
- スマートフォンでこの物件を見る
- スマートフォンからもこの物件をご覧になれます。
|
※「-」と表示されている項目については、情報提供会社にご確認ください。
周辺施設 |
習志野台ようこう公園 |
距離 |
320m |
写真を見る |
周辺施設 |
セブンイレブン船橋習志野台4丁目店 |
距離 |
360m |
写真を見る |
周辺施設 |
船橋市東図書館 |
距離 |
480m |
写真を見る |
周辺施設 |
ヨークマート 習志野台店 |
距離 |
490m |
写真を見る |
周辺施設 |
共立習志野台病院 |
距離 |
420m |
写真を見る |
ここから簡単にお問い合わせをすることができます。
(SSLでの暗号化での送信を希望されるお客さまは
こちら
よりお問い合わせください)
お問い合わせを行う前に
「個人情報の取り扱いについて」を必ずお読みください。
「個人情報の取り扱いについて」に同意いただいた場合は「上記にご同意の上 確認画面へ進む」のボタンをクリックしてください。
個人情報の取り扱いについて
皆さまが送付された個人情報はアットホーム(株)のサーバを経由し、お問い合わせ先の不動産会社にメールまたはFAXにて転送されるためアットホーム(株)にも保管されます。アットホーム(株)で保管された個人情報の取り扱いについては、【こちら】をご覧ください。
また、本画面でご記入いただいた個人情報は、お問い合わせ先の不動産会社でも保管します。 お問い合わせ先の不動産会社が保管する個人情報の取り扱いについては、不動産会社に直接お問い合わせください。
千葉県知事免許(1)第18892号 |
---|
- 交通:
- 京成松戸線/薬園台駅 徒歩2分
- 千葉県船橋市薬円台6丁目5-1
- TEL:
- 047-401-0440
- FAX:
- 047-401-0441
- 所属団体:
- (公社)全日本不動産協会会員(公社)首都圏不動産公正取引協議会加盟
取引態様:媒介  - 00281775
|
- スマートフォンで
この不動産会社を見る

|
- 提携サイト等より掲載されている物件情報につきましては、不動産会社詳細情報にリンクされていないものがあります。
- 物件に関するお問合せは、物件詳細ページの「情報提供会社」に表示されている不動産会社へ直接お願いいたします。
- 間取図は、現況を優先させていただきます。
- 映像は物件の一部を撮影したものです。物件の契約にあたっての最終判断はご自身の判断に基づいて行ってください。
- 仲介手数料について

アットホームは物件情報の適正化に努めております。
内容に誤りがある場合にはこちらへご連絡ください。