不動産 賃貸 マンション等の住宅情報:埼玉住まい情報


宮崎県宮崎市西池町(宮崎駅)の一戸建て:物件詳細

  • 物件詳細
  • 情報の見方
  • 印刷用画面
交通
所在地
駅徒歩 価格 間取り
建物面積
土地面積
私道負担面積
物件種目
築年月

JR日豊本線/宮崎

宮崎県宮崎市西池町

19分

4,250万円

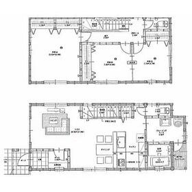
3LDK

92.74m²

152.85m²

なし

未入居一戸建て

2023年9月(築2年4ヶ月)
未入居

おすすめコメント

【西池小・付属小エリア】利便性の優れた好立地 西池町新築未入居住宅■西池小徒歩7分、付属小徒歩10分■駐車場4台可■都市オール電化

間取図

間取図

外観

外観

<
その他の画像
  • その他
  • リビング
  • リビング
  • リビング
  • キッチン
  • キッチン
  • キッチン
  • キッチン
  • 洗面
  • バス/シャワー
  • トイレ
  • 玄関
  • 玄関
  • 室内
  • 収納
  • 収納
  • 室内
  • 室内
  • 収納
  • 収納
  • 小学校
  • 中学校
  • その他
  • 販売店
  • 販売店
  • 販売店
  • 販売店
  • コンビニ
>
    • とりあえず保存
    • お問い合わせ
    交通

    JR日豊本線 宮崎駅 徒歩19分

    所在地 宮崎県宮崎市西池町
    物件種目 未入居一戸建て
    価格 4,250万円 借地期間・地代(月額)
    権利金 敷金または保証金 - / -
    維持費等 その他一時金 なし
    間取り 3LDK 建物面積 92.74m²
    土地権利 所有権 建物構造 木造
    土地面積 152.85m²(公簿) 私道負担面積 なし
    築年月 2023年9月(築2年4ヶ月) 未入居 都市計画 市街化区域
    建物名 西池町新築住宅1号 建築確認番号
    用途地域 2種住居 駐車場
    建ぺい率 60% 容積率 200%
    階建 2階建 接道状況 南 3.2m 公道 接面6.1m
    地目 宅地 地勢 平坦
    国土法届出 セットバック
    アピールポイント 【西池小・付属小エリア】利便性の優れた好立地 西池町新築未入居住宅
    ■西池小徒歩7分、付属小徒歩10分。
    ■西中徒歩7分、附属中徒歩10分。
    ■スーパー他商業施設も多く住みよい環境です。
    ■おしゃれなリビング階段
    ■脱衣場もゆったりとしています。
    ■使い勝手の良い3LDKです。
    ■駐車場4台可。
    ■閑静な住宅街です。
    ■都市オール電化。

    内覧も可能です。
    お気軽にお問い合わせ下さいませ。
    リフォーム履歴
    リノベーション履歴
    瑕疵保証
    瑕疵保険
    評価・証明書
    備考
    4台まで駐車可能、宮崎市中心部買物等と近く便利な場所です。室内については、内見できます。
    エネルギー消費性能
    断熱性能
    目安光熱費
    バス・トイレ
    キッチン
    設備・サービス
    その他
    現況 完成済 引渡可能時期 相談
    物件番号 1031458180    
    情報公開日 2025年1月6日 次回更新予定日 2025年12月27日
    ケータイ用バーコード

    QRコード

    スマートフォンでこの物件を見る
    スマートフォンからもこの物件をご覧になれます。
    ※「-」と表示されている項目については、情報提供会社にご確認ください。

    この物件の周辺情報

    周辺施設 宮崎市立西池小学校
    距離 658m
    周辺施設 宮崎市立宮崎西中学校
    距離 581m
    周辺施設 宮崎駅(JR 日豊本線)
    距離 1506m
    周辺施設 まつの西池店
    距離 247m
    周辺施設 マックスバリュ橘通西店
    距離 534m
    周辺施設 鮮ど市場元宮店
    距離 991m
    周辺施設 Maruichi丸山店
    距離 1014m
    周辺施設 セブンイレブン宮崎原町店
    距離 648m

    クイックお問い合わせ

    ここから簡単にお問い合わせをすることができます。
    (SSLでの暗号化での送信を希望されるお客さまは こちら よりお問い合わせください)

    お問い合わせ内容(必須)
    お名前(必須) 姓  名 
    メールアドレス(必須)
    ※携帯電話のメールアドレスをご入力される方はこちらをご確認ください
    電話番号(必須)
    - -

    ※入力いただいた電話番号へSMSまたは音声でパスワードをご連絡します。

    携帯電話の番号をご入力の方へ

    携帯電話の番号をご入力の方へ
    確認画面にて送信ボタンをクリックするとSMSが携帯電話に届きます。
    そのSMSに記載のパスワード(認証番号)を入力し、お問い合わせを完了してください。
    尚、SMSの送信者番号は 0005 202 760 となります。
    これはアットホームの固定番号です。

    備考欄 希望条件、物件案内希望日、質問などがございましたらご記入ください。
    お問い合わせを行う前に「個人情報の取り扱いについて」を必ずお読みください。
    「個人情報の取り扱いについて」に同意いただいた場合は「上記にご同意の上 確認画面へ進む」のボタンをクリックしてください。

    個人情報の取り扱いについて

    皆さまが送付された個人情報はアットホーム(株)のサーバを経由し、お問い合わせ先の不動産会社にメールまたはFAXにて転送されるためアットホーム(株)にも保管されます。アットホーム(株)で保管された個人情報の取り扱いについては、【こちら】をご覧ください。
    また、本画面でご記入いただいた個人情報は、お問い合わせ先の不動産会社でも保管します。 お問い合わせ先の不動産会社が保管する個人情報の取り扱いについては、不動産会社に直接お問い合わせください。

    情報提供会社

    情報提供会社

    センチュリー21トータルカンパニー

    宮崎県知事免許(4)第4499号

    交通:
    JR日豊本線/宮崎駅
    宮崎県宮崎市柳丸町104-1-1F 
    TEL:
    0985-27-4765
    FAX:
    0985-27-4774
    所属団体:
    (一社)宮崎県宅地建物取引業協会会員
    (一社)九州不動産公正取引協議会加盟

    取引態様:媒介

    • 会社情報
    • 99000764
    スマートフォンで
    この不動産会社を見る
    QRコード
    • とりあえず保存
    • お問い合わせ
    • 提携サイト等より掲載されている物件情報につきましては、不動産会社詳細情報にリンクされていないものがあります。
    • 物件に関するお問合せは、物件詳細ページの「情報提供会社」に表示されている不動産会社へ直接お願いいたします。
    • 間取図は、現況を優先させていただきます。
    • 映像は物件の一部を撮影したものです。物件の契約にあたっての最終判断はご自身の判断に基づいて行ってください。
    • 仲介手数料について仲介手数料

    アットホームは物件情報の適正化に努めております。 内容に誤りがある場合にはこちらへご連絡ください。

    【埼玉住まい情報】では、日本全国の物件から賃貸マンションや賃貸アパート・賃貸一戸建て等の賃貸住宅情報、新築マンション・分譲マンションや中古マンション等の売買マンション情報、新築一戸建てや中古一戸建てなどの戸建住宅、 土地など、総合的な不動産住宅情報検索サービスを提供致します。
    【埼玉住まい情報】から、選りすぐりの不動産物件を探してみましょう。

    【免責事項】
    このコーナーの運営はアットホーム株式会社(https://www.athome.co.jp/)が行っています。
    このコーナーに掲載している物件情報は、「アットホーム不動産情報ネットワーク」に加盟する不動産会社等(情報提供元)から提供されています。信頼性の高い情報提供が行えるよう、最大限の努力をしておりますが、その内容を保証するものではありません。 利用者のみなさまと各情報提供元との取引に起因する損害および情報が掲載されたことに起因する損害等については、株式会社イーシティ埼玉、およびアットホームは一切責任を負いません。
    各物件情報の内容や画像等はすべて現況を優先させていただきます。
    お取引等(お取引の準備、資金調達等を含みます)の際には、内容や契約条件等について、各情報提供元より十分な説明を受け、ご自身でご確認の上、判断してください。
    このコーナーへの物件情報のご掲載、その他不動産業務ソリューション等についての不動産会社様のお問合せはこちらからお願いいたします。

    物件画像: