不動産 賃貸 マンション等の住宅情報:埼玉住まい情報


滋賀県野洲市野洲(野洲駅)の一戸建て:物件詳細

  • 物件詳細
  • 情報の見方
  • 印刷用画面
交通
所在地
駅徒歩 価格 間取り
建物面積
土地面積
私道負担面積
物件種目
築年月

JR東海道本線/野洲

滋賀県野洲市野洲

21分

3,980万円

4LDK

113.75m²

167.02m²

なし

中古一戸建て

2004年3月(築22年1ヶ月)

おすすめPOINT駐車場2台分、24時間換気システム、バリアフリー、閑静な住宅街、オール電化、フラット35S適合証明書あり

おすすめコメント  スタッフ: 杉原 聡一

実際の大規模地震にも耐えたツーユーホームの強さ【高強度耐力壁】 ALSOKのホームセキュリティを導入予定! 瑕疵保険(5年)・設備保証(新調設備10年・その他2年)付保予定

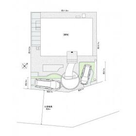
間取図

間取図

4LDKのゆとりある設計。キッチン横から上がるリビング内階段。家族のコミュニケーションを大切に。

外観

外観

ツートンカラーの外壁が上品な印象の外観。フラワーバルコニーがアクセントとなり、駐車2台可能です。

<
その他の画像
  • 間取図
  • リビング
  • リビング
  • リビング
  • リビング
  • リビング
  • 室内
  • 室内
  • キッチン
  • キッチン
  • キッチン
  • キッチン
  • 室内
  • 洗面
  • バス/シャワー
  • トイレ
  • 玄関
  • 玄関
  • 室内
  • 室内
  • 室内
  • 室内
  • その他
  • その他
  • その他
  • その他
  • その他
  • その他
  • その他
  • その他
  • その他
  • その他
  • その他
  • その他
  • その他
  • その他
  • その他
  • その他
  • 幼稚園、保育園
  • 小学校
  • 中学校
  • ショッピング施設
  • ショッピング施設
  • ショッピング施設
  • コンビニ
  • 役所
>
    • とりあえず保存
    • お問い合わせ
    交通

    JR東海道本線 野洲駅 徒歩21分

    その他の交通

    JR東海道本線 守山駅 徒歩28分

    所在地 滋賀県野洲市野洲
    物件種目 中古一戸建て
    価格 3,980万円 借地期間・地代(月額)
    権利金 敷金または保証金 - / -
    維持費等 その他一時金
    間取り 4LDK 建物面積 113.75m²
    土地権利 所有権 建物構造 木造
    土地面積 167.02m²(公簿) 私道負担面積 なし
    築年月 2004年3月(築22年1ヶ月) 都市計画 市街化区域
    建物名 野洲市野洲Beハイム 建築確認番号
    用途地域 2種中高 駐車場
    建ぺい率 60% 容積率 200%
    階建 2階建 接道状況 南東 6.0m 公道 接面10.8m
    地目 宅地 地勢
    国土法届出 セットバック
    リフォーム履歴
    リノベーション履歴
    瑕疵保証
    瑕疵保険
    評価・証明書 ■フラット35S適合証明書
     フラット35S適合証明書あり
    備考
    主要採光面:南東向き
    ●施工前の物件となりますので、リフォーム内容が変更となる場合がございます。

    建築基準法22条区域、道路斜線制限、隣地斜線制限、景観計画、屋外広告物条例
    エネルギー消費性能
    断熱性能
    目安光熱費
    バス・トイレ 浴室乾燥機
    キッチン 食器洗浄乾燥機、IHクッキングヒーター
    設備・サービス 床下収納、モニター付インターホン、シャッター雨戸、省エネ給湯器、上水道、下水道、電気、庭、複層ガラス
    その他
    現況 空家 引渡可能時期 相談
    物件番号 1033074632    
    情報公開日 2025年9月13日 次回更新予定日 2026年4月1日
    ケータイ用バーコード

    QRコード

    スマートフォンでこの物件を見る
    スマートフォンからもこの物件をご覧になれます。
    ※「-」と表示されている項目については、情報提供会社にご確認ください。

    この物件の周辺情報

    周辺施設 ゆきはたこども園
    距離 1200m
    周辺施設 野洲小学校
    距離 1400m
    周辺施設 野洲中学校
    距離 2800m
    周辺施設 西友 野洲店
    距離 1400m
    周辺施設 アル・プラザ野洲
    距離 1900m
    周辺施設 スーパーマーケットバロー守山駅東店
    距離 2000m
    周辺施設 ファミリーマート野洲川橋店
    距離 255m
    周辺施設 野洲市役所
    距離 1800m

    クイックお問い合わせ

    ここから簡単にお問い合わせをすることができます。
    (SSLでの暗号化での送信を希望されるお客さまは こちら よりお問い合わせください)

    お問い合わせ内容(必須)
    お名前(必須) 姓  名 
    メールアドレス(必須)
    ※携帯電話のメールアドレスをご入力される方はこちらをご確認ください
    電話番号(必須)
    - -

    ※入力いただいた電話番号へSMSまたは音声でパスワードをご連絡します。

    携帯電話の番号をご入力の方へ

    携帯電話の番号をご入力の方へ
    確認画面にて送信ボタンをクリックするとSMSが携帯電話に届きます。
    そのSMSに記載のパスワード(認証番号)を入力し、お問い合わせを完了してください。
    尚、SMSの送信者番号は 0005 202 760 となります。
    これはアットホームの固定番号です。

    備考欄 希望条件、物件案内希望日、質問などがございましたらご記入ください。
    お問い合わせを行う前に「個人情報の取り扱いについて」を必ずお読みください。
    「個人情報の取り扱いについて」に同意いただいた場合は「上記にご同意の上 確認画面へ進む」のボタンをクリックしてください。

    個人情報の取り扱いについて

    皆さまが送付された個人情報はアットホーム(株)のサーバを経由し、お問い合わせ先の不動産会社にメールまたはFAXにて転送されるためアットホーム(株)にも保管されます。アットホーム(株)で保管された個人情報の取り扱いについては、【こちら】をご覧ください。
    また、本画面でご記入いただいた個人情報は、お問い合わせ先の不動産会社でも保管します。 お問い合わせ先の不動産会社が保管する個人情報の取り扱いについては、不動産会社に直接お問い合わせください。

    情報提供会社

    情報提供会社

    セキスイハイム不動産(株) 近畿流通支店 流通営業所 阪神営業店

    国土交通大臣免許(10)第3490号

    交通:
    JR東海道本線/新大阪駅 徒歩5分
    大阪府大阪市淀川区宮原1丁目6-1 新大阪ブリックビル11F
    TEL:
    06-6399-1260
    FAX:
    06-6399-1261
    所属団体:
    (一社)大阪府宅地建物取引業協会会員
    (一社)不動産流通経営協会会員
    (一社)不動産協会会員
    (公社)近畿地区不動産公正取引協議会加盟

    取引態様:売主

    • 会社情報
    • 50102911
    スマートフォンで
    この不動産会社を見る
    QRコード
    • とりあえず保存
    • お問い合わせ
    • 提携サイト等より掲載されている物件情報につきましては、不動産会社詳細情報にリンクされていないものがあります。
    • 物件に関するお問合せは、物件詳細ページの「情報提供会社」に表示されている不動産会社へ直接お願いいたします。
    • 間取図は、現況を優先させていただきます。
    • 映像は物件の一部を撮影したものです。物件の契約にあたっての最終判断はご自身の判断に基づいて行ってください。
    • 仲介手数料について仲介手数料

    アットホームは物件情報の適正化に努めております。 内容に誤りがある場合にはこちらへご連絡ください。

    【埼玉住まい情報】では、日本全国の物件から賃貸マンションや賃貸アパート・賃貸一戸建て等の賃貸住宅情報、新築マンション・分譲マンションや中古マンション等の売買マンション情報、新築一戸建てや中古一戸建てなどの戸建住宅、 土地など、総合的な不動産住宅情報検索サービスを提供致します。
    【埼玉住まい情報】から、選りすぐりの不動産物件を探してみましょう。

    【免責事項】
    このコーナーの運営はアットホーム株式会社(https://www.athome.co.jp/)が行っています。
    このコーナーに掲載している物件情報は、「アットホーム不動産情報ネットワーク」に加盟する不動産会社等(情報提供元)から提供されています。信頼性の高い情報提供が行えるよう、最大限の努力をしておりますが、その内容を保証するものではありません。 利用者のみなさまと各情報提供元との取引に起因する損害および情報が掲載されたことに起因する損害等については、株式会社イーシティ埼玉、およびアットホームは一切責任を負いません。
    各物件情報の内容や画像等はすべて現況を優先させていただきます。
    お取引等(お取引の準備、資金調達等を含みます)の際には、内容や契約条件等について、各情報提供元より十分な説明を受け、ご自身でご確認の上、判断してください。
    このコーナーへの物件情報のご掲載、その他不動産業務ソリューション等についての不動産会社様のお問合せはこちらからお願いいたします。

    物件画像: