不動産 賃貸 マンション等の住宅情報:埼玉住まい情報


熊本県合志市須屋(須屋駅)の一戸建て:物件詳細

  • 物件詳細
  • 情報の見方
  • 印刷用画面
交通
所在地
駅徒歩 価格 間取り
建物面積
土地面積
私道負担面積
物件種目
築年月

熊本電気鉄道/須屋

熊本県合志市須屋

13分

3,290万円

2SLDK

96.88m²

180.46m²

なし

未入居一戸建て

2023年3月(築3年3ヶ月)
未入居

おすすめPOINT駐車場3台分以上、バス1坪以上、24時間換気システム

おすすめコメント  スタッフ: 藤原 章裕

【本日ご案内可能!】「長期優良住宅」で3世代続く安心を。ご成約で10万円以内の家具家電をプレゼント!水曜日や18時以降の内覧、お仕事終わりの内覧も柔軟に対応します☆住宅ローンで月々6万円台の支払いも◎

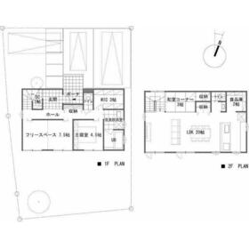
間取図

間取図

■□■間取り■□■2LDK+S♪庭付きです☆

外観

外観

■□■外観■□■2LDK+S♪庭付きです☆

<
その他の画像
  • リビング
  • キッチン
  • キッチン
  • 洗面
  • バス/シャワー
  • 室内
  • リビング
  • リビング
  • 収納
  • 玄関
  • トイレ
  • 室内
  • 室内
  • 室内
  • 室内
  • 室内
  • 収納
  • 収納
  • トイレ
  • 設備
  • 設備
  • 小学校
  • 中学校
  • 病院
  • コンビニ
  • コンビニ
  • ショッピング施設
  • 公園
  • その他
>
    • とりあえず保存
    • お問い合わせ
    交通

    熊本電気鉄道 須屋駅 徒歩13分

    所在地 熊本県合志市須屋
    物件種目 未入居一戸建て
    価格 3,290万円 借地期間・地代(月額)
    権利金 敷金または保証金 - / -
    維持費等 その他一時金 なし
    間取り 2SLDK 建物面積 96.88m²
    土地権利 所有権 建物構造 木造
    土地面積 180.46m² 私道負担面積 なし
    築年月 2023年3月(築3年3ヶ月) 未入居 都市計画 市街化区域
    建物名 新築戸建 合志市須屋 3号地(T) 建築確認番号 第R04SHC121849号
    用途地域 1種中高 駐車場 有 無料
    建ぺい率 60% 容積率 150%
    階建 2階建 接道状況
    地目 宅地 地勢
    国土法届出 セットバック
    アピールポイント ■【購入総額の限界に挑戦】諸費用で損したくない方注目!熊本県全域の物件、お得に購入しませんか?

    〈長期優良住宅〉国が認めた高品質で長持ちする家。税金や保険料の割引も最大級に受けられます。
    〈省令準耐火構造〉火災に強く、安心感とともに火災保険料も大幅に抑えられます。
    〈耐震等級3〉大きな地震から家族を守る、高水準の耐震性能。
    〈断熱等性能等級5〉家中どこでも快適に。冷暖房代を3割カットできるかも!

    ■熊本で「一番賢く」家を買うなら『ハウスドゥ熊本桜町』へ!
    私たちは「物件価格+諸費用」の総額を最小限に抑えることを目指しています。
    1.【仲介手数料無料】 諸費用を最小限に。お見積りのセカンドオピニオンも受付中。
    2.【全物件ご紹介】 熊本県内の全物件が対象。窓口ひとつで家探しを完結。
    3.【即日内覧ツアー】 1日で効率よく比較!スケジュール調整はすべてお任せください
    4.【交渉力に自信】 「もう少し安ければ…」を現実に。売主様への価格交渉も得意です。
    5.【オプションも忘れずに】意外とかかるオプション工事費用もお客様に代わって相見積もりします

    ご相談だけでもお気軽にどうぞ!
    リフォーム履歴
    リノベーション履歴
    瑕疵保証
    瑕疵保険
    評価・証明書
    備考
    総戸数:1戸
    号棟番号:3号地(T)
    【月々の支払い例】
    3300万円借り入れの場合
    月々66,438円(頭金・ボーナス払いなし)
    金利0.780%の場合(SBI新生銀行、金利優遇有)
    変動金利 返済期間50年
    ※あくまで一例。条件有。

    【周辺環境】
    ・合志市立西合志南小学校まで徒歩19分(約1500m)
    ・合志市立西合志南中学校まで徒歩16分(約1240m)
    ・まつもとこどもクリニックまで徒歩8分(約600m)
    ・セブン-イレブン 熊本新地団地前店まで徒歩10分(約750m)
    ・セブンイレブン合志須屋センター前店まで徒歩8分(約570m)
    ・スーパーミカエル新地店まで徒歩10分(約780m)
    ・清水新地公園・野球場まで徒歩11分(約860m)
    ・スーパー・キッド新地店まで徒歩11分(約850m)
    ・アタックス菊陽店まで徒歩12分(約900m)
    ・熊本新地郵便局まで徒歩14分(約1120m)

    お気軽にご相談ください!
    お問い合わせは『ハウスドゥ熊本桜町』まで♪
    エネルギー消費性能
    断熱性能
    目安光熱費
    バス・トイレ オートバス、シャワー付洗面化粧台、温水洗浄便座、トイレ2ヶ所、浴室に窓あり
    キッチン カウンターキッチン、システムキッチン、食器洗浄乾燥機、浄水器、IHクッキングヒーター
    設備・サービス ウォークインクローゼット、シューズインクローゼット、モニター付インターホン、ディンプルキー、上水道、下水道、プロパンガス、電気、火災警報器(報知機)
    その他
    現況 完成済 引渡可能時期 即時
    物件番号 1033833893    
    情報公開日 2026年2月13日 次回更新予定日 2026年5月16日
    ケータイ用バーコード

    QRコード

    スマートフォンでこの物件を見る
    スマートフォンからもこの物件をご覧になれます。
    ※「-」と表示されている項目については、情報提供会社にご確認ください。

    この物件の周辺情報

    周辺施設 西合志南小学校
    距離 1500m
    周辺施設 西合志南中学校
    距離 1240m
    周辺施設 まつもとこどもクリニック
    距離 600m
    周辺施設 セブン-イレブン 熊本新地団地前店
    距離 750m
    周辺施設 セブンイレブン合志須屋センター前店
    距離 570m
    周辺施設 スーパーミカエル新地店
    距離 780m
    周辺施設 清水新地公園・野球場
    距離 860m
    周辺施設 スーパー・キッド 新地店
    距離 850m

    クイックお問い合わせ

    ここから簡単にお問い合わせをすることができます。
    (SSLでの暗号化での送信を希望されるお客さまは こちら よりお問い合わせください)

    お問い合わせ内容(必須)
    お名前(必須) 姓  名 
    メールアドレス(必須)
    ※携帯電話のメールアドレスをご入力される方はこちらをご確認ください
    電話番号(必須)
    - -

    ※入力いただいた電話番号へSMSまたは音声でパスワードをご連絡します。

    携帯電話の番号をご入力の方へ

    携帯電話の番号をご入力の方へ
    確認画面にて送信ボタンをクリックするとSMSが携帯電話に届きます。
    そのSMSに記載のパスワード(認証番号)を入力し、お問い合わせを完了してください。
    尚、SMSの送信者番号は 0005 202 760 となります。
    これはアットホームの固定番号です。

    備考欄 希望条件、物件案内希望日、質問などがございましたらご記入ください。
    お問い合わせを行う前に「個人情報の取り扱いについて」を必ずお読みください。
    「個人情報の取り扱いについて」に同意いただいた場合は「上記にご同意の上 確認画面へ進む」のボタンをクリックしてください。

    個人情報の取り扱いについて

    皆さまが送付された個人情報はアットホーム(株)のサーバを経由し、お問い合わせ先の不動産会社にメールまたはFAXにて転送されるためアットホーム(株)にも保管されます。アットホーム(株)で保管された個人情報の取り扱いについては、【こちら】をご覧ください。
    また、本画面でご記入いただいた個人情報は、お問い合わせ先の不動産会社でも保管します。 お問い合わせ先の不動産会社が保管する個人情報の取り扱いについては、不動産会社に直接お問い合わせください。

    情報提供会社

    情報提供会社

    ハウスドゥ熊本桜町 (株)Remado

    熊本県知事免許(1)第5556号

    交通:
    熊本市電健軍線/花畑町駅 徒歩5分 【バス】 桜町バスターミナル 停歩3分
    熊本県熊本市中央区桜町1-25 
    TEL:
    096-274-4665
    FAX:
    096-274-4666
    所属団体:
    (公社)熊本県宅地建物取引業協会会員
    (一社)九州不動産公正取引協議会加盟

    取引態様:媒介

    • 会社情報
    • 80509071
    スマートフォンで
    この不動産会社を見る
    QRコード
    • とりあえず保存
    • お問い合わせ
    • 提携サイト等より掲載されている物件情報につきましては、不動産会社詳細情報にリンクされていないものがあります。
    • 物件に関するお問合せは、物件詳細ページの「情報提供会社」に表示されている不動産会社へ直接お願いいたします。
    • 間取図は、現況を優先させていただきます。
    • 映像は物件の一部を撮影したものです。物件の契約にあたっての最終判断はご自身の判断に基づいて行ってください。
    • 仲介手数料について仲介手数料

    アットホームは物件情報の適正化に努めております。 内容に誤りがある場合にはこちらへご連絡ください。

    【埼玉住まい情報】では、日本全国の物件から賃貸マンションや賃貸アパート・賃貸一戸建て等の賃貸住宅情報、新築マンション・分譲マンションや中古マンション等の売買マンション情報、新築一戸建てや中古一戸建てなどの戸建住宅、 土地など、総合的な不動産住宅情報検索サービスを提供致します。
    【埼玉住まい情報】から、選りすぐりの不動産物件を探してみましょう。

    【免責事項】
    このコーナーの運営はアットホーム株式会社(https://www.athome.co.jp/)が行っています。
    このコーナーに掲載している物件情報は、「アットホーム不動産情報ネットワーク」に加盟する不動産会社等(情報提供元)から提供されています。信頼性の高い情報提供が行えるよう、最大限の努力をしておりますが、その内容を保証するものではありません。 利用者のみなさまと各情報提供元との取引に起因する損害および情報が掲載されたことに起因する損害等については、株式会社イーシティ埼玉、およびアットホームは一切責任を負いません。
    各物件情報の内容や画像等はすべて現況を優先させていただきます。
    お取引等(お取引の準備、資金調達等を含みます)の際には、内容や契約条件等について、各情報提供元より十分な説明を受け、ご自身でご確認の上、判断してください。
    このコーナーへの物件情報のご掲載、その他不動産業務ソリューション等についての不動産会社様のお問合せはこちらからお願いいたします。

    物件画像: