京都府宇治市羽戸山3丁目(黄檗駅)の一戸建て:物件詳細
交通 所在地 |
駅徒歩 |
価格 |
間取り 建物面積 |
土地面積 私道負担面積 |
物件種目 築年月 |
|
JR奈良線/黄檗
京都府宇治市羽戸山3丁目
|
18分
|
2,498万円
|
4LDK
103.50m²
|
165.08m²
なし
|
中古一戸建て
1987年3月(築39年3ヶ月)
|
|
閑静な住宅街
|
|
≪オープンハウス/モデルハウス≫【開催期間】2026年5月1日~7月31日 事前に必ず予約してください
|
|
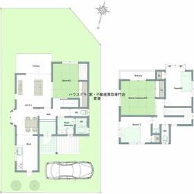
間取図
JR黄檗駅まで徒歩18分!・空き物件に付き即内覧可・カーポート付駐車スペース有・開放感たっぷりの角地
|
外観
JR黄檗駅まで徒歩18分!・空き物件に付き即内覧可・カーポート付駐車スペース有・開放感たっぷりの角地
|
<
その他の画像
>
|
| 交通 | JR奈良線 黄檗駅 徒歩18分 |
|---|
| その他の交通 | 京阪宇治線 黄檗駅 徒歩24分 京阪宇治線 三室戸駅 徒歩27分 |
| 所在地 |
京都府宇治市羽戸山3丁目
|
| 物件種目 |
中古一戸建て |
| 価格 |
2,498万円 |
借地期間・地代(月額) |
- |
| 権利金 |
- |
敷金または保証金 |
- / - |
| 維持費等 |
- |
その他一時金 |
なし |
| 間取り |
4LDK |
建物面積 |
103.50m² |
| 土地権利 |
所有権 |
建物構造 |
木造 |
| 土地面積 |
165.08m²(公簿) |
私道負担面積 |
なし |
| 築年月 |
1987年3月(築39年3ヶ月)
|
都市計画 |
市街化区域 |
| 建物名 |
中古戸建 京都府宇治市羽戸山3丁目 |
建築確認番号 |
- |
| 用途地域 |
1種低層 |
駐車場 |
有 無料 |
| 建ぺい率 |
70% |
容積率 |
100% |
| 階建 |
2階建 |
接道状況 |
南 12.5m 公道
・ 西 6.0m 公道
・ 二方道路
|
| 地目 |
宅地 |
地勢 |
- |
| 国土法届出 |
- |
セットバック |
- |
| アピールポイント |
(建物特徴)
■全居室に収納を標準装備。家具を最小限に抑え、広々とした住空間へ
■周囲に遮るものが少ないため、心地よい風が家中をスムーズに通り抜けます
■LDKと繋がる和室は、ゲストルームからお昼寝スポットまで。暮らしの幅を広げる多目的スペースに
(周辺環境)
■JR黄檗駅まで徒歩18分
■宇治小学校まで徒歩23分
■羽戸山第2児童公園まで徒歩2分
■なかよし保育園まで徒歩7分
■セブン-イレブン 宇治黄檗公園店まで徒歩7分
■スギ薬局 宇治五ケ庄店まで徒歩12分
■いちのはしクリニックまで徒歩14分
■サンディ黄檗店まで徒歩17分
■DAISO宇治黄檗店まで歩17分
■アル・プラザ宇治東まで徒歩22分
■たま木亭まで徒歩23分
□購入相談会同時開催中□
・住宅ローン
借入限度額や自分に合った支払い額を知りたい方
お家探しの前に資金計画を立てたい方、住替えをお考えの方、他社で断られた方…
一度ご相談ください。専門スタッフがわかりやすくご説明します! |
| リフォーム履歴 |
- |
| リノベーション履歴 |
- |
| 瑕疵保証 |
- |
| 瑕疵保険 |
- |
| 評価・証明書 |
- |
| 備考 |
総戸数:1戸
法令等制限:高度地区
□建築協定区域:シティ・エスポワール宇治黄檗台住宅
□建ぺい率は角地緩和適用後の数値を記載しております
□駐車スペース有(車種による)
□現況渡し
|
| エネルギー消費性能 |
- |
| 断熱性能 |
- |
| 目安光熱費 |
- |
| バス・トイレ |
オートバス、シャワー付洗面化粧台、トイレ2ヶ所、浴室に窓あり |
| キッチン |
独立型キッチン、IHクッキングヒーター |
| 設備・サービス |
全居室収納、モニター付インターホン、浄化槽、上水道、下水道、都市ガス、電気、庭 |
| その他 |
- |
| 現況 |
空家 |
引渡可能時期 |
相談 |
| 物件番号 |
1034528793 |
|
|
| 情報公開日 |
2026年3月17日 |
次回更新予定日 |
2026年5月21日 |
| ケータイ用バーコード |
- スマートフォンでこの物件を見る
- スマートフォンからもこの物件をご覧になれます。
|
※「-」と表示されている項目については、情報提供会社にご確認ください。
| 周辺施設 |
JR黄檗駅 |
| 距離 |
1400m |
写真を見る |
| 周辺施設 |
京阪 三室戸駅 |
| 距離 |
1740m |
写真を見る |
| 周辺施設 |
京阪黄檗駅 |
| 距離 |
1920m |
写真を見る |
| 周辺施設 |
なかよし保育園 |
| 距離 |
360m |
写真を見る |
| 周辺施設 |
宇治小学校・黄檗中学校 |
| 距離 |
1780m |
写真を見る |
| 周辺施設 |
羽戸山第2児童公園 |
| 距離 |
10m |
写真を見る |
| 周辺施設 |
セブンイレブン 宇治黄檗公園店 |
| 距離 |
530m |
写真を見る |
| 周辺施設 |
DCM宇治東店 |
| 距離 |
1420m |
写真を見る |
ここから簡単にお問い合わせをすることができます。
(SSLでの暗号化での送信を希望されるお客さまは
こちら
よりお問い合わせください)
お問い合わせを行う前に
「個人情報の取り扱いについて」を必ずお読みください。
「個人情報の取り扱いについて」に同意いただいた場合は「上記にご同意の上 確認画面へ進む」のボタンをクリックしてください。
個人情報の取り扱いについて
皆さまが送付された個人情報はアットホーム(株)のサーバを経由し、お問い合わせ先の不動産会社にメールまたはFAXにて転送されるためアットホーム(株)にも保管されます。アットホーム(株)で保管された個人情報の取り扱いについては、【こちら】をご覧ください。
また、本画面でご記入いただいた個人情報は、お問い合わせ先の不動産会社でも保管します。 お問い合わせ先の不動産会社が保管する個人情報の取り扱いについては、不動産会社に直接お問い合わせください。
国土交通大臣免許(2)第9821号 |
|---|
- 交通:
- JR東海道本線/草津駅 徒歩4分
- 滋賀県草津市西大路町5-4
- TEL:
- 0120-61-8722
- 所属団体:
- (公社)滋賀県宅地建物取引業協会会員(公社)近畿地区不動産公正取引協議会加盟
取引態様:売主  - 50111313
|
- スマートフォンで
この不動産会社を見る

|
- 提携サイト等より掲載されている物件情報につきましては、不動産会社詳細情報にリンクされていないものがあります。
- 物件に関するお問合せは、物件詳細ページの「情報提供会社」に表示されている不動産会社へ直接お願いいたします。
- 間取図は、現況を優先させていただきます。
- 映像は物件の一部を撮影したものです。物件の契約にあたっての最終判断はご自身の判断に基づいて行ってください。
- 仲介手数料について

アットホームは物件情報の適正化に努めております。
内容に誤りがある場合にはこちらへご連絡ください。