大阪府池田市渋谷2丁目(池田駅)の一戸建て:物件詳細
交通 所在地 |
駅徒歩 |
価格 |
間取り 建物面積 |
土地面積 私道負担面積 |
物件種目 築年月 |
阪急宝塚線/池田
大阪府池田市渋谷2丁目
|
19分
|
5,480万円
|
3LDK
110.12m²
|
180.25m²
-
|
中古一戸建て
2019年8月(築6年3ヶ月)
|
閑静な住宅街、オール電化、長期優良住宅(耐震、省エネ性等高い)
|
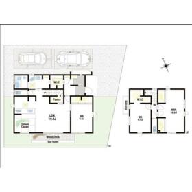
間取図
◆間取り◆3LDK→4LDKとお子様の成長に合わせて対応可能な間取りです!
|
外観
ツートンカラーのスタイリッシュな外観♪長く愛される現代的スタイルでオシャレな住まい!
|
<
その他の画像
>
|
交通 | 阪急宝塚線 池田駅 徒歩19分 |
---|
その他の交通 | 阪急宝塚線 池田駅 【バス】 7分 下渋谷 停歩5分 阪急箕面線 石橋阪大前駅 【バス】 11分 秦野小学校前 停歩6分 |
所在地 |
大阪府池田市渋谷2丁目
|
物件種目 |
中古一戸建て |
価格 |
5,480万円 |
借地期間・地代(月額) |
- |
権利金 |
- |
敷金または保証金 |
- / - |
維持費等 |
- |
その他一時金 |
なし |
間取り |
3LDK |
建物面積 |
110.12m² |
土地権利 |
所有権 |
建物構造 |
木造 |
土地面積 |
180.25m²(公簿) |
私道負担面積 |
- |
築年月 |
2019年8月(築6年3ヶ月)
|
都市計画 |
市街化区域 |
建物名 |
CASA 池田市渋谷2丁目 |
建築確認番号 |
- |
用途地域 |
1種低層 |
駐車場 |
- |
建ぺい率 |
50% |
容積率 |
100% |
階建 |
2階建 |
接道状況 |
北 4.0m 公道 接面14.0m
|
地目 |
宅地 |
地勢 |
平坦 |
国土法届出 |
- |
セットバック |
- |
アピールポイント |
令和元年8月建築の築浅物件、池田市渋谷2丁目に登場☆
安心、快適に暮らしていただける長期優良住宅の住まい。
また、オール電化、太陽光発電システムを設置で経済的な邸宅です!
間取りは3LDKとなっておりますが、2階の10.0帖の洋室は間仕切をすることで、
5.0帖ずつのお部屋としてお使いいただけます!
お子様の成長、ライフスタイルの変化にあわせて間取りを変更できるため大変便利です♪
【設備・仕様】
・断熱材:吹付断熱(アクアフォーム)
・壁仕上げ:無添加漆喰
・1階ホール、LDK床材:RUSFLOOR(上質な無垢フロア)
・24時間換気システム
お気軽にお問い合わせください! |
リフォーム履歴 |
- |
リノベーション履歴 |
- |
瑕疵保証 |
- |
瑕疵保険 |
- |
評価・証明書 |
■長期優良住宅認定通知書 長期優良住宅認定通知書あり |
備考 |
主要採光面:東向き
|
エネルギー消費性能 |
- |
断熱性能 |
- |
目安光熱費 |
- |
バス・トイレ |
トイレ2ヶ所 |
キッチン |
カウンターキッチン、オープンキッチン |
設備・サービス |
全居室収納、ウォークインクローゼット、太陽光発電システム、シューズインクローゼット、上水道、下水道、庭 |
その他 |
- |
現況 |
所有者居住中 |
引渡可能時期 |
相談 |
物件番号 |
1064363093 |
|
|
情報公開日 |
2025年9月9日 |
次回更新予定日 |
2025年10月24日 |
ケータイ用バーコード |
- スマートフォンでこの物件を見る
- スマートフォンからもこの物件をご覧になれます。
|
※「-」と表示されている項目については、情報提供会社にご確認ください。
周辺施設 |
池田市立秦野小学校 |
距離 |
306m |
写真を見る |
周辺施設 |
池田市立渋谷中学校 |
距離 |
704m |
写真を見る |
周辺施設 |
食品館アプロ 池田店 |
距離 |
752m |
写真を見る |
周辺施設 |
業務スーパー 鉢塚店 |
距離 |
1041m |
写真を見る |
周辺施設 |
イズミヤ 池田旭丘店 |
距離 |
1038m |
写真を見る |
周辺施設 |
セブンイレブン 池田旭丘1丁目店 |
距離 |
661m |
写真を見る |
周辺施設 |
池田畑郵便局 |
距離 |
635m |
写真を見る |
周辺施設 |
キリン堂 池田緑丘店 |
距離 |
450m |
写真を見る |
ここから簡単にお問い合わせをすることができます。
(SSLでの暗号化での送信を希望されるお客さまは
こちら
よりお問い合わせください)
お問い合わせを行う前に
「個人情報の取り扱いについて」を必ずお読みください。
「個人情報の取り扱いについて」に同意いただいた場合は「上記にご同意の上 確認画面へ進む」のボタンをクリックしてください。
個人情報の取り扱いについて
皆さまが送付された個人情報はアットホーム(株)のサーバを経由し、お問い合わせ先の不動産会社にメールまたはFAXにて転送されるためアットホーム(株)にも保管されます。アットホーム(株)で保管された個人情報の取り扱いについては、【こちら】をご覧ください。
また、本画面でご記入いただいた個人情報は、お問い合わせ先の不動産会社でも保管します。 お問い合わせ先の不動産会社が保管する個人情報の取り扱いについては、不動産会社に直接お問い合わせください。
国土交通大臣免許(1)第9973号 |
---|
- 交通:
- 阪急箕面線/箕面駅 徒歩7分
- 大阪府箕面市箕面5丁目11-8 峰松ビル1階・2階
- TEL:
- 072-737-4447
- 所属団体:
- (一社)大阪府宅地建物取引業協会会員(公社)近畿地区不動産公正取引協議会加盟
取引態様:専属専任媒介  - 50107826
|
- スマートフォンで
この不動産会社を見る

|
- 提携サイト等より掲載されている物件情報につきましては、不動産会社詳細情報にリンクされていないものがあります。
- 物件に関するお問合せは、物件詳細ページの「情報提供会社」に表示されている不動産会社へ直接お願いいたします。
- 間取図は、現況を優先させていただきます。
- 映像は物件の一部を撮影したものです。物件の契約にあたっての最終判断はご自身の判断に基づいて行ってください。
- 仲介手数料について

アットホームは物件情報の適正化に努めております。
内容に誤りがある場合にはこちらへご連絡ください。