不動産 賃貸 マンション等の住宅情報:埼玉住まい情報


秋田県秋田市飯島文京町の一戸建て:物件詳細

  • 物件詳細
  • 情報の見方
  • 印刷用画面
交通
所在地
駅徒歩 価格 間取り
建物面積
土地面積
私道負担面積
物件種目
築年月

JR奥羽本線 上飯島 より車で1446m 4分

秋田県秋田市飯島文京町


880万円

3LDK

81.97m²

117.03m²

なし

中古一戸建て

1989年11月(築36年5ヶ月)

おすすめPOINT駐車場2台分、2面採光、閑静な住宅街

おすすめコメント  スタッフ: 奥田

収納たっぷりの広々22帖LDKでゆったり過ごそう!売却相談会等のイベントも開催しています!お気軽にお問い合わせください!(TEL:018-824-0234)

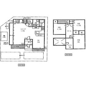
間取図

間取図

外観

外観

カントリー調の外観

その他の画像
  • リビング
  • キッチン
  • その他
  • その他
  • その他
  • 玄関
  • トイレ
  • 洗面
  • バス/シャワー
  • 外観
    • とりあえず保存
    • お問い合わせ
    交通

    JR奥羽本線 上飯島 より車で1446m 4分

    所在地 秋田県秋田市飯島文京町
    物件種目 中古一戸建て
    価格 880万円 借地期間・地代(月額)
    権利金 敷金または保証金 - / -
    維持費等 その他一時金
    間取り 3LDK(LDK22帖 洋室6帖 洋室4.5帖 洋室4.5帖) 建物面積 81.97m²
    土地権利 所有権 建物構造 木造
    土地面積 117.03m²(公簿) 私道負担面積 なし
    築年月 1989年11月(築36年5ヶ月) 都市計画 市街化区域
    建物名 秋田市飯島文京町 中古住宅 建築確認番号
    用途地域 1種中高 駐車場 有 無料
    建ぺい率 60% 容積率 160%
    階建 2階建 接道状況 西 4.0m 私道 接面9.4m
    地目 宅地 地勢 平坦
    国土法届出 セットバック
    リフォーム履歴 ■水回り:2005年10月
    キッチン、浴室、トイレ、洗面所
    ■内装:2005年10月
    2階洋室間仕切り撤去、ロフト増築
    ※実施年月は最も古い履歴を表示
    リノベーション履歴
    瑕疵保証
    瑕疵保険
    評価・証明書
    備考
    法令等制限:景観法、秋田市中高層の建築に係る紛争の予防および調整の条例
    温かみを感じる木製カウンター付キッチンで家族の会話がはずみます。リビングが臨めるロフトは、趣味のスペースとしても活用できます。・再建築時セットバックが必要になります。(0.005mセットバック)売主にて表題変更登記を行いお引渡し致します。駐車スペースについて、車種によっては複数台駐車可能です。
    売却相談会等のイベントも開催しております!まずはお気軽にお問い合わせください!(TEL:018-824-0234)
    エネルギー消費性能
    断熱性能
    目安光熱費
    バス・トイレ 追焚機能、シャワー付洗面化粧台、温水洗浄便座
    キッチン カウンターキッチン
    設備・サービス クローゼット、モニター付インターホン、浄化槽、全居室フローリング、上水道、プロパンガス、電気、複層ガラス
    その他
    現況 空家 引渡可能時期 即時
    物件番号 1067943498    
    情報公開日 2026年2月14日 次回更新予定日 2026年3月31日
    ケータイ用バーコード

    QRコード

    スマートフォンでこの物件を見る
    スマートフォンからもこの物件をご覧になれます。
    ※「-」と表示されている項目については、情報提供会社にご確認ください。

    この物件の周辺情報

    周辺施設 秋田市立飯島小学校
    距離 1216m
    周辺施設 秋田市立飯島中学校
    距離 1145m
    周辺施設 こども園こうほく風の遊育舎
    距離 990m
    周辺施設 国立秋田工業高等専門学校
    距離 127m
    周辺施設 秋田市北部市民サービスセンター
    距離 2132m
    周辺施設 土崎港北簡易郵便局
    距離 896m
    周辺施設 秋田工業高等専門学校図書館
    距離 437m
    周辺施設 秋田臨港警察署
    距離 2746m

    クイックお問い合わせ

    ここから簡単にお問い合わせをすることができます。
    (SSLでの暗号化での送信を希望されるお客さまは こちら よりお問い合わせください)

    お問い合わせ内容(必須)
    お名前(必須) 姓  名 
    メールアドレス(必須)
    ※携帯電話のメールアドレスをご入力される方はこちらをご確認ください
    電話番号(必須)
    - -

    ※入力いただいた電話番号へSMSまたは音声でパスワードをご連絡します。

    携帯電話の番号をご入力の方へ

    携帯電話の番号をご入力の方へ
    確認画面にて送信ボタンをクリックするとSMSが携帯電話に届きます。
    そのSMSに記載のパスワード(認証番号)を入力し、お問い合わせを完了してください。
    尚、SMSの送信者番号は 0005 202 760 となります。
    これはアットホームの固定番号です。

    備考欄 希望条件、物件案内希望日、質問などがございましたらご記入ください。
    お問い合わせを行う前に「個人情報の取り扱いについて」を必ずお読みください。
    「個人情報の取り扱いについて」に同意いただいた場合は「上記にご同意の上 確認画面へ進む」のボタンをクリックしてください。

    個人情報の取り扱いについて

    皆さまが送付された個人情報はアットホーム(株)のサーバを経由し、お問い合わせ先の不動産会社にメールまたはFAXにて転送されるためアットホーム(株)にも保管されます。アットホーム(株)で保管された個人情報の取り扱いについては、【こちら】をご覧ください。
    また、本画面でご記入いただいた個人情報は、お問い合わせ先の不動産会社でも保管します。 お問い合わせ先の不動産会社が保管する個人情報の取り扱いについては、不動産会社に直接お問い合わせください。

    情報提供会社

    情報提供会社

    (株)財産コンサルティング

    秋田県知事免許(7)第1573号

    交通:
    秋田新幹線/秋田駅 徒歩27分 【バス】 原の町 停歩4分
    秋田県秋田市保戸野原の町8番27号 
    TEL:
    0120-60-3150
    FAX:
    018-824-0230
    所属団体:
    (公社)秋田県宅地建物取引業協会会員
    (一社)全国賃貸不動産管理業協会会員
    東北地区不動産公正取引協議会加盟

    取引態様:専任媒介

    • 会社情報
    • 20003491
    スマートフォンで
    この不動産会社を見る
    QRコード
    • とりあえず保存
    • お問い合わせ
    • 提携サイト等より掲載されている物件情報につきましては、不動産会社詳細情報にリンクされていないものがあります。
    • 物件に関するお問合せは、物件詳細ページの「情報提供会社」に表示されている不動産会社へ直接お願いいたします。
    • 間取図は、現況を優先させていただきます。
    • 映像は物件の一部を撮影したものです。物件の契約にあたっての最終判断はご自身の判断に基づいて行ってください。
    • 仲介手数料について仲介手数料

    アットホームは物件情報の適正化に努めております。 内容に誤りがある場合にはこちらへご連絡ください。

    【埼玉住まい情報】では、日本全国の物件から賃貸マンションや賃貸アパート・賃貸一戸建て等の賃貸住宅情報、新築マンション・分譲マンションや中古マンション等の売買マンション情報、新築一戸建てや中古一戸建てなどの戸建住宅、 土地など、総合的な不動産住宅情報検索サービスを提供致します。
    【埼玉住まい情報】から、選りすぐりの不動産物件を探してみましょう。

    【免責事項】
    このコーナーの運営はアットホーム株式会社(https://www.athome.co.jp/)が行っています。
    このコーナーに掲載している物件情報は、「アットホーム不動産情報ネットワーク」に加盟する不動産会社等(情報提供元)から提供されています。信頼性の高い情報提供が行えるよう、最大限の努力をしておりますが、その内容を保証するものではありません。 利用者のみなさまと各情報提供元との取引に起因する損害および情報が掲載されたことに起因する損害等については、株式会社イーシティ埼玉、およびアットホームは一切責任を負いません。
    各物件情報の内容や画像等はすべて現況を優先させていただきます。
    お取引等(お取引の準備、資金調達等を含みます)の際には、内容や契約条件等について、各情報提供元より十分な説明を受け、ご自身でご確認の上、判断してください。
    このコーナーへの物件情報のご掲載、その他不動産業務ソリューション等についての不動産会社様のお問合せはこちらからお願いいたします。

    物件画像: