不動産 賃貸 マンション等の住宅情報:埼玉住まい情報


千葉県山武市松ヶ谷ロの一戸建て:物件詳細

  • 物件詳細
  • 情報の見方
  • 印刷用画面
交通
所在地
駅徒歩 価格 間取り
建物面積
土地面積
私道負担面積
物件種目
築年月

JR総武本線 成東 より車で8000m 新着

千葉県山武市松ヶ谷ロ


1,280万円

2DK

39.74m²

144.36m²

なし

中古一戸建て

2021年5月(築4年6ヶ月)

おすすめコメント

令和3年築の築浅平家住宅♪海にも近く別荘としてもご利用頂けます!約6帖のウッドデッキ有り!

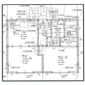
間取図

間取図

  • とりあえず保存
  • お問い合わせ
交通

JR総武本線 成東 より車で8000m

所在地 千葉県山武市松ヶ谷ロ
物件種目 中古一戸建て
価格 1,280万円 借地期間・地代(月額)
権利金 敷金または保証金 - / -
維持費等 その他一時金
間取り 2DK(DK6帖 洋室5.7帖 洋室6.2帖) 建物面積 39.74m²
土地権利 所有権 建物構造 木造
土地面積 144.36m²(公簿) 私道負担面積 なし
築年月 2021年5月(築4年6ヶ月) 都市計画 非線引区域
建物名 松ヶ谷ロ1280 建築確認番号
用途地域 1種低層 駐車場 有 無料
建ぺい率 50% 容積率 100%
階建 平屋建 接道状況 北 4.0m 私道 接面9.0m ・ 西 4.8m 公道 接面12.0m ・ 二方道路
地目 雑種地 地勢
国土法届出 セットバック
リフォーム履歴
リノベーション履歴
瑕疵保証
瑕疵保険
評価・証明書
備考
総戸数:1戸
契約不適合責任免責。境界非明示。現況でのお引渡し。公簿売買。
エネルギー消費性能
断熱性能
目安光熱費
バス・トイレ
キッチン
設備・サービス 床下収納、浄化槽、上水道、プロパンガス
その他
現況 空家 引渡可能時期 相談
物件番号 1069744698    
情報公開日 2025年10月14日 次回更新予定日 2025年10月28日
ケータイ用バーコード

QRコード

スマートフォンでこの物件を見る
スマートフォンからもこの物件をご覧になれます。
※「-」と表示されている項目については、情報提供会社にご確認ください。

この物件の周辺情報

周辺施設 山武市立緑海小学校
距離 1582m
周辺施設 山武市立成東東中学校
距離 4182m
周辺施設 蓮沼保育園
距離 4753m
周辺施設 山武市役所蓮沼出張所
距離 4915m
周辺施設 緑海郵便局
距離 2165m
周辺施設 医療法人社団慈優会九十九里病院
距離 6589m
周辺施設 トウズ成東店
距離 3595m
周辺施設 セブンイレブン成東本須賀店
距離 3612m

クイックお問い合わせ

ここから簡単にお問い合わせをすることができます。
(SSLでの暗号化での送信を希望されるお客さまは こちら よりお問い合わせください)

お問い合わせ内容(必須)
お名前(必須) 姓  名 
メールアドレス(必須)
※携帯電話のメールアドレスをご入力される方はこちらをご確認ください
電話番号(必須)
- -

※入力いただいた電話番号へSMSまたは音声でパスワードをご連絡します。

携帯電話の番号をご入力の方へ

携帯電話の番号をご入力の方へ
確認画面にて送信ボタンをクリックするとSMSが携帯電話に届きます。
そのSMSに記載のパスワード(認証番号)を入力し、お問い合わせを完了してください。
尚、SMSの送信者番号は 0005 202 760 となります。
これはアットホームの固定番号です。

備考欄 希望条件、物件案内希望日、質問などがございましたらご記入ください。
お問い合わせを行う前に「個人情報の取り扱いについて」を必ずお読みください。
「個人情報の取り扱いについて」に同意いただいた場合は「上記にご同意の上 確認画面へ進む」のボタンをクリックしてください。

個人情報の取り扱いについて

皆さまが送付された個人情報はアットホーム(株)のサーバを経由し、お問い合わせ先の不動産会社にメールまたはFAXにて転送されるためアットホーム(株)にも保管されます。アットホーム(株)で保管された個人情報の取り扱いについては、【こちら】をご覧ください。
また、本画面でご記入いただいた個人情報は、お問い合わせ先の不動産会社でも保管します。 お問い合わせ先の不動産会社が保管する個人情報の取り扱いについては、不動産会社に直接お問い合わせください。

情報提供会社

情報提供会社

ピタットハウス東金店 不動産の大地(株)

千葉県知事免許(4)第15657号

交通:
JR東金線/東金駅 徒歩17分
千葉県東金市川場1 イングビル102
TEL:
0475-50-3557
FAX:
0475-50-3558
所属団体:
(一社)千葉県宅地建物取引業協会会員
(公社)首都圏不動産公正取引協議会加盟

取引態様:媒介

  • 会社情報
  • 00018969
スマートフォンで
この不動産会社を見る
QRコード
  • とりあえず保存
  • お問い合わせ
  • 提携サイト等より掲載されている物件情報につきましては、不動産会社詳細情報にリンクされていないものがあります。
  • 物件に関するお問合せは、物件詳細ページの「情報提供会社」に表示されている不動産会社へ直接お願いいたします。
  • 間取図は、現況を優先させていただきます。
  • 映像は物件の一部を撮影したものです。物件の契約にあたっての最終判断はご自身の判断に基づいて行ってください。
  • 仲介手数料について仲介手数料

アットホームは物件情報の適正化に努めております。 内容に誤りがある場合にはこちらへご連絡ください。

【埼玉住まい情報】では、日本全国の物件から賃貸マンションや賃貸アパート・賃貸一戸建て等の賃貸住宅情報、新築マンション・分譲マンションや中古マンション等の売買マンション情報、新築一戸建てや中古一戸建てなどの戸建住宅、 土地など、総合的な不動産住宅情報検索サービスを提供致します。
【埼玉住まい情報】から、選りすぐりの不動産物件を探してみましょう。

【免責事項】
このコーナーの運営はアットホーム株式会社(https://www.athome.co.jp/)が行っています。
このコーナーに掲載している物件情報は、「アットホーム不動産情報ネットワーク」に加盟する不動産会社等(情報提供元)から提供されています。信頼性の高い情報提供が行えるよう、最大限の努力をしておりますが、その内容を保証するものではありません。 利用者のみなさまと各情報提供元との取引に起因する損害および情報が掲載されたことに起因する損害等については、株式会社イーシティ埼玉、およびアットホームは一切責任を負いません。
各物件情報の内容や画像等はすべて現況を優先させていただきます。
お取引等(お取引の準備、資金調達等を含みます)の際には、内容や契約条件等について、各情報提供元より十分な説明を受け、ご自身でご確認の上、判断してください。
このコーナーへの物件情報のご掲載、その他不動産業務ソリューション等についての不動産会社様のお問合せはこちらからお願いいたします。

物件画像: