千葉県習志野市屋敷5丁目(京成大久保駅)の一戸建て:物件詳細
交通 所在地 |
駅徒歩 |
価格 |
間取り 建物面積 |
土地面積 私道負担面積 |
物件種目 築年月 |
|
京成本線/京成大久保
千葉県習志野市屋敷5丁目
|
17分
|
3,880万円
|
4LDK
103.50m²
|
140.99m²
なし
|
新築一戸建て
2025年11月
|
|
駐車場2台分、2面採光、24時間換気システム、閑静な住宅街
|
|
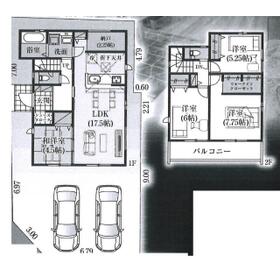
間取図
間取図です。
|
外観
初めての住宅購入もお住み替えもピタットハウス西船橋14号店へ是非一度ご相談下さい。
|
<
その他の画像
>
|
| 交通 | 京成本線 京成大久保駅 徒歩17分 |
|---|
| その他の交通 | 京成本線 実籾駅 徒歩23分 JR総武線 幕張本郷駅 徒歩28分 |
| 所在地 |
千葉県習志野市屋敷5丁目
|
| 物件種目 |
新築一戸建て |
| 価格 |
3,880万円 |
借地期間・地代(月額) |
- |
| 権利金 |
- |
敷金または保証金 |
- / - |
| 維持費等 |
- |
その他一時金 |
- |
| 間取り |
4LDK |
建物面積 |
103.50m² |
| 土地権利 |
所有権 |
建物構造 |
木造 |
| 土地面積 |
140.99m²(公簿) |
私道負担面積 |
なし |
| 築年月 |
2025年11月
|
都市計画 |
市街化区域 |
| 建物名 |
習志野市屋敷5丁目 新築戸建 |
建築確認番号 |
第HPA-25-08104-1号 |
| 用途地域 |
1種住居 |
駐車場 |
有 無料 |
| 建ぺい率 |
60% |
容積率 |
200% |
| 階建 |
2階建 |
接道状況 |
北西 4.0m 公道
・ 南西 6.0m 公道
・ 二方道路
|
| 地目 |
宅地 |
地勢 |
- |
| 国土法届出 |
- |
セットバック |
要 18.30m² |
| リフォーム履歴 |
- |
| リノベーション履歴 |
- |
| 瑕疵保証 |
- |
| 瑕疵保険 |
- |
| 評価・証明書 |
- |
| 備考 |
総戸数:1戸
ご家族それぞれのプライベート空間が確保できる間取りです♪角地ならではの陽当たりと通風の良さで快適な新生活を送れますね☆全居室収納◎大容量のWICは衣類等の収納に最適♪衣替えも楽々!キッチン後ろの納戸はストック収納等多目的に利用できますね☆
「京成大久保駅」徒歩圏内◎小・中学校徒歩15分圏内でお子様の通学も安心!閑静な住宅街で子育て世帯に嬉しい住環境です!前道6M×角地ならではの開放感溢れる快適な暮らしを叶えられますよ!☆お客様が満足できる物件が見つかるまで全力でサポートさせて頂きます☆
|
| エネルギー消費性能 |
- |
| 断熱性能 |
- |
| 目安光熱費 |
- |
| バス・トイレ |
浴室乾燥機、オートバス、追焚機能、シャワー付洗面化粧台、温水洗浄便座、トイレ2ヶ所 |
| キッチン |
カウンターキッチン、システムキッチン、浄水器、3口以上コンロ |
| 設備・サービス |
全居室収納、ウォークインクローゼット、クローゼット、床下収納、モニター付インターホン、上水道、下水道、都市ガス、照明器具、複層ガラス |
| その他 |
- |
| 現況 |
建築中 |
引渡可能時期 |
相談 |
| 物件番号 |
1069795498 |
|
|
| 情報公開日 |
2025年10月31日 |
次回更新予定日 |
2025年12月30日 |
| ケータイ用バーコード |
- スマートフォンでこの物件を見る
- スマートフォンからもこの物件をご覧になれます。
|
※「-」と表示されている項目については、情報提供会社にご確認ください。
| 周辺施設 |
習志野市立本大久保第二保育所 |
| 距離 |
1065m |
ここから簡単にお問い合わせをすることができます。
(SSLでの暗号化での送信を希望されるお客さまは
こちら
よりお問い合わせください)
お問い合わせを行う前に
「個人情報の取り扱いについて」を必ずお読みください。
「個人情報の取り扱いについて」に同意いただいた場合は「上記にご同意の上 確認画面へ進む」のボタンをクリックしてください。
個人情報の取り扱いについて
皆さまが送付された個人情報はアットホーム(株)のサーバを経由し、お問い合わせ先の不動産会社にメールまたはFAXにて転送されるためアットホーム(株)にも保管されます。アットホーム(株)で保管された個人情報の取り扱いについては、【こちら】をご覧ください。
また、本画面でご記入いただいた個人情報は、お問い合わせ先の不動産会社でも保管します。 お問い合わせ先の不動産会社が保管する個人情報の取り扱いについては、不動産会社に直接お問い合わせください。
千葉県知事免許(4)第15315号 |
|---|
- 交通:
- JR総武線/西船橋駅 徒歩4分
- 千葉県船橋市西船5丁目26-21
- TEL:
- 047-302-2221
- FAX:
- 047-302-2225
- 所属団体:
- (公社)全日本不動産協会会員(公社)首都圏不動産公正取引協議会加盟
取引態様:媒介  - 00017580
|
- スマートフォンで
この不動産会社を見る

|
- 提携サイト等より掲載されている物件情報につきましては、不動産会社詳細情報にリンクされていないものがあります。
- 物件に関するお問合せは、物件詳細ページの「情報提供会社」に表示されている不動産会社へ直接お願いいたします。
- 間取図は、現況を優先させていただきます。
- 映像は物件の一部を撮影したものです。物件の契約にあたっての最終判断はご自身の判断に基づいて行ってください。
- 仲介手数料について

アットホームは物件情報の適正化に努めております。
内容に誤りがある場合にはこちらへご連絡ください。