千葉県市川市香取1丁目(行徳駅)の一戸建て:物件詳細
交通 所在地 |
駅徒歩 |
価格 |
間取り 建物面積 |
土地面積 私道負担面積 |
物件種目 築年月 |
|
東京メトロ東西線/行徳
千葉県市川市香取1丁目
|
9分
|
4,680万円
|
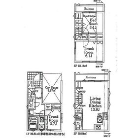
3LDK
83.83m²
|
46.54m²
なし
|
新築一戸建て
2025年12月
|
|
閑静な住宅街
|
|
間取図
間取図です。
|
|
その他の画像
|
| 交通 | 東京メトロ東西線 行徳駅 徒歩9分 |
|---|
| その他の交通 | 東京メトロ東西線 南行徳駅 徒歩17分 東京メトロ東西線 妙典駅 徒歩28分 |
| 所在地 |
千葉県市川市香取1丁目
|
| 物件種目 |
新築一戸建て |
| 価格 |
4,680万円 |
借地期間・地代(月額) |
- |
| 権利金 |
- |
敷金または保証金 |
- / - |
| 維持費等 |
- |
その他一時金 |
- |
| 間取り |
3LDK |
建物面積 |
83.83m² |
| 土地権利 |
所有権 |
建物構造 |
木造 |
| 土地面積 |
46.54m²(公簿) |
私道負担面積 |
なし |
| 築年月 |
2025年12月
|
都市計画 |
市街化区域 |
| 建物名 |
市川市香取1丁目 新築戸建 |
建築確認番号 |
第KS125-3120-50129号 |
| 用途地域 |
1種住居 |
駐車場 |
有 無料 |
| 建ぺい率 |
60% |
容積率 |
200% |
| 階建 |
3階建 |
接道状況 |
北 6.0m 公道
|
| 地目 |
宅地 |
地勢 |
- |
| 国土法届出 |
- |
セットバック |
- |
| リフォーム履歴 |
- |
| リノベーション履歴 |
- |
| 瑕疵保証 |
- |
| 瑕疵保険 |
- |
| 評価・証明書 |
- |
| 備考 |
総戸数:3戸
駅から徒歩9分と駅近好立地の新築物件!3部屋あり駐車場付き!全部屋収納完備☆更に床下収納もあるのでお部屋中片付きます♪L字システムキッチンは動線がスムーズで作業効率UPです☆彡2階リビングでオシャレです♪日中の周辺生活音が気になりにくい◎
東京メトロ東西線「行徳」駅より徒歩9分の駅近好立地物件!通勤やおでかけに便利です♪保育園・中学校が徒歩10分圏内で通学も安心です◎コンビニ・スーパー・ドラッグストアが近く周辺環境良好♪☆お客様が満足できる物件が見つかるまで全力でサポートさせて頂きます☆
|
| エネルギー消費性能 |
- |
| 断熱性能 |
- |
| 目安光熱費 |
- |
| バス・トイレ |
オートバス、追焚機能、シャワー付洗面化粧台、温水洗浄便座、トイレ2ヶ所 |
| キッチン |
システムキッチン、3口以上コンロ |
| 設備・サービス |
全居室収納、クローゼット、床下収納、モニター付インターホン、全居室フローリング、上水道、下水道、都市ガス |
| その他 |
- |
| 現況 |
完成済 |
引渡可能時期 |
相談 |
| 物件番号 |
1069930198 |
|
|
| 情報公開日 |
2025年12月8日 |
次回更新予定日 |
2025年12月22日 |
| ケータイ用バーコード |
- スマートフォンでこの物件を見る
- スマートフォンからもこの物件をご覧になれます。
|
※「-」と表示されている項目については、情報提供会社にご確認ください。
| 周辺施設 |
市川市立南行徳小学校 |
| 距離 |
1249m |
写真を見る |
| 周辺施設 |
市川市立福栄中学校 |
| 距離 |
626m |
写真を見る |
ここから簡単にお問い合わせをすることができます。
(SSLでの暗号化での送信を希望されるお客さまは
こちら
よりお問い合わせください)
お問い合わせを行う前に
「個人情報の取り扱いについて」を必ずお読みください。
「個人情報の取り扱いについて」に同意いただいた場合は「上記にご同意の上 確認画面へ進む」のボタンをクリックしてください。
個人情報の取り扱いについて
皆さまが送付された個人情報はアットホーム(株)のサーバを経由し、お問い合わせ先の不動産会社にメールまたはFAXにて転送されるためアットホーム(株)にも保管されます。アットホーム(株)で保管された個人情報の取り扱いについては、【こちら】をご覧ください。
また、本画面でご記入いただいた個人情報は、お問い合わせ先の不動産会社でも保管します。 お問い合わせ先の不動産会社が保管する個人情報の取り扱いについては、不動産会社に直接お問い合わせください。
千葉県知事免許(4)第15315号 |
|---|
- 交通:
- JR総武線/西船橋駅 徒歩4分
- 千葉県船橋市西船5丁目26-21
- TEL:
- 047-302-2221
- FAX:
- 047-302-2225
- 所属団体:
- (公社)全日本不動産協会会員(公社)首都圏不動産公正取引協議会加盟
取引態様:媒介  - 00017580
|
- スマートフォンで
この不動産会社を見る

|
- 提携サイト等より掲載されている物件情報につきましては、不動産会社詳細情報にリンクされていないものがあります。
- 物件に関するお問合せは、物件詳細ページの「情報提供会社」に表示されている不動産会社へ直接お願いいたします。
- 間取図は、現況を優先させていただきます。
- 映像は物件の一部を撮影したものです。物件の契約にあたっての最終判断はご自身の判断に基づいて行ってください。
- 仲介手数料について

アットホームは物件情報の適正化に努めております。
内容に誤りがある場合にはこちらへご連絡ください。