東京都渋谷区恵比寿西2丁目(代官山駅)の一戸建て:物件詳細
交通 所在地 |
駅徒歩 |
価格 |
間取り 建物面積 |
土地面積 私道負担面積 |
物件種目 築年月 |
|
東急東横線/代官山
東京都渋谷区恵比寿西2丁目
|
3分
|
25,000万円
|
3LDK
109.86m²
|
65.08m²
なし
|
中古一戸建て
2020年11月(築5年7ヶ月)
|
|
全室2面採光、2面採光、24時間換気システム、閑静な住宅街、整形地
|
|
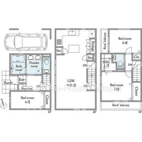
間取図
3LDK+WIC+車庫LDKも20以上取れておりますので、広々とした空間設計でございます。
|
外観
角地また、前面道路も周辺にお住いの方々しか通りませんので、閑静な雰囲気でございます。
|
<
その他の画像
>
|
| 交通 | 東急東横線 代官山駅 徒歩3分 |
|---|
| その他の交通 | JR山手線 恵比寿駅 徒歩7分 東京メトロ日比谷線 恵比寿駅 徒歩6分 |
| 所在地 |
東京都渋谷区恵比寿西2丁目
|
| 物件種目 |
中古一戸建て |
| 価格 |
25,000万円 |
借地期間・地代(月額) |
2041年7月1日まで 44,827円 |
| 権利金 |
- |
敷金または保証金 |
- / - |
| 維持費等 |
- |
その他一時金 |
- |
| 間取り |
3LDK |
建物面積 |
109.86m² |
| 土地権利 |
旧法賃借権 |
建物構造 |
木造 |
| 土地面積 |
65.08m²(実測) |
私道負担面積 |
なし |
| 築年月 |
2020年11月(築5年7ヶ月)
|
都市計画 |
市街化区域 |
| 建物名 |
品格の漂う街とデザイン 恵比寿西2丁目 |
建築確認番号 |
- |
| 用途地域 |
2種中高 |
駐車場 |
有 無料 |
| 建ぺい率 |
60% |
容積率 |
160% |
| 階建 |
3階建 |
接道状況 |
北西 4.0m 公道
・ 南西 4.0m 公道
・ 二方道路
|
| 地目 |
宅地 |
地勢 |
高台 |
| 国土法届出 |
- |
セットバック |
- |
| アピールポイント |
ー代官山駅から徒歩3分、恵比寿西2丁目 築浅物件ー
【POINT】
◆南西角地のため、陽当たりが良好!!
◆代官山駅から徒歩3分のため、周辺環境が充実!!
◆セキュリティが充実!!
カメラ、ボタンによる施錠が可能
◆車庫スペース 有り
◆室内仕様が充実でございます。
ライト、2重窓、浴室テレビ付き、キッチンにアイランドカウンター |
| リフォーム履歴 |
- |
| リノベーション履歴 |
- |
| 瑕疵保証 |
- |
| 瑕疵保険 |
- |
| 評価・証明書 |
- |
| 備考 |
総戸数:1戸
|
| エネルギー消費性能 |
- |
| 断熱性能 |
- |
| 目安光熱費 |
- |
| バス・トイレ |
TV付浴室、サウナ、浴室乾燥機、追焚機能、温水洗浄便座、トイレ2ヶ所、浴室に窓あり |
| キッチン |
アイランドキッチン、システムキッチン、食器洗浄乾燥機、浄水器、3口以上コンロ |
| 設備・サービス |
全居室収納、ウォークインクローゼット、床下収納、モニター付インターホン、防犯カメラ、全居室フローリング、室内物干し、上水道、下水道、都市ガス、電気、ダウンライト、照明器具、火災警報器(報知機) |
| その他 |
- |
| 現況 |
所有者居住中 |
引渡可能時期 |
相談 |
| 物件番号 |
1077761594 |
|
|
| 情報公開日 |
2026年2月20日 |
次回更新予定日 |
2026年5月7日 |
| ケータイ用バーコード |
- スマートフォンでこの物件を見る
- スマートフォンからもこの物件をご覧になれます。
|
※「-」と表示されている項目については、情報提供会社にご確認ください。
| 周辺施設 |
臨川小学校 |
| 距離 |
1292m |
写真を見る |
| 周辺施設 |
ライフ 渋谷東店 |
| 距離 |
559m |
写真を見る |
| 周辺施設 |
渋谷ストリーム |
| 距離 |
741m |
写真を見る |
| 周辺施設 |
渋谷ストリーム |
| 距離 |
741m |
写真を見る |
ここから簡単にお問い合わせをすることができます。
(SSLでの暗号化での送信を希望されるお客さまは
こちら
よりお問い合わせください)
お問い合わせを行う前に
「個人情報の取り扱いについて」を必ずお読みください。
「個人情報の取り扱いについて」に同意いただいた場合は「上記にご同意の上 確認画面へ進む」のボタンをクリックしてください。
個人情報の取り扱いについて
皆さまが送付された個人情報はアットホーム(株)のサーバを経由し、お問い合わせ先の不動産会社にメールまたはFAXにて転送されるためアットホーム(株)にも保管されます。アットホーム(株)で保管された個人情報の取り扱いについては、【こちら】をご覧ください。
また、本画面でご記入いただいた個人情報は、お問い合わせ先の不動産会社でも保管します。 お問い合わせ先の不動産会社が保管する個人情報の取り扱いについては、不動産会社に直接お問い合わせください。
国土交通大臣免許(4)第7450号 |
|---|
- 交通:
- 東急田園都市線/桜新町駅 徒歩1分
- 東京都世田谷区桜新町1丁目12-13
- TEL:
- 03-3420-3311
- FAX:
- 03-3420-9024
- 所属団体:
- (公社)東京都宅地建物取引業協会会員不動産公正取引協議会加盟
取引態様:一般媒介  - 00620271
|
- スマートフォンで
この不動産会社を見る

|
- 提携サイト等より掲載されている物件情報につきましては、不動産会社詳細情報にリンクされていないものがあります。
- 物件に関するお問合せは、物件詳細ページの「情報提供会社」に表示されている不動産会社へ直接お願いいたします。
- 間取図は、現況を優先させていただきます。
- 映像は物件の一部を撮影したものです。物件の契約にあたっての最終判断はご自身の判断に基づいて行ってください。
- 仲介手数料について

アットホームは物件情報の適正化に努めております。
内容に誤りがある場合にはこちらへご連絡ください。