東京都世田谷区奥沢5丁目(奥沢駅)の一戸建て:物件詳細
交通 所在地 |
駅徒歩 |
価格 |
間取り 建物面積 |
土地面積 私道負担面積 |
物件種目 築年月 |
|
東急目黒線/奥沢
東京都世田谷区奥沢5丁目
|
6分
|
13,680万円
|
1SLDK
118.59m²
|
107.88m²
なし
|
中古一戸建て
2024年9月(築1年4ヶ月)
|
|
天井高2.5M以上、24時間換気システム、吹抜、閑静な住宅街、整形地、設計住宅性能評価書あり、建設住宅性能評価書あり
|
|
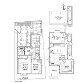
間取図
建物面積:118.59㎡(約35.87坪)
|
キッチン
長期優良住宅対応邸宅
|
<
その他の画像
>
|
| 交通 | 東急目黒線 奥沢駅 徒歩6分 |
|---|
| その他の交通 | 東急東横線 自由が丘駅 徒歩8分 東急東横線 田園調布駅 徒歩11分 |
| 所在地 |
東京都世田谷区奥沢5丁目
|
| 物件種目 |
中古一戸建て |
| 価格 |
13,680万円 |
借地期間・地代(月額) |
20年 45,972円 |
| 権利金 |
- |
敷金または保証金 |
- / - |
| 維持費等 |
- |
その他一時金 |
- |
| 間取り |
1SLDK |
建物面積 |
118.59m² |
| 土地権利 |
旧法賃借権 |
建物構造 |
木造 |
| 土地面積 |
107.88m²(実測) |
私道負担面積 |
なし |
| 築年月 |
2024年9月(築1年4ヶ月)
|
都市計画 |
市街化区域 |
| 建物名 |
現地販売会開催中奥沢5丁目 戸建 |
建築確認番号 |
- |
| 用途地域 |
1種低層 |
駐車場 |
有 無料 |
| 建ぺい率 |
50% |
容積率 |
100% |
| 階建 |
2階建 |
接道状況 |
北 3.7m 私道 接面6.8m
|
| 地目 |
宅地 |
地勢 |
- |
| 国土法届出 |
- |
セットバック |
- |
| アピールポイント |
【奥沢5丁目 借地権付戸建】
〇東急目黒線「奥沢」駅 徒歩6分
東急東横線・大井町線「自由が丘」駅 徒歩8分
東急東横線・目黒線・多摩川線「田園調布」駅 徒歩11分
〇借地面積:107.88㎡(約32.63坪)
〇延床面積:118.59㎡(約35.87坪)
※車庫面積・備蓄倉庫面積等16.07㎡含む。
〇間取り:1LDK+2S+ビルトインガレージ1台
+ルーフバルコニー(8.76帖)
〇旧法借地権(新規20年)・地代45,972円/月
〇2024年(令和6年)9月築
〇前面道路:北側 約3.7m~4.0m 私道
〇SECOM標準装備
〇ガス温水式床暖房システム(LD部分)
〇窓の断熱性能(Low-E複層ガラス)
〇オール浄水システム採用
〇設計性能評価書・建設性能評価書 有
〇建物初期保証20年・住宅設備機器保証10年
※細則有 |
| リフォーム履歴 |
- |
| リノベーション履歴 |
- |
| 瑕疵保証 |
- |
| 瑕疵保険 |
- |
| 評価・証明書 |
- |
| 備考 |
-
|
| エネルギー消費性能 |
- |
| 断熱性能 |
- |
| 目安光熱費 |
- |
| バス・トイレ |
浴室乾燥機、オートバス、追焚機能、温水洗浄便座、トイレ2ヶ所、浴室に窓あり |
| キッチン |
カウンターキッチン、システムキッチン、食器洗浄乾燥機、浄水器、3口以上コンロ |
| 設備・サービス |
全居室収納、EV車充電設備、床暖房、クローゼット、モニター付インターホン、電動シャッター、全居室フローリング、上水道、下水道、都市ガス、電気、ルーフバルコニー、火災警報器(報知機)、複層ガラス |
| その他 |
- |
| 現況 |
空家 |
引渡可能時期 |
相談 |
| 物件番号 |
1077862494 |
|
|
| 情報公開日 |
2025年11月28日 |
次回更新予定日 |
2025年12月26日 |
| ケータイ用バーコード |
- スマートフォンでこの物件を見る
- スマートフォンからもこの物件をご覧になれます。
|
※「-」と表示されている項目については、情報提供会社にご確認ください。
| 周辺施設 |
奥沢二丁目公園 |
| 距離 |
900m |
写真を見る |
| 周辺施設 |
自由が丘駅 南口 |
| 距離 |
640m |
写真を見る |
| 周辺施設 |
九品仏川緑道 |
| 距離 |
250m |
写真を見る |
| 周辺施設 |
八幡中学校 |
| 距離 |
1200m |
写真を見る |
ここから簡単にお問い合わせをすることができます。
(SSLでの暗号化での送信を希望されるお客さまは
こちら
よりお問い合わせください)
お問い合わせを行う前に
「個人情報の取り扱いについて」を必ずお読みください。
「個人情報の取り扱いについて」に同意いただいた場合は「上記にご同意の上 確認画面へ進む」のボタンをクリックしてください。
個人情報の取り扱いについて
皆さまが送付された個人情報はアットホーム(株)のサーバを経由し、お問い合わせ先の不動産会社にメールまたはFAXにて転送されるためアットホーム(株)にも保管されます。アットホーム(株)で保管された個人情報の取り扱いについては、【こちら】をご覧ください。
また、本画面でご記入いただいた個人情報は、お問い合わせ先の不動産会社でも保管します。 お問い合わせ先の不動産会社が保管する個人情報の取り扱いについては、不動産会社に直接お問い合わせください。
国土交通大臣免許(4)第7450号 |
|---|
- 交通:
- 東急田園都市線/桜新町駅 徒歩1分
- 東京都世田谷区桜新町1丁目12-13
- TEL:
- 03-3420-3311
- FAX:
- 03-3420-9024
- 所属団体:
- (公社)東京都宅地建物取引業協会会員不動産公正取引協議会加盟
取引態様:媒介  - 00620271
|
- スマートフォンで
この不動産会社を見る

|
- 提携サイト等より掲載されている物件情報につきましては、不動産会社詳細情報にリンクされていないものがあります。
- 物件に関するお問合せは、物件詳細ページの「情報提供会社」に表示されている不動産会社へ直接お願いいたします。
- 間取図は、現況を優先させていただきます。
- 映像は物件の一部を撮影したものです。物件の契約にあたっての最終判断はご自身の判断に基づいて行ってください。
- 仲介手数料について

アットホームは物件情報の適正化に努めております。
内容に誤りがある場合にはこちらへご連絡ください。