静岡県富士市鈴川西町(吉原駅)の一戸建て:物件詳細
交通 所在地 |
駅徒歩 |
価格 |
間取り 建物面積 |
土地面積 私道負担面積 |
物件種目 築年月 |
|
東海道本線/吉原
静岡県富士市鈴川西町
|
17分
|
3,300万円
|
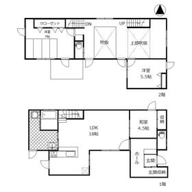
3SLDK
139.00m²
|
199.99m²
なし
|
中古一戸建て
2023年1月(築3年3ヶ月)
|
|
駐車場3台分以上、吹抜、オール電化
|
|
間取図
|
外観
|
<
その他の画像
>
|
| 交通 | 東海道本線 吉原駅 徒歩17分 |
|---|
| その他の交通 | 岳南電車 吉原駅 徒歩17分 |
| 所在地 |
静岡県富士市鈴川西町
|
| 物件種目 |
中古一戸建て |
| 価格 |
3,300万円 |
借地期間・地代(月額) |
20年 21,700円 |
| 権利金 |
- |
敷金または保証金 |
- / - |
| 維持費等 |
- |
その他一時金 |
なし |
| 間取り |
3SLDK(LDK18洋室4.5洋室7洋室5.5) |
建物面積 |
139.00m² |
| 土地権利 |
普通賃借権 |
建物構造 |
木造 |
| 土地面積 |
199.99m²(公簿) |
私道負担面積 |
なし |
| 築年月 |
2023年1月(築3年3ヶ月)
|
都市計画 |
市街化区域 |
| 建物名 |
鈴川西町中古住宅 |
建築確認番号 |
- |
| 用途地域 |
1種住居 |
駐車場 |
有 |
| 建ぺい率 |
60% |
容積率 |
200% |
| 階建 |
2階建 |
接道状況 |
北 4.0m 公道 接面9.1m
|
| 地目 |
宅地 |
地勢 |
- |
| 国土法届出 |
- |
セットバック |
- |
| アピールポイント |
中庭テラス、小屋根裏収納、吹抜けのあるデザイナーズハウス!築2年のオール電化住宅です!
|
| リフォーム履歴 |
- |
| リノベーション履歴 |
- |
| 瑕疵保証 |
- |
| 瑕疵保険 |
- |
| 評価・証明書 |
- |
| 備考 |
主要採光面:東向き
※詳細はお問い合わせください。※主要採光面:東向き ※地代21,700円/年は年払いです。
|
| エネルギー消費性能 |
- |
| 断熱性能 |
- |
| 目安光熱費 |
- |
| バス・トイレ |
浴室乾燥機、オートバス、追焚機能、トイレ2ヶ所 |
| キッチン |
システムキッチン、浄水器、IHクッキングヒーター |
| 設備・サービス |
クローゼット、シャッター雨戸、上水道、下水道、エアコン、複層ガラス |
| その他 |
- |
| 現況 |
所有者居住中 |
引渡可能時期 |
相談 |
| 物件番号 |
1081414189 |
|
|
| 情報公開日 |
2024年9月28日 |
次回更新予定日 |
2026年4月9日 |
| ケータイ用バーコード |
- スマートフォンでこの物件を見る
- スマートフォンからもこの物件をご覧になれます。
|
※「-」と表示されている項目については、情報提供会社にご確認ください。
| 周辺施設 |
元吉原中学校 |
| 距離 |
230m |
写真を見る |
| 周辺施設 |
元吉原小学校 |
| 距離 |
1440m |
写真を見る |
| 周辺施設 |
ローソン 富士依田橋店 |
| 距離 |
1535m |
写真を見る |
ここから簡単にお問い合わせをすることができます。
(SSLでの暗号化での送信を希望されるお客さまは
こちら
よりお問い合わせください)
お問い合わせを行う前に
「個人情報の取り扱いについて」を必ずお読みください。
「個人情報の取り扱いについて」に同意いただいた場合は「上記にご同意の上 確認画面へ進む」のボタンをクリックしてください。
個人情報の取り扱いについて
皆さまが送付された個人情報はアットホーム(株)のサーバを経由し、お問い合わせ先の不動産会社にメールまたはFAXにて転送されるためアットホーム(株)にも保管されます。アットホーム(株)で保管された個人情報の取り扱いについては、【こちら】をご覧ください。
また、本画面でご記入いただいた個人情報は、お問い合わせ先の不動産会社でも保管します。 お問い合わせ先の不動産会社が保管する個人情報の取り扱いについては、不動産会社に直接お問い合わせください。
静岡県知事免許(9)第6734号 |
|---|
- 交通:
- 東海道新幹線/新富士駅
- 静岡県富士市津田町94-1
- TEL:
- 0120-141-018
- FAX:
- 0545-53-8810
- 所属団体:
- (公社)静岡県宅地建物取引業協会会員東海不動産公正取引協議会加盟
取引態様:一般媒介  - 99000494
|
- スマートフォンで
この不動産会社を見る

|
- 提携サイト等より掲載されている物件情報につきましては、不動産会社詳細情報にリンクされていないものがあります。
- 物件に関するお問合せは、物件詳細ページの「情報提供会社」に表示されている不動産会社へ直接お願いいたします。
- 間取図は、現況を優先させていただきます。
- 映像は物件の一部を撮影したものです。物件の契約にあたっての最終判断はご自身の判断に基づいて行ってください。
- 仲介手数料について

アットホームは物件情報の適正化に努めております。
内容に誤りがある場合にはこちらへご連絡ください。