神奈川県厚木市上落合(愛甲石田駅)の一戸建て:物件詳細
交通 所在地 |
駅徒歩 |
価格 |
間取り 建物面積 |
土地面積 私道負担面積 |
物件種目 築年月 |
|
小田急小田原線/愛甲石田
神奈川県厚木市上落合
|
16分
|
1,890万円
|
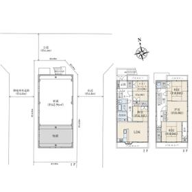
5LDK
183.42m²
|
114.80m²
有 36.00m²
|
中古一戸建て
1991年5月(築34年11ヶ月)
|
|
|
<
その他の画像
>
|
| 交通 | 小田急小田原線 愛甲石田駅 徒歩16分 |
| 所在地 |
神奈川県厚木市上落合
|
| 物件種目 |
中古一戸建て |
| 価格 |
1,890万円 |
借地期間・地代(月額) |
- |
| 権利金 |
- |
敷金または保証金 |
- / - |
| 維持費等 |
- |
その他一時金 |
- |
| 間取り |
5LDK |
建物面積 |
183.42m² |
| 土地権利 |
所有権 |
建物構造 |
鉄骨造 |
| 土地面積 |
114.80m²(公簿) |
私道負担面積 |
有 36.00m² |
| 築年月 |
1991年5月(築34年11ヶ月)
|
都市計画 |
市街化区域 |
| 建物名 |
|
建築確認番号 |
- |
| 用途地域 |
1種中高 |
駐車場 |
有 |
| 建ぺい率 |
60% |
容積率 |
200% |
| 階建 |
3階建 |
接道状況 |
北 4.4m 公道
・ 東 4.2m
・ 二方道路
|
| 地目 |
宅地 |
地勢 |
- |
| 国土法届出 |
- |
セットバック |
- |
| アピールポイント |
■三方向が道路の為解放感があり、通風良好です。
■南向き 5LDK
■1階車庫は最大3台駐車可能(車種による・高さ制限有)
■厚木インターチェンジ至近
■小学校区:戸田小学校 中学校:相川中学校 |
| リフォーム履歴 |
- |
| リノベーション履歴 |
- |
| 瑕疵保証 |
- |
| 瑕疵保険 |
- |
| 評価・証明書 |
- |
| 備考 |
■建物契約不適合責任免責■容積率は、前面道路幅員により制限されます。(幅員×4/10×100%)
|
| エネルギー消費性能 |
- |
| 断熱性能 |
- |
| 目安光熱費 |
- |
| バス・トイレ |
- |
| キッチン |
- |
| 設備・サービス |
- |
| その他 |
- |
| 現況 |
空家 |
引渡可能時期 |
相談 |
| 物件番号 |
1086768276 |
|
|
| 情報公開日 |
2026年2月22日 |
次回更新予定日 |
2026年4月8日 |
| ケータイ用バーコード |
- スマートフォンでこの物件を見る
- スマートフォンからもこの物件をご覧になれます。
|
※「-」と表示されている項目については、情報提供会社にご確認ください。
ここから簡単にお問い合わせをすることができます。
(SSLでの暗号化での送信を希望されるお客さまは
こちら
よりお問い合わせください)
お問い合わせを行う前に
「個人情報の取り扱いについて」を必ずお読みください。
「個人情報の取り扱いについて」に同意いただいた場合は「上記にご同意の上 確認画面へ進む」のボタンをクリックしてください。
個人情報の取り扱いについて
皆さまが送付された個人情報はアットホーム(株)のサーバを経由し、お問い合わせ先の不動産会社にメールまたはFAXにて転送されるためアットホーム(株)にも保管されます。アットホーム(株)で保管された個人情報の取り扱いについては、【こちら】をご覧ください。
また、本画面でご記入いただいた個人情報は、お問い合わせ先の不動産会社でも保管します。 お問い合わせ先の不動産会社が保管する個人情報の取り扱いについては、不動産会社に直接お問い合わせください。
国土交通大臣免許(12)第2885号 |
|---|
- 交通:
- 小田急小田原線/町田駅 徒歩1分
- 東京都町田市中町1丁目1-16 東京建物町田ビル5F
- TEL:
- 042-721-1009
- FAX:
- 042-725-5030
- 所属団体:
- (一社)不動産流通経営協会会員(公社)首都圏不動産公正取引協議会加盟
取引態様:専任媒介  - 00782421
|
- スマートフォンで
この不動産会社を見る

|
- 提携サイト等より掲載されている物件情報につきましては、不動産会社詳細情報にリンクされていないものがあります。
- 物件に関するお問合せは、物件詳細ページの「情報提供会社」に表示されている不動産会社へ直接お願いいたします。
- 間取図は、現況を優先させていただきます。
- 映像は物件の一部を撮影したものです。物件の契約にあたっての最終判断はご自身の判断に基づいて行ってください。
- 仲介手数料について

アットホームは物件情報の適正化に努めております。
内容に誤りがある場合にはこちらへご連絡ください。