静岡県富士宮市安居山(西富士宮駅)の一戸建て:物件詳細
交通 所在地 |
駅徒歩 |
価格 |
間取り 建物面積 |
土地面積 私道負担面積 |
物件種目 築年月 |
|
身延線/西富士宮
静岡県富士宮市安居山
|
32分
|
1,420万円
|
5LDK
144.49m²
|
264.46m²
なし
|
中古一戸建て
1999年8月(築26年5ヶ月)
|
|
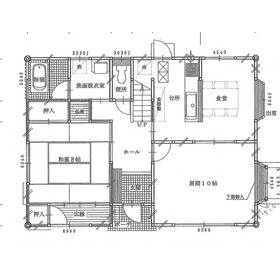
間取図
1階間取り
|
間取図
2階間取り
|
その他の画像
|
| 交通 | 身延線 西富士宮駅 徒歩32分 |
|---|
| その他の交通 | 身延線 沼久保駅 徒歩24分 |
| 所在地 |
静岡県富士宮市安居山
|
| 物件種目 |
中古一戸建て |
| 価格 |
1,420万円 |
借地期間・地代(月額) |
- |
| 権利金 |
- |
敷金または保証金 |
- / - |
| 維持費等 |
- |
その他一時金 |
- |
| 間取り |
5LDK |
建物面積 |
144.49m² |
| 土地権利 |
所有権 |
建物構造 |
木造 |
| 土地面積 |
264.46m²(公簿) |
私道負担面積 |
なし |
| 築年月 |
1999年8月(築26年5ヶ月)
|
都市計画 |
市街化区域 |
| 建物名 |
安居山中古住宅 |
建築確認番号 |
- |
| 用途地域 |
1種中高 |
駐車場 |
有 |
| 建ぺい率 |
60% |
容積率 |
150% |
| 階建 |
2階建 |
接道状況 |
北 4.0m 私道 位置指定有 接面5.3m
|
| 地目 |
宅地 |
地勢 |
雛段 |
| 国土法届出 |
- |
セットバック |
- |
| リフォーム履歴 |
- |
| リノベーション履歴 |
- |
| 瑕疵保証 |
- |
| 瑕疵保険 |
- |
| 評価・証明書 |
- |
| 備考 |
-
|
| エネルギー消費性能 |
- |
| 断熱性能 |
- |
| 目安光熱費 |
- |
| バス・トイレ |
- |
| キッチン |
- |
| 設備・サービス |
浄化槽、上水道、電気 |
| その他 |
- |
| 現況 |
所有者居住中 |
引渡可能時期 |
相談 |
| 物件番号 |
1088278174 |
|
|
| 情報公開日 |
2025年11月6日 |
次回更新予定日 |
2025年12月18日 |
| ケータイ用バーコード |
- スマートフォンでこの物件を見る
- スマートフォンからもこの物件をご覧になれます。
|
※「-」と表示されている項目については、情報提供会社にご確認ください。
| 周辺施設 |
静岡県富士宮市立西小学校 |
| 距離 |
459m |
写真を見る |
| 周辺施設 |
富士宮市立富士宮第三中学校 |
| 距離 |
1895m |
写真を見る |
| 周辺施設 |
ファミリーマート 富士宮あごやま店 |
| 距離 |
1023m |
写真を見る |
| 周辺施設 |
ポテト野中店 |
| 距離 |
2635m |
写真を見る |
ここから簡単にお問い合わせをすることができます。
(SSLでの暗号化での送信を希望されるお客さまは
こちら
よりお問い合わせください)
お問い合わせを行う前に
「個人情報の取り扱いについて」を必ずお読みください。
「個人情報の取り扱いについて」に同意いただいた場合は「上記にご同意の上 確認画面へ進む」のボタンをクリックしてください。
個人情報の取り扱いについて
皆さまが送付された個人情報はアットホーム(株)のサーバを経由し、お問い合わせ先の不動産会社にメールまたはFAXにて転送されるためアットホーム(株)にも保管されます。アットホーム(株)で保管された個人情報の取り扱いについては、【こちら】をご覧ください。
また、本画面でご記入いただいた個人情報は、お問い合わせ先の不動産会社でも保管します。 お問い合わせ先の不動産会社が保管する個人情報の取り扱いについては、不動産会社に直接お問い合わせください。
静岡県知事免許(9)第7048号 |
|---|
- 交通:
- 身延線/富士宮駅
- 静岡県富士宮市城北町547
- TEL:
- 0544-66-9161
- FAX:
- 0544-66-9162
- 所属団体:
- (公社)静岡県宅地建物取引業協会会員東海不動産公正取引協議会加盟
取引態様:一般媒介  - 40412633
|
- スマートフォンで
この不動産会社を見る

|
- 提携サイト等より掲載されている物件情報につきましては、不動産会社詳細情報にリンクされていないものがあります。
- 物件に関するお問合せは、物件詳細ページの「情報提供会社」に表示されている不動産会社へ直接お願いいたします。
- 間取図は、現況を優先させていただきます。
- 映像は物件の一部を撮影したものです。物件の契約にあたっての最終判断はご自身の判断に基づいて行ってください。
- 仲介手数料について

アットホームは物件情報の適正化に努めております。
内容に誤りがある場合にはこちらへご連絡ください。