東京都江東区大島3丁目(西大島駅)の一戸建て:物件詳細
交通 所在地 |
駅徒歩 |
価格 |
間取り 建物面積 |
土地面積 私道負担面積 |
物件種目 築年月 |
|
都営新宿線/西大島
東京都江東区大島3丁目
|
5分
|
3,180万円
|
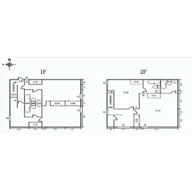
4K
57.00m²
|
49.71m²
なし
|
中古一戸建て
1970年1月(築56年5ヶ月)
|
| 交通 | 都営新宿線 西大島駅 徒歩5分 |
|---|
| その他の交通 | 都営新宿線 大島駅 徒歩11分 JR総武線 亀戸駅 徒歩15分 |
| 所在地 |
東京都江東区大島3丁目
|
| 物件種目 |
中古一戸建て |
| 価格 |
3,180万円 |
借地期間・地代(月額) |
- |
| 権利金 |
- |
敷金または保証金 |
- / - |
| 維持費等 |
- |
その他一時金 |
なし |
| 間取り |
4K |
建物面積 |
57.00m² |
| 土地権利 |
所有権 |
建物構造 |
木造 |
| 土地面積 |
49.71m²(公簿) |
私道負担面積 |
なし |
| 築年月 |
1970年1月(築56年5ヶ月)
|
都市計画 |
- |
| 建物名 |
江東区大島3丁目 中古一戸建て |
建築確認番号 |
- |
| 用途地域 |
準工業 |
駐車場 |
無 |
| 建ぺい率 |
60% |
容積率 |
300% |
| 階建 |
2階建 |
接道状況 |
-
|
| 地目 |
宅地 |
地勢 |
- |
| 国土法届出 |
- |
セットバック |
- |
| アピールポイント |
■再建築不可
■西大島駅徒歩4分、複数路線・駅利用可能
■空室
■4K(1K×4室)
■2025年内装リフォーム歴あり
◎ 現地集合・現地解散OK・お忙しい方もお気軽にご見学いただけます。
◎ 購入で失敗しないためのポイントは、
YouTubeチャンネル[スガ社長の不動産取引成功の極意]で解説中(※売却価格・将来性を重視した解説が好評です)
|
| リフォーム履歴 |
- |
| リノベーション履歴 |
- |
| 瑕疵保証 |
- |
| 瑕疵保険 |
- |
| 評価・証明書 |
- |
| 備考 |
再建築不可
建築不可 / 再建築不可、■西大島駅徒歩4分
■空室
■4K(1K×4室)
■2025年内装リフォーム歴あり
◎ 現地集合・現地解散OK・お忙しい方もお気軽にご見学いただけます。
◎ 購入で失敗しないためのポイントは、
YouTubeチャンネル[スガ社長の不動産取引成功の極意]で解説中(※売却価格・将来性を重視した解説が好評です)
|
| エネルギー消費性能 |
- |
| 断熱性能 |
- |
| 目安光熱費 |
- |
| バス・トイレ |
- |
| キッチン |
- |
| 設備・サービス |
- |
| その他 |
- |
| 現況 |
空家 |
引渡可能時期 |
相談 |
| 物件番号 |
1101947414 |
|
|
| 情報公開日 |
2026年2月23日 |
次回更新予定日 |
2026年5月19日 |
| ケータイ用バーコード |
- スマートフォンでこの物件を見る
- スマートフォンからもこの物件をご覧になれます。
|
※「-」と表示されている項目については、情報提供会社にご確認ください。
ここから簡単にお問い合わせをすることができます。
(SSLでの暗号化での送信を希望されるお客さまは
こちら
よりお問い合わせください)
お問い合わせを行う前に
「個人情報の取り扱いについて」を必ずお読みください。
「個人情報の取り扱いについて」に同意いただいた場合は「上記にご同意の上 確認画面へ進む」のボタンをクリックしてください。
個人情報の取り扱いについて
皆さまが送付された個人情報はアットホーム(株)のサーバを経由し、お問い合わせ先の不動産会社にメールまたはFAXにて転送されるためアットホーム(株)にも保管されます。アットホーム(株)で保管された個人情報の取り扱いについては、【こちら】をご覧ください。
また、本画面でご記入いただいた個人情報は、お問い合わせ先の不動産会社でも保管します。 お問い合わせ先の不動産会社が保管する個人情報の取り扱いについては、不動産会社に直接お問い合わせください。
東京都知事免許(8)第63809号 |
|---|
- 交通:
- JR山手線/日暮里駅
- 東京都荒川区西日暮里2丁目39-7 GSハイム日暮里101
- TEL:
- 03-3803-5377
- FAX:
- 03-3803-5088
- 所属団体:
- (公社)東京都宅地建物取引業協会会員(公社)首都圏不動産公正取引協議会加盟
取引態様:媒介  - 99000391
|
- スマートフォンで
この不動産会社を見る

|
- 提携サイト等より掲載されている物件情報につきましては、不動産会社詳細情報にリンクされていないものがあります。
- 物件に関するお問合せは、物件詳細ページの「情報提供会社」に表示されている不動産会社へ直接お願いいたします。
- 間取図は、現況を優先させていただきます。
- 映像は物件の一部を撮影したものです。物件の契約にあたっての最終判断はご自身の判断に基づいて行ってください。
- 仲介手数料について

アットホームは物件情報の適正化に努めております。
内容に誤りがある場合にはこちらへご連絡ください。