岐阜県岐阜市桜木町1丁目(岐阜駅)の一戸建て:物件詳細
交通 所在地 |
駅徒歩 |
価格 |
間取り 建物面積 |
土地面積 私道負担面積 |
物件種目 築年月 |
|
東海道本線/岐阜
岐阜県岐阜市桜木町1丁目
|
23分
|
3,280万円
|
4LDK
105.58m²
|
132.25m²
なし
|
新築一戸建て
2026年5月
|
|
駐車場2台分、外壁サイディング、バス1坪以上、長期優良住宅(耐震、省エネ性等高い)
|
|
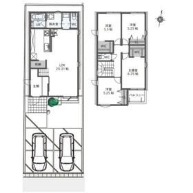
間取図
ファミリー層にピッタリな4LDKの間取。
|
外観
上棟しました。完成は5月頃の予定です。
|
<
その他の画像
>
|
| 交通 | 東海道本線 岐阜駅 徒歩23分 |
| 所在地 |
岐阜県岐阜市桜木町1丁目
|
| 物件種目 |
新築一戸建て |
| 価格 |
3,280万円 |
借地期間・地代(月額) |
- |
| 権利金 |
- |
敷金または保証金 |
- / - |
| 維持費等 |
- |
その他一時金 |
なし |
| 間取り |
4LDK |
建物面積 |
105.58m² |
| 土地権利 |
所有権 |
建物構造 |
木造 |
| 土地面積 |
132.25m²(公簿) |
私道負担面積 |
なし |
| 築年月 |
2026年5月
|
都市計画 |
市街化区域 |
| 建物名 |
岐阜市桜木町1丁目 A棟 |
建築確認番号 |
第KS125-0420-60333号 |
| 用途地域 |
2種住居 |
駐車場 |
有 |
| 建ぺい率 |
60% |
容積率 |
200% |
| 階建 |
2階建 |
接道状況 |
南 3.9m 公道
|
| 地目 |
宅地 |
地勢 |
平坦 |
| 国土法届出 |
- |
セットバック |
- |
| アピールポイント |
<無料相談のオススメとご案内>
人生で一番高いお買い物とよく言われる、不動産のご購入。
様々な不安やわからないことも数多くあるかと思います。
弊社はそんなお悩みに寄り添い、専門用語を多用せずに、できるだけ
分かりやすい言葉でご説明するよう心がけさせていただいております。
また、お気軽にご相談いただけるよう個室をご用意させていただいて
おります。
お忙しくてご来店が難しいお客様につきましては、弊社担当者がご自
宅までおうかがいいたします。
以下によくあるご相談内容の一部をご紹介いたします。
・どんなポイントに気を付けて物件を探したらいいのかがわからない。
・頭金が無く諸費用を含めた全額の借入を希望している。
・オプション費用や家具・家電の購入費用などもローンに入れたい。
・車のローンや月々の支払いなどがあっても銀行の審査に通るか心配。
・自営業で創業年数が浅くてもローンを組みたい。
・雇用形態に関わらずお勧めの金融機関があれば教えて欲しい。
・住宅購入にあたって最新の支援策などのお得情報が知りたい。
お電話・メール等でのご相談も承りますので、まずはお気軽にお問合せ
くださいませ。 |
| リフォーム履歴 |
- |
| リノベーション履歴 |
- |
| 瑕疵保証 |
- |
| 瑕疵保険 |
- |
| 評価・証明書 |
■長期優良住宅認定通知書 長期優良住宅認定通知書あり |
| 備考 |
工事完了予定日:2026年5月
建築確認完了検査済証あり
・長期優良認定住宅で吹付ウレタン断熱や遮熱シートなども採用されています。
・南向きで陽当たり良好な20.31帖のリビング、天井高も2.7mあり開放的です。
・小学校やスーパーまでは徒歩約8分以内の立地!!、景観法、河川法、宅地造成工事規制区域、法22条区域
|
| エネルギー消費性能 |
- |
| 断熱性能 |
- |
| 目安光熱費 |
- |
| バス・トイレ |
追焚機能、シャワー付洗面化粧台、温水洗浄便座、トイレ2ヶ所 |
| キッチン |
カウンターキッチン、システムキッチン、食器洗浄乾燥機、3口以上コンロ |
| 設備・サービス |
全居室収納、ウォークインクローゼット、クローゼット、床下収納、モニター付インターホン、ディンプルキー、ダブルロックドア、省エネ給湯器、全居室フローリング、上水道、下水道、都市ガス、電気、ダウンライト、複層ガラス |
| その他 |
- |
| 現況 |
建築中 |
引渡可能時期 |
相談 |
| 物件番号 |
1102663314 |
|
|
| 情報公開日 |
2026年3月16日 |
次回更新予定日 |
2026年3月30日 |
| ケータイ用バーコード |
- スマートフォンでこの物件を見る
- スマートフォンからもこの物件をご覧になれます。
|
※「-」と表示されている項目については、情報提供会社にご確認ください。
| 周辺施設 |
岐阜市立明郷小学校 |
| 距離 |
676m |
写真を見る |
| 周辺施設 |
岐阜市立岐阜中央中学校 |
| 距離 |
1300m |
写真を見る |
| 周辺施設 |
バロー都通店 |
| 距離 |
409m |
写真を見る |
| 周辺施設 |
ローソン岐阜都通店 |
| 距離 |
842m |
写真を見る |
| 周辺施設 |
スギ薬局岐阜都通店 |
| 距離 |
511m |
写真を見る |
ここから簡単にお問い合わせをすることができます。
(SSLでの暗号化での送信を希望されるお客さまは
こちら
よりお問い合わせください)
お問い合わせを行う前に
「個人情報の取り扱いについて」を必ずお読みください。
「個人情報の取り扱いについて」に同意いただいた場合は「上記にご同意の上 確認画面へ進む」のボタンをクリックしてください。
個人情報の取り扱いについて
皆さまが送付された個人情報はアットホーム(株)のサーバを経由し、お問い合わせ先の不動産会社にメールまたはFAXにて転送されるためアットホーム(株)にも保管されます。アットホーム(株)で保管された個人情報の取り扱いについては、【こちら】をご覧ください。
また、本画面でご記入いただいた個人情報は、お問い合わせ先の不動産会社でも保管します。 お問い合わせ先の不動産会社が保管する個人情報の取り扱いについては、不動産会社に直接お問い合わせください。
岐阜県知事免許(5)第4153号 |
|---|
- 交通:
- 東海道本線/岐阜駅
- 岐阜県岐阜市松原町17
- TEL:
- 058-272-1264
- FAX:
- 058-272-1263
- 所属団体:
- (公社)岐阜県宅地建物取引業協会会員東海不動産公正取引協議会加盟
取引態様:一般媒介  - 99000656
|
- スマートフォンで
この不動産会社を見る

|
- 提携サイト等より掲載されている物件情報につきましては、不動産会社詳細情報にリンクされていないものがあります。
- 物件に関するお問合せは、物件詳細ページの「情報提供会社」に表示されている不動産会社へ直接お願いいたします。
- 間取図は、現況を優先させていただきます。
- 映像は物件の一部を撮影したものです。物件の契約にあたっての最終判断はご自身の判断に基づいて行ってください。
- 仲介手数料について

アットホームは物件情報の適正化に努めております。
内容に誤りがある場合にはこちらへご連絡ください。