神奈川県横浜市港北区新吉田東6丁目(綱島駅)の一戸建て:物件詳細
交通 所在地 |
駅徒歩 |
価格 |
間取り 建物面積 |
土地面積 私道負担面積 |
物件種目 築年月 |
|
東急東横線/綱島
神奈川県横浜市港北区新吉田東6丁目
|
17分
|
3,980万円
|
2LDK
54.34m²
|
53.71m²
なし
|
新築一戸建て
2025年6月
|
|
外壁サイディング、吹抜、閑静な住宅街、区画整理地内、整形地
|
|
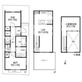
間取図
便利な間取りです
|
外観
|
<
その他の画像
>
|
| 交通 | 東急東横線 綱島駅 徒歩17分 |
|---|
| その他の交通 | 東急新横浜線 新綱島駅 徒歩22分 ブルーライン 新羽駅 徒歩24分 |
| 所在地 |
神奈川県横浜市港北区新吉田東6丁目
|
| 物件種目 |
新築一戸建て |
| 価格 |
3,980万円 |
借地期間・地代(月額) |
- |
| 権利金 |
- |
敷金または保証金 |
- / - |
| 維持費等 |
- |
その他一時金 |
なし |
| 間取り |
2LDK(洋室4.1洋室5.1LDK11.8) |
建物面積 |
54.34m² |
| 土地権利 |
所有権 |
建物構造 |
木造 |
| 土地面積 |
53.71m²(公簿) |
私道負担面積 |
なし |
| 築年月 |
2025年6月
|
都市計画 |
市街化区域 |
| 建物名 |
新築一戸建 |
建築確認番号 |
第KBI-YKH24-10-3546号 |
| 用途地域 |
1種低層 |
駐車場 |
無 |
| 建ぺい率 |
60% |
容積率 |
100% |
| 階建 |
2階建 |
接道状況 |
北西 3.9m 公道
|
| 地目 |
宅地 |
地勢 |
平坦 |
| 国土法届出 |
- |
セットバック |
要 0.08m² |
| アピールポイント |
◆港北区の物件は地元企業にお・ま・か・せ!
東急東横線「綱島」駅徒歩17分!
駅まで平坦!
広々ルーフバルコニー!
吹き抜けのリビングは明るく開放感あります!
収納に便利な屋根裏収納でお部屋が広く使えます!
落ち着いた住環境です!
●食器洗浄機
●独立洗面台
●床下収納
●シャワートイレ
●備蓄倉庫
●浴室ミストサウナ |
| リフォーム履歴 |
- |
| リノベーション履歴 |
- |
| 瑕疵保証 |
- |
| 瑕疵保険 |
- |
| 評価・証明書 |
- |
| 備考 |
●食器洗浄機●独立洗面台●床下収納●シャワートイレ●備蓄倉庫●浴室ミストサウナ●
|
| エネルギー消費性能 |
- |
| 断熱性能 |
- |
| 目安光熱費 |
- |
| バス・トイレ |
ミストサウナ、シャワー付洗面化粧台、温水洗浄便座 |
| キッチン |
カウンターキッチン、食器洗浄乾燥機、浄水器、3口以上コンロ |
| 設備・サービス |
全居室収納、床下収納、モニター付インターホン、全居室フローリング、上水道、下水道、ウッドデッキ、複層ガラス |
| その他 |
- |
| 現況 |
完成済 |
引渡可能時期 |
相談 |
| 物件番号 |
1102715303 |
|
|
| 情報公開日 |
2025年4月17日 |
次回更新予定日 |
2025年12月22日 |
| ケータイ用バーコード |
- スマートフォンでこの物件を見る
- スマートフォンからもこの物件をご覧になれます。
|
※「-」と表示されている項目については、情報提供会社にご確認ください。
| 周辺施設 |
横浜市立新吉田小学校 |
| 距離 |
400m |
写真を見る |
| 周辺施設 |
横浜市立新田中学校 |
| 距離 |
560m |
写真を見る |
| 周辺施設 |
しんよしだこども園 |
| 距離 |
279m |
写真を見る |
| 周辺施設 |
いなげや横浜綱島店 |
| 距離 |
1187m |
写真を見る |
| 周辺施設 |
セブンイレブン横浜綱島上町店 |
| 距離 |
581m |
写真を見る |
| 周辺施設 |
クリエイトエス・ディー港北新吉田店 |
| 距離 |
601m |
写真を見る |
| 周辺施設 |
横浜新吉田郵便局 |
| 距離 |
289m |
写真を見る |
| 周辺施設 |
医療法人すこやか高田中央病院 |
| 距離 |
2087m |
写真を見る |
ここから簡単にお問い合わせをすることができます。
(SSLでの暗号化での送信を希望されるお客さまは
こちら
よりお問い合わせください)
お問い合わせを行う前に
「個人情報の取り扱いについて」を必ずお読みください。
「個人情報の取り扱いについて」に同意いただいた場合は「上記にご同意の上 確認画面へ進む」のボタンをクリックしてください。
個人情報の取り扱いについて
皆さまが送付された個人情報はアットホーム(株)のサーバを経由し、お問い合わせ先の不動産会社にメールまたはFAXにて転送されるためアットホーム(株)にも保管されます。アットホーム(株)で保管された個人情報の取り扱いについては、【こちら】をご覧ください。
また、本画面でご記入いただいた個人情報は、お問い合わせ先の不動産会社でも保管します。 お問い合わせ先の不動産会社が保管する個人情報の取り扱いについては、不動産会社に直接お問い合わせください。
神奈川県知事免許(6)第23713号 |
|---|
- 交通:
- 東急東横線/綱島駅
- 神奈川県横浜市港北区綱島東1丁目6-3 TS吉原ビル2F・3F
- TEL:
- 0120-540-844
- FAX:
- 045-540-8480
- 所属団体:
- (公社)全日本不動産協会会員(公社)首都圏不動産公正取引協議会加盟
取引態様:媒介  - 99000199
|
- スマートフォンで
この不動産会社を見る

|
- 提携サイト等より掲載されている物件情報につきましては、不動産会社詳細情報にリンクされていないものがあります。
- 物件に関するお問合せは、物件詳細ページの「情報提供会社」に表示されている不動産会社へ直接お願いいたします。
- 間取図は、現況を優先させていただきます。
- 映像は物件の一部を撮影したものです。物件の契約にあたっての最終判断はご自身の判断に基づいて行ってください。
- 仲介手数料について

アットホームは物件情報の適正化に努めております。
内容に誤りがある場合にはこちらへご連絡ください。