兵庫県神戸市北区緑町5丁目(山の街駅)の一戸建て:物件詳細
交通 所在地 |
駅徒歩 |
価格 |
間取り 建物面積 |
土地面積 私道負担面積 |
物件種目 築年月 |
神戸電鉄有馬線/山の街
兵庫県神戸市北区緑町5丁目
|
7分
|
3,180万円
|
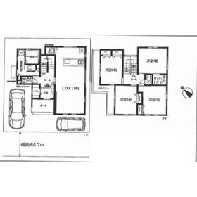
4LDK
114.48m²
|
115.82m²
なし
|
新築一戸建て
2024年11月
|
駐車場2台分
|
間取図
|
外観
|
<
その他の画像
>
|
交通 | 神戸電鉄有馬線 山の街駅 徒歩7分 |
所在地 |
兵庫県神戸市北区緑町5丁目
|
物件種目 |
新築一戸建て |
価格 |
3,180万円 |
借地期間・地代(月額) |
- |
権利金 |
- |
敷金または保証金 |
- / - |
維持費等 |
- |
その他一時金 |
なし |
間取り |
4LDK |
建物面積 |
114.48m² |
土地権利 |
所有権 |
建物構造 |
木造 |
土地面積 |
115.82m²(公簿) |
私道負担面積 |
なし |
築年月 |
2024年11月
|
都市計画 |
市街化区域 |
建物名 |
新築戸建て |
建築確認番号 |
第J24-20042号 |
用途地域 |
1種低層 |
駐車場 |
有 |
建ぺい率 |
50% |
容積率 |
100% |
階建 |
2階建 |
接道状況 |
南西 4.7m 公道 接面10.3m
|
地目 |
宅地 |
地勢 |
- |
国土法届出 |
- |
セットバック |
- |
アピールポイント |
新築戸建て! 耐震等級3・断熱等級4取得! 床暖房・エコジョーズ・ミストカワックあり! 駐車2台可! |
リフォーム履歴 |
- |
リノベーション履歴 |
- |
瑕疵保証 |
- |
瑕疵保険 |
- |
評価・証明書 |
- |
備考 |
-
|
エネルギー消費性能 |
- |
断熱性能 |
- |
目安光熱費 |
- |
バス・トイレ |
浴室乾燥機、トイレ2ヶ所 |
キッチン |
カウンターキッチン、システムキッチン |
設備・サービス |
全居室収納、ウォークインクローゼット、床暖房、シューズインクローゼット、クローゼット |
その他 |
- |
現況 |
完成済 |
引渡可能時期 |
相談 |
物件番号 |
1103444403 |
|
|
情報公開日 |
2025年5月30日 |
次回更新予定日 |
2025年11月3日 |
ケータイ用バーコード |
- スマートフォンでこの物件を見る
- スマートフォンからもこの物件をご覧になれます。
|
※「-」と表示されている項目については、情報提供会社にご確認ください。
周辺施設 |
神戸市立甲緑小学校 |
距離 |
763m |
写真を見る |
周辺施設 |
神戸市立大原中学校 |
距離 |
770m |
写真を見る |
周辺施設 |
山の街駅(神鉄 有馬線) |
距離 |
570m |
写真を見る |
周辺施設 |
コープミニ山の街 |
距離 |
514m |
写真を見る |
周辺施設 |
ミニストップ神戸大原店 |
距離 |
720m |
写真を見る |
周辺施設 |
神戸山の街郵便局 |
距離 |
431m |
写真を見る |
周辺施設 |
兵庫信用金庫山の街支店 |
距離 |
447m |
写真を見る |
周辺施設 |
百合が丘西公園 |
距離 |
484m |
写真を見る |
ここから簡単にお問い合わせをすることができます。
(SSLでの暗号化での送信を希望されるお客さまは
こちら
よりお問い合わせください)
お問い合わせを行う前に
「個人情報の取り扱いについて」を必ずお読みください。
「個人情報の取り扱いについて」に同意いただいた場合は「上記にご同意の上 確認画面へ進む」のボタンをクリックしてください。
個人情報の取り扱いについて
皆さまが送付された個人情報はアットホーム(株)のサーバを経由し、お問い合わせ先の不動産会社にメールまたはFAXにて転送されるためアットホーム(株)にも保管されます。アットホーム(株)で保管された個人情報の取り扱いについては、【こちら】をご覧ください。
また、本画面でご記入いただいた個人情報は、お問い合わせ先の不動産会社でも保管します。 お問い合わせ先の不動産会社が保管する個人情報の取り扱いについては、不動産会社に直接お問い合わせください。
兵庫県知事免許(6)第10507号 |
---|
- 交通:
- JR東海道本線/三ノ宮駅
- 兵庫県神戸市北区桂木2丁目2-1
- TEL:
- 078-583-5995
- FAX:
- 078-583-5944
- 所属団体:
- (一社)兵庫県宅地建物取引業協会会員(公社)近畿地区不動産公正取引協議会加盟
取引態様:一般媒介  - 99000976
|
- スマートフォンで
この不動産会社を見る

|
- 提携サイト等より掲載されている物件情報につきましては、不動産会社詳細情報にリンクされていないものがあります。
- 物件に関するお問合せは、物件詳細ページの「情報提供会社」に表示されている不動産会社へ直接お願いいたします。
- 間取図は、現況を優先させていただきます。
- 映像は物件の一部を撮影したものです。物件の契約にあたっての最終判断はご自身の判断に基づいて行ってください。
- 仲介手数料について

アットホームは物件情報の適正化に努めております。
内容に誤りがある場合にはこちらへご連絡ください。