静岡県牧之原市大沢(西焼津駅)の一戸建て:物件詳細
交通 所在地 |
駅徒歩 |
価格 |
間取り 建物面積 |
土地面積 私道負担面積 |
物件種目 築年月 |
|
東海道本線/西焼津 【バス】45分 大沢公園 停歩7分
静岡県牧之原市大沢
|
-
|
2,200万円
|
4LDK
135.80m²
|
330.40m²
なし
|
中古一戸建て
2017年8月(築8年5ヶ月)
|
|
駐車場3台分以上、南向き、制震構造、バス1坪以上、24時間換気システム、閑静な住宅街、整形地、庭10坪以上、IT重説対応物件
|
|
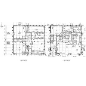
間取図
4LDK+小屋裏収納
|
外観
建物外観
|
<
その他の画像
>
|
|
|
| 交通 | 東海道本線 西焼津駅 【バス】 45分 大沢公園 停歩7分 |
| 所在地 |
静岡県牧之原市大沢
|
| 物件種目 |
中古一戸建て |
| 価格 |
2,200万円 |
借地期間・地代(月額) |
- |
| 権利金 |
- |
敷金または保証金 |
- / - |
| 維持費等 |
- |
その他一時金 |
なし |
| 間取り |
4LDK(LDK23洋室6洋室8洋室8洋室9) |
建物面積 |
135.80m² |
| 土地権利 |
所有権 |
建物構造 |
木造 |
| 土地面積 |
330.40m²(公簿) |
私道負担面積 |
なし |
| 築年月 |
2017年8月(築8年5ヶ月)
|
都市計画 |
非線引区域 |
| 建物名 |
牧之原市大沢 広々敷地 専用庭 太陽光売電つき住宅 |
建築確認番号 |
第H29確認建築静建住ま02244号 |
| 用途地域 |
2種中高 |
駐車場 |
有 |
| 建ぺい率 |
50% |
容積率 |
100% |
| 階建 |
2階建 |
接道状況 |
北 4.6m 公道 接面17.9m
・ 西 4.8m 公道 接面18.1m
・ 二方道路
|
| 地目 |
宅地 |
地勢 |
平坦 |
| 国土法届出 |
- |
セットバック |
- |
| アピールポイント |
引渡し日要相談(翌年1月~2月のお引渡しになります)
太陽光売電収入期間残り12年・駐車場5台以上可能・広々敷地、専用庭付き、南面向きです♪
太陽光パネル10kWh【売電収入の月平均2万4118円】
小屋裏収納スペース+ウォークインクローゼットで収納力豊富!
【周辺環境】●牧之原市立相良こども園:約1010m(徒歩13分)●牧之原市立相良小学校:約480m(徒歩6分)●牧之原市立相良中学校:約470m(徒歩6分)●フードマーケットMom相良店:約480m(車約2分)●KOマート相良店:約1170m(車約4分)●セブンイレブン牧之原菅ケ谷店:約980m(車約3分)●クスリのアオキ相良店:約1220m(車約4分)●相良郵便局:約1170m(車約4分)●静岡銀行相良支店:約980m(車約3分) |
| リフォーム履歴 |
- |
| リノベーション履歴 |
- |
| 瑕疵保証 |
- |
| 瑕疵保険 |
- |
| 評価・証明書 |
- |
| 備考 |
主要採光面:南向き
IT重説対応物件、新築時・増改築時の設計図書あり
整理コード:50059、5台まで駐車可能、●牧之原市立相良小学校:約480m(徒歩6分)●牧之原市立相良中学校:約470m(徒歩6分)、建基法第22条区域
|
| エネルギー消費性能 |
- |
| 断熱性能 |
- |
| 目安光熱費 |
- |
| バス・トイレ |
浴室暖房、浴室乾燥機、オートバス、追焚機能、シャワー付洗面化粧台、トイレ2ヶ所 |
| キッチン |
アイランドキッチン、システムキッチン、3口以上コンロ、グリル |
| 設備・サービス |
ウォークインクローゼット、太陽光発電システム、クローゼット、床下収納、モニター付インターホン、浄化槽、上水道、プロパンガス、電気、エアコン、庭、ウッドデッキ、複層ガラス |
| その他 |
- |
| 現況 |
所有者居住中 |
引渡可能時期 |
相談 |
| 物件番号 |
1104943303 |
|
|
| 情報公開日 |
2025年6月29日 |
次回更新予定日 |
2025年12月15日 |
| ケータイ用バーコード |
- スマートフォンでこの物件を見る
- スマートフォンからもこの物件をご覧になれます。
|
※「-」と表示されている項目については、情報提供会社にご確認ください。
ここから簡単にお問い合わせをすることができます。
(SSLでの暗号化での送信を希望されるお客さまは
こちら
よりお問い合わせください)
お問い合わせを行う前に
「個人情報の取り扱いについて」を必ずお読みください。
「個人情報の取り扱いについて」に同意いただいた場合は「上記にご同意の上 確認画面へ進む」のボタンをクリックしてください。
個人情報の取り扱いについて
皆さまが送付された個人情報はアットホーム(株)のサーバを経由し、お問い合わせ先の不動産会社にメールまたはFAXにて転送されるためアットホーム(株)にも保管されます。アットホーム(株)で保管された個人情報の取り扱いについては、【こちら】をご覧ください。
また、本画面でご記入いただいた個人情報は、お問い合わせ先の不動産会社でも保管します。 お問い合わせ先の不動産会社が保管する個人情報の取り扱いについては、不動産会社に直接お問い合わせください。
国土交通大臣免許(1)第10621号 |
|---|
- 交通:
- 東海道本線/西焼津駅
- 静岡県焼津市大住327-3
- TEL:
- 054-629-0021
- FAX:
- 054-629-0031
- 所属団体:
- (公社)静岡県宅地建物取引業協会会員東海不動産公正取引協議会加盟
取引態様:一般媒介  - 99001205
|
- スマートフォンで
この不動産会社を見る

|
- 提携サイト等より掲載されている物件情報につきましては、不動産会社詳細情報にリンクされていないものがあります。
- 物件に関するお問合せは、物件詳細ページの「情報提供会社」に表示されている不動産会社へ直接お願いいたします。
- 間取図は、現況を優先させていただきます。
- 映像は物件の一部を撮影したものです。物件の契約にあたっての最終判断はご自身の判断に基づいて行ってください。
- 仲介手数料について

アットホームは物件情報の適正化に努めております。
内容に誤りがある場合にはこちらへご連絡ください。