大阪府高槻市高西町(高槻市駅)の一戸建て:物件詳細
交通 所在地 |
駅徒歩 |
価格 |
間取り 建物面積 |
土地面積 私道負担面積 |
物件種目 築年月 |
|
阪急京都線/高槻市
大阪府高槻市高西町
|
20分
|
3,680万円
|
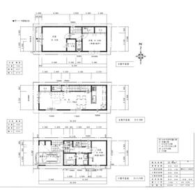
3LDK
94.39m²
|
52.46m²
なし
|
新築一戸建て
2026年10月
|
|
外壁サイディング、バス1坪以上
|
|
間取図
|
|
<
その他の画像
>
|
| 交通 | 阪急京都線 高槻市駅 徒歩20分 |
|---|
| その他の交通 | JR東海道本線 高槻駅 徒歩20分 |
| 所在地 |
大阪府高槻市高西町
|
| 物件種目 |
新築一戸建て |
| 価格 |
3,680万円 |
借地期間・地代(月額) |
- |
| 権利金 |
- |
敷金または保証金 |
- / - |
| 維持費等 |
- |
その他一時金 |
- |
| 間取り |
3LDK |
建物面積 |
94.39m² |
| 土地権利 |
所有権 |
建物構造 |
木造 |
| 土地面積 |
52.46m²(公簿) |
私道負担面積 |
なし |
| 築年月 |
2026年10月
|
都市計画 |
市街化区域 |
| 建物名 |
高西町新築一戸建て |
建築確認番号 |
第HK-26-0544 |
| 用途地域 |
2種中高 |
駐車場 |
有 無料 |
| 建ぺい率 |
60% |
容積率 |
200% |
| 階建 |
3階建 |
接道状況 |
西 6.2m 公道 接面4.5m
|
| 地目 |
宅地 |
地勢 |
平坦 |
| 国土法届出 |
- |
セットバック |
- |
| アピールポイント |
売主直売 手数料不要 新築戸建 駅徒歩圏 R8年10月末完成売主直売 手数料不要 高槻市駅徒歩圏の新築一戸建 前面道路6.2m 大阪ガス乾太くん ウォークインクローゼット スマートキー カウンターキッチン カップボード 浴室換気乾燥機 ウォシュレット2ヵ所 |
| リフォーム履歴 |
- |
| リノベーション履歴 |
- |
| 瑕疵保証 |
- |
| 瑕疵保険 |
- |
| 評価・証明書 |
- |
| 備考 |
バルコニー:3.64m²
主要採光面:西向き
売主直売 手数料不要 高槻市駅徒歩圏の新築一戸建 前面道路6.2m 西側空地につき解放感あり 大阪ガス乾太くん ウォークインクローゼット スマートキー カウンターキッチン カップボード 食器洗乾燥機 浄水器 浴室換気乾燥機 ウォシュレット2ヵ所売主につき手数料なし 高槻市駅徒歩約20分 売主直売 手数料不要 新築一戸建 前面道路6.2m 西側空地につき解放感あり 大阪ガス乾太くん ウォークインクローゼット スマートキー カウンターキッチン カップボード 食器洗乾燥機 浄水器 浴室換気乾燥機 ウォシュレット2ヵ所
売主直売 手数料ゼロ 高槻市駅 徒歩圏 新築一戸建 10月完成予定 広々LDK17.75帖 西側空地につき解放感あり 大阪ガス乾太くん ウォークインクローゼット スマートキー カウンターキッチン カップボード 食器洗乾燥機 浄水器 浴室換気乾燥機 ウォシュレット2ヵ所
|
| エネルギー消費性能 |
- |
| 断熱性能 |
- |
| 目安光熱費 |
- |
| バス・トイレ |
浴室乾燥機、オートバス、シャワー付洗面化粧台、温水洗浄便座、トイレ2ヶ所 |
| キッチン |
カウンターキッチン、システムキッチン、食器洗浄乾燥機、浄水器 |
| 設備・サービス |
全居室収納、ウォークインクローゼット、クローゼット、床下収納、モニター付インターホン、全居室フローリング、上水道、下水道、都市ガス、電気、ダウンライト、複層ガラス |
| その他 |
- |
| 現況 |
建築中 |
引渡可能時期 |
2026年10月下旬予定 |
| 物件番号 |
1105205019 |
|
|
| 情報公開日 |
2026年3月10日 |
次回更新予定日 |
2026年3月24日 |
| ケータイ用バーコード |
- スマートフォンでこの物件を見る
- スマートフォンからもこの物件をご覧になれます。
|
※「-」と表示されている項目については、情報提供会社にご確認ください。
ここから簡単にお問い合わせをすることができます。
(SSLでの暗号化での送信を希望されるお客さまは
こちら
よりお問い合わせください)
お問い合わせを行う前に
「個人情報の取り扱いについて」を必ずお読みください。
「個人情報の取り扱いについて」に同意いただいた場合は「上記にご同意の上 確認画面へ進む」のボタンをクリックしてください。
個人情報の取り扱いについて
皆さまが送付された個人情報はアットホーム(株)のサーバを経由し、お問い合わせ先の不動産会社にメールまたはFAXにて転送されるためアットホーム(株)にも保管されます。アットホーム(株)で保管された個人情報の取り扱いについては、【こちら】をご覧ください。
また、本画面でご記入いただいた個人情報は、お問い合わせ先の不動産会社でも保管します。 お問い合わせ先の不動産会社が保管する個人情報の取り扱いについては、不動産会社に直接お問い合わせください。
(株)くらし本舗大阪府知事免許(6)第47224号 |
|---|
- 交通:
- 阪急京都線/高槻市駅
- 大阪府高槻市南庄所町25-20
- TEL:
- 072-672-0100
- FAX:
- 072-672-8899
- 所属団体:
- (一社)大阪府宅地建物取引業協会会員(公社)近畿地区不動産公正取引協議会加盟
取引態様:売主 |
- 提携サイト等より掲載されている物件情報につきましては、不動産会社詳細情報にリンクされていないものがあります。
- 物件に関するお問合せは、物件詳細ページの「情報提供会社」に表示されている不動産会社へ直接お願いいたします。
- 間取図は、現況を優先させていただきます。
- 映像は物件の一部を撮影したものです。物件の契約にあたっての最終判断はご自身の判断に基づいて行ってください。
- 仲介手数料について

アットホームは物件情報の適正化に努めております。
内容に誤りがある場合にはこちらへご連絡ください。